Переверните экран
Поиск бизнес центров

Найдите современный офис в деловых районах Санкт-Петербурга

Найдите современный офис в деловых районах Санкт-Петербурга

Перейти к поиску
Новостройки Квартиры Ипотека Медиа О проекте Контакты Реклама на сайте Vk Youtube Telegram Дзен Продавцы и застройщики Коммерческие помещения Квартиры на карте Эксперты и авторы Машиноместа Акции от застройщиков Банки и программы Апартаменты Новостройки на карте 4-комнатные и более Готовые новостройки 3-комнатные Военная ипотека Покупателю Новостройки Санкт-Петербурга Видеообзор новостроек Семейная ипотека Аналитика рынка Панорамы новостроек 1-комнатные Субсидированная застройщиком Мнение эксперта Студии Ипотечный калькулятор Новости недвижимости Новостройки Ленинградской области ИТ-ипотека Квартиры со скидками до 25% Новостройки премиум-класса Новостройки бизнес-класса Дома и коттеджи Коттеджные поселки в Санкт-Петербурге Коттеджные поселки в Ленинградской обл Готовые коттеджные поселки Строящиеся коттеджные поселки Коттеджные поселки у леса Коттеджные поселки у водоема Коттеджные поселки в ипотеку Бизнес-центры Коттеджи Ипотека со ставкой 0,1% Траншевая ипотека
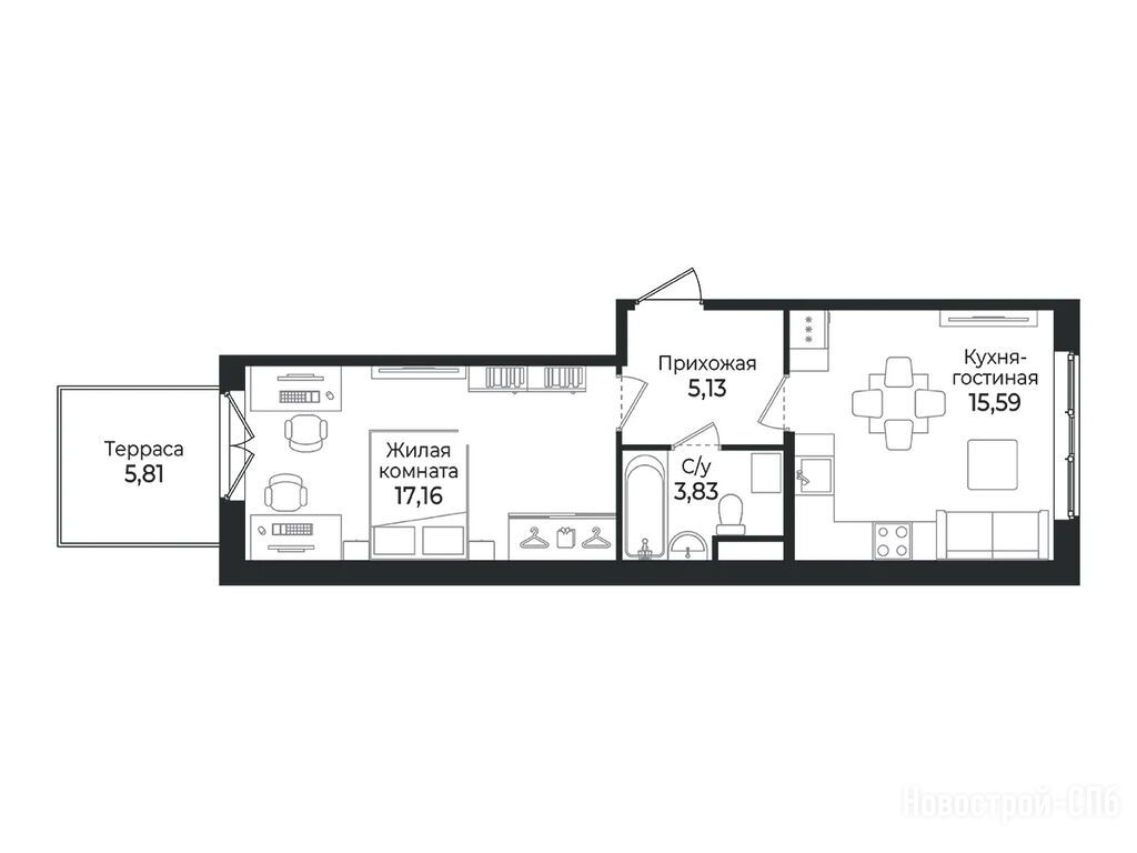
1-комн. квартира, 43.45 м2, 1 этаж
Срок сдачи 2 квартал 2027 года
8 603 100 
198 000 2
обновлено 4 мая

Описание 1-комн. квартиры

Новостройка
Срок ГК
2 квартал 2027 года
Тип проекта
Общая площадь
43.45 м2
Жилая площадь
17.16 м2
Площадь кухни
15.59 м2
Этаж
1 / 8
Отделка
чистовая
Грузовой лифт
есть

Расположение 1-комн. квартиры

Метро
Парнас
29 мин.
Дом
4
Адрес
г. Сертолово, мкрн Сертолово-1, терр. вблизи Выборгского ш., уч. 12, 13, 15, 16, секция 3

Способы покупки

Особенности

Продается однокомнатная квартира в новостройке ЖК «Сертолово Парк» по адресу Ленинградская область, Всеволожский район, г. Сертолово, мкрн Сертолово-1, терр. вблизи Выборгского ш., уч. 12, 13, 15, 16. Общая площадь квартиры - 43.45 кв. м. Тип проекта, по которому построен дом — Монолитно-каркасный, компания-застройщик — Алгоритм Девелопмент. Стоимость квартиры — 8 603 100 руб. Способы оплаты можно уточнить у продавца. Срок сдачи — 2 квартал 2027. Более подробная информация по телефону.
Инфоцентр новостроек
Инфоцентр новостроек
+7 (812) 424-49-09
Время работы 9:00 — 21:00
студия 26,70 м2 5 853 895
Этаж 4/6
ЛО, ЖК «Сертолово Парк»
Парнас
29 мин.
Сдан
студия 26,80 м2 5 880 938
Этаж 5/6
ЛО, ЖК «Сертолово Парк»
Парнас
29 мин.
Сдан
студия 26,90 м2 5 940 757
Этаж 6/6
ЛО, ЖК «Сертолово Парк»
Парнас
29 мин.
Сдан
студия 27,00 м2 5 454 000
Этаж 5/6
ЛО, ЖК «Сертолово Парк»
Парнас
29 мин.
Сдан
Посмотреть 72 квартиры в ЖК «Сертолово Парк»
1-комн. квартира 29,72 м2 6 719 841
Этаж 8/8
ЛО, ЖК «Сертолово Парк»
Парнас
29 мин.
Строится
1-комн. квартира 30,56 м2 6 142 560
Этаж 2/8
ЛО, ЖК «Сертолово Парк»
Парнас
29 мин.
Строится
1-комн. квартира 30,76 м2 6 213 520
Этаж 2/8
ЛО, ЖК «Сертолово Парк»
Парнас
29 мин.
Строится
1-комн. квартира 30,84 м2 6 106 320
Этаж 1/8
ЛО, ЖК «Сертолово Парк»
Парнас
29 мин.
Строится
Посмотреть 240 квартир в ЖК «Сертолово Парк»
2-комн. квартира 46,24 м2 8 693 120
Этаж 2/8
ЛО, ЖК «Сертолово Парк»
Парнас
29 мин.
Строится
2-комн. квартира 46,30 м2 8 902 981
Этаж 2/6
ЛО, ЖК «Сертолово Парк»
Парнас
29 мин.
Сдан
2-комн. квартира 46,51 м2 8 743 880
Этаж 1/8
ЛО, ЖК «Сертолово Парк»
Парнас
29 мин.
Строится
2-комн. квартира 46,80 м2 9 645 293
Этаж 6/8
ЛО, ЖК «Сертолово Парк»
Парнас
29 мин.
Сдан
Посмотреть 103 квартиры в ЖК «Сертолово Парк»
3-комн. квартира 70,90 м2 13 612 800
Этаж 4/6
ЛО, ЖК «Сертолово Парк»
Парнас
29 мин.
Строится
3-комн. квартира 71,65 м2 13 685 150
Этаж 2/6
ЛО, ЖК «Сертолово Парк»
Парнас
29 мин.
Строится
3-комн. квартира 73,21 м2 14 422 370
Этаж 5/8
ЛО, ЖК «Сертолово Парк»
Парнас
29 мин.
Строится
3-комн. квартира 73,23 м2 14 060 160
Этаж 3/6
ЛО, ЖК «Сертолово Парк»
Парнас
29 мин.
Строится
Посмотреть 76 квартир в ЖК «Сертолово Парк»

Скидки и спецпредложения от застройщиков

ЖК «Сертолово Парк» на карте

Выгодные предложения на новостройки

Отзывы о ЖК «Сертолово Парк»

Самый полезный отзыв
ИР
28 февраля 2025
Оценка:
Достоинства
Планировки
Способы покупки
Двор, окружение
Расположение
Квартиры здесь просторные и уже с ремонтом, что для меня было важным критерием. Это позволяет сразу переехать и обустроить своё новое пространство по своему вкусу. Рядом находится лес, что значительно усиливает привлекательность этого места. Время, проведенное на природе, всегда приносит пользу, и для меня это очень важно.
Ответить
Самый новый отзыв
В
15 января
Оценка:
Достоинства
Планировки
Способы покупки
Двор, окружение
Расположение
Покупали квартиру и всем рассказывают, как приятно, что рядом лес и природа, а менеджер помог с ипотекой и подбором; но многие отмечают слабую звукоизоляцию в квартирах слышно, что делают ремонт соседи и топот над головой
Ответить

Оставить отзыв

Добавьте отзыв, заполнив личные данные, или сначала войдите на сайт, тогда информация будет автоматически взята из личного профиля.
Оценка*