Переверните экран
Поиск домов и коттеджей

Найдите идеальный дом или коттедж в Санкт-Петербурге и области

Найдите идеальный дом или коттедж в Санкт-Петербурге и области

Перейти к поиску
Новостройки Квартиры Ипотека Медиа О проекте Контакты Реклама на сайте Vk Youtube Telegram Дзен Продавцы и застройщики Коммерческие помещения Квартиры на карте Эксперты и авторы Машиноместа Акции от застройщиков Банки и программы Апартаменты Новостройки на карте 4-комнатные и более Готовые новостройки 3-комнатные Военная ипотека Покупателю Новостройки Санкт-Петербурга Видеообзор новостроек Семейная ипотека Аналитика рынка Панорамы новостроек 1-комнатные Субсидированная застройщиком Мнение эксперта Студии Ипотечный калькулятор Новости недвижимости Новостройки Ленинградской области ИТ-ипотека Квартиры со скидками до 25% Новостройки премиум-класса Новостройки бизнес-класса Дома и коттеджи Бизнес-центры Бизнес-центры в Санкт-Петербурге Бизнес-центры рядом с метро Строящиеся бизнес-центры Бизнес-центры класса A Ипотека со ставкой 0,1% Траншевая ипотека
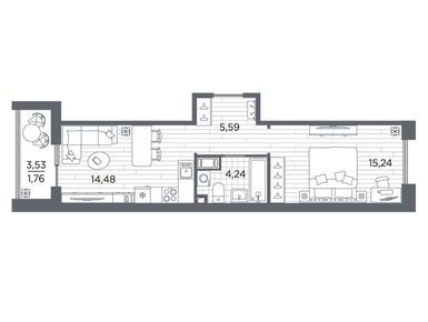
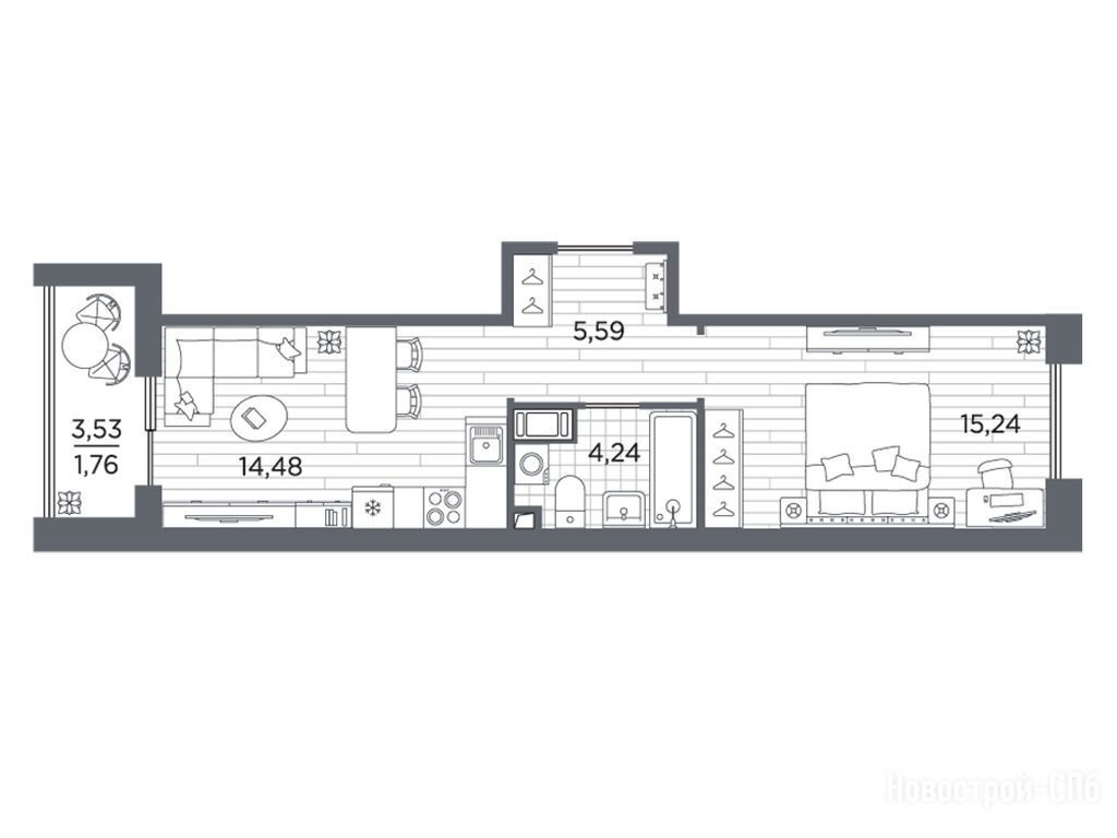
1-комн. квартира, 41.31 м2, 7 этаж
Срок сдачи 2 квартал 2027 года
18 370 608 
444 701 2
обновлено 4 апреля

Описание 1-комн. квартиры

Новостройка
Застройщик
Срок ГК
2 квартал 2027 года
Стадия строительства
котлован/фундамент
Общая площадь
41.31 м2
Жилая площадь
15.24 м2
Площадь кухни
14.48 м2
Этаж
7 / 13
Отделка
чистовая

Расположение 1-комн. квартиры

Локация
Метро
Лесная
10 мин.
Дом
3
Адрес
Полюстровский пр., 87, секция 3.3

Способы покупки

Особенности

Продается однокомнатная квартира в новостройке ЖК «Респект» по адресу Санкт-Петербург, Калининский, Полюстровский пр., 87. Общая площадь квартиры - 41.31 кв. м. Тип проекта, по которому построен дом — Монолитно-кирпичный, компания-застройщик — ГК «ПСК». Стоимость квартиры — 18 370 608 руб. Способы оплаты можно уточнить у продавца. Срок сдачи — 2 квартал 2027. Более подробная информация по телефону.
Инфоцентр новостроек
Инфоцентр новостроек
+7 (812) 424-49-09
Время работы 9:00 — 21:00

Похожие квартиры в ЖК «Респект»

3 этаж
из 13 2 квартал 2027
Санкт-Петербург, Санкт-Петербург
Лесная
10 мин.
3
Корпус
чистовая
Отделка
2.70 м
Потолки
ЖК «Респект»
18 194 520
Альфа-Банк, Сургутнефтегазбанк (СНГБ), ВТБ, Совкомбанк, Промсвязьбанк, Банк Санкт-Петербург, ДОМ.РФ, Металлинвестбанк, Банк Россия, СберБанк
6.00%
Ставка
30.10%
Первый взнос
от 109 085 /мес.
Все варианты
4 этаж
из 13 2 квартал 2027
Санкт-Петербург, Санкт-Петербург
Лесная
10 мин.
3
Корпус
чистовая
Отделка
2.70 м
Потолки
ЖК «Респект»
18 238 542
Альфа-Банк, Сургутнефтегазбанк (СНГБ), ВТБ, Совкомбанк, Промсвязьбанк, Банк Санкт-Петербург, ДОМ.РФ, Металлинвестбанк, Банк Россия, СберБанк
6.00%
Ставка
30.10%
Первый взнос
от 109 349 /мес.
Все варианты
8 этаж
из 13 2 квартал 2027
Санкт-Петербург, Санкт-Петербург
Лесная
10 мин.
3
Корпус
чистовая
Отделка
2.70 м
Потолки
ЖК «Респект»
18 414 631
Альфа-Банк, Сургутнефтегазбанк (СНГБ), ВТБ, Совкомбанк, Промсвязьбанк, Банк Санкт-Петербург, ДОМ.РФ, Металлинвестбанк, Банк Россия, СберБанк
6.00%
Ставка
30.10%
Первый взнос
от 110 405 /мес.
Все варианты
11 этаж
из 13 2 квартал 2027
Санкт-Петербург, Санкт-Петербург
Лесная
10 мин.
3
Корпус
чистовая
Отделка
2.70 м
Потолки
ЖК «Респект»
18 546 697
Альфа-Банк, Сургутнефтегазбанк (СНГБ), ВТБ, Совкомбанк, Промсвязьбанк, Банк Санкт-Петербург, ДОМ.РФ, Металлинвестбанк, Банк Россия, СберБанк
6.00%
Ставка
30.10%
Первый взнос
от 111 197 /мес.
Все варианты
студия 23,20 м2 12 822 632
Этаж 2/13
СПБ, ЖК «Респект»
Лесная
10 мин.
Строится
студия 23,23 м2 10 553 435
Этаж 11/13
СПБ, ЖК «Респект»
Лесная
10 мин.
Строится
студия 23,35 м2 13 391 318
Этаж 13/13
СПБ, ЖК «Респект»
Лесная
10 мин.
Строится
студия 23,79 м2 13 022 371
Этаж 2/13
СПБ, ЖК «Респект»
Лесная
10 мин.
Строится
Посмотреть 74 квартиры в ЖК «Респект»
1-комн. квартира 36,06 м2 17 873 007
Этаж 4/13
СПБ, ЖК «Респект»
Лесная
10 мин.
Строится
1-комн. квартира 36,39 м2 16 674 276
Этаж 3/13
СПБ, ЖК «Респект»
Лесная
10 мин.
Строится
1-комн. квартира 37,17 м2 17 164 641
Этаж 11/13
СПБ, ЖК «Респект»
Лесная
10 мин.
Строится
1-комн. квартира 37,63 м2 16 984 746
Этаж 2/13
СПБ, ЖК «Респект»
Лесная
10 мин.
Строится
Посмотреть 152 квартиры в ЖК «Респект»
2-комн. квартира 55,08 м2 21 384 317
Этаж 5/13
СПБ, ЖК «Респект»
Лесная
10 мин.
Строится
2-комн. квартира 55,11 м2 22 223 543
Этаж 3/13
СПБ, ЖК «Респект»
Лесная
10 мин.
Строится
2-комн. квартира 55,16 м2 22 468 339
Этаж 2/7
СПБ, ЖК «Респект»
Лесная
10 мин.
Строится
2-комн. квартира 55,28 м2 22 967 048
Этаж 12/13
СПБ, ЖК «Респект»
Лесная
10 мин.
Строится
Посмотреть 214 квартир в ЖК «Респект»
3-комн. квартира 76,75 м2 29 817 375
Этаж 4/13
СПБ, ЖК «Респект»
Лесная
10 мин.
Строится
3-комн. квартира 77,14 м2 27 886 110
Этаж 4/13
СПБ, ЖК «Респект»
Лесная
10 мин.
Строится
3-комн. квартира 77,22 м2 30 077 190
Этаж 4/13
СПБ, ЖК «Респект»
Лесная
10 мин.
Строится
3-комн. квартира 77,69 м2 28 162 625
Этаж 4/13
СПБ, ЖК «Респект»
Лесная
10 мин.
Строится
Посмотреть 68 квартир в ЖК «Респект»

Скидки и спецпредложения от застройщиков

ЖК «Респект» на карте

Выгодные предложения на новостройки

Отзывы о ЖК «Респект»

Самый полезный отзыв
Н
13 июня 2024
Оценка:
Забронировали трехкомнатную квартиру со светлой отделкой. Два сан узла, балкон, кухня-гостиная почти 19,м2. Понравилась идея с общественными террасами. Там посадят кустарники, обустроят лаунж-зоны, поставят столики, стулья. Можно будет и погулять и поработать
Ответить
Самый новый отзыв
А
10 марта
Оценка:
Радует наличие квартир с готовой отделкой. Дороже конечно стоят, чем в вайт боксе, но зато с ремонтом не мучаться после получения ключей. Выбрали именно такой вариант
Ответить

Оставить отзыв

Добавьте отзыв, заполнив личные данные, или сначала войдите на сайт, тогда информация будет автоматически взята из личного профиля.
Оценка*