Переверните экран
Поиск бизнес центров

Найдите современный офис в деловых районах Санкт-Петербурга

Найдите современный офис в деловых районах Санкт-Петербурга

Перейти к поиску
Новостройки Квартиры Ипотека Медиа О проекте Контакты Реклама на сайте Vk Youtube Telegram Дзен Продавцы и застройщики Коммерческие помещения Квартиры на карте Эксперты и авторы Машиноместа Акции от застройщиков Банки и программы Апартаменты Новостройки на карте 4-комнатные и более Готовые новостройки 3-комнатные Военная ипотека Покупателю Новостройки Санкт-Петербурга Видеообзор новостроек Семейная ипотека Аналитика рынка Панорамы новостроек 1-комнатные Субсидированная застройщиком Мнение эксперта Студии Ипотечный калькулятор Новости недвижимости Новостройки Ленинградской области ИТ-ипотека Квартиры со скидками до 25% Новостройки премиум-класса Новостройки бизнес-класса Дома и коттеджи Коттеджные поселки в Санкт-Петербурге Коттеджные поселки в Ленинградской обл Готовые коттеджные поселки Строящиеся коттеджные поселки Коттеджные поселки у леса Коттеджные поселки у водоема Коттеджные поселки в ипотеку Бизнес-центры Коттеджи Ипотека со ставкой 0,1% Траншевая ипотека
1-комн. квартира, 42.56 м2, 13 этаж
Срок сдачи 4 квартал 2028 года
10 311 000 
242 270 2
обновлено 1 мая

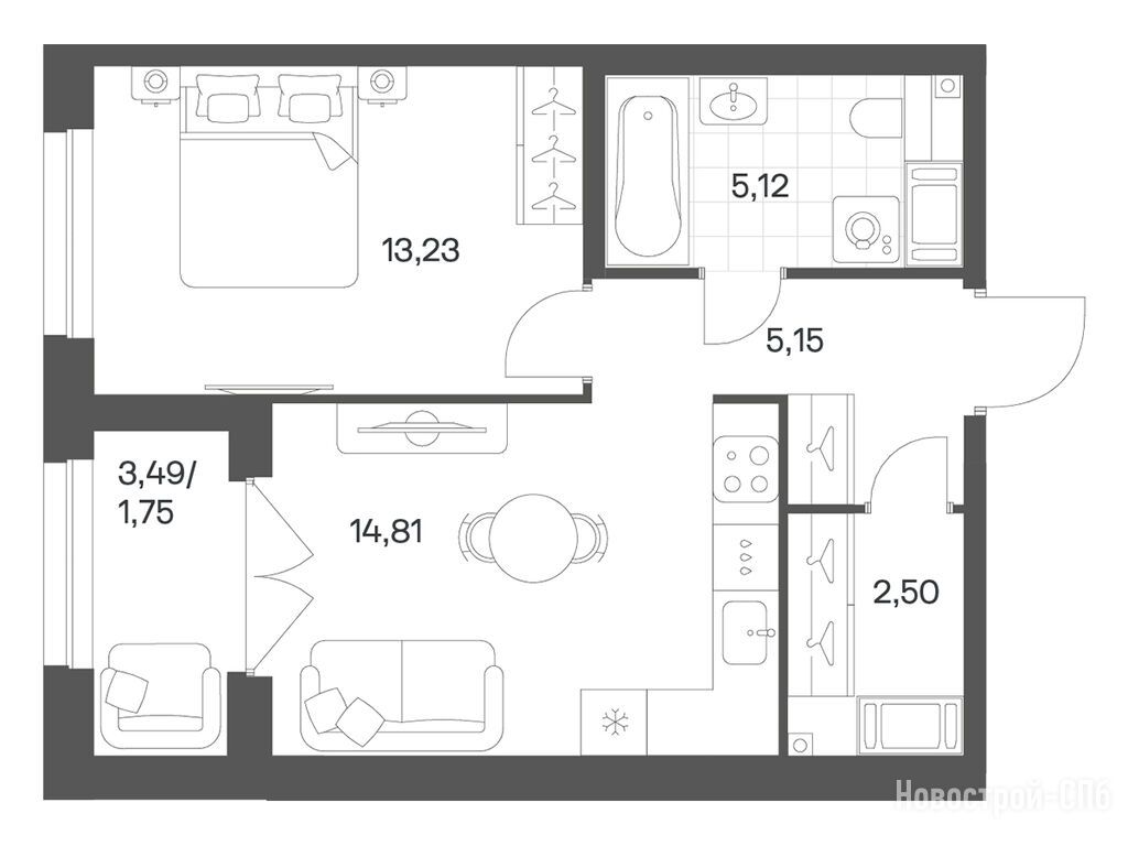
Описание 1-комн. квартиры

Новостройка
Срок ГК
4 квартал 2028 года
Стадия строительства
котлован/фундамент
Общая площадь
42.56 м2
Жилая площадь
13.23 м2
Площадь кухни
14.81 м2
Этаж
13 / 24
Отделка
нет
Грузовой лифт
есть

Расположение 1-комн. квартиры

Локация
Метро
Дом
1
Адрес
Русановская улица

Способы покупки

Особенности

Продается однокомнатная квартира в новостройке ЖК «Речной квартал» по адресу Санкт-Петербург, Невский, Русановская улица. Общая площадь квартиры - 42.56 кв. м. , компания-застройщик — АО «СЗ «Строительный трест», ГК «ТРЕСТ». Стоимость квартиры — 10 311 000 руб. Способы оплаты можно уточнить у продавца. Срок сдачи — 4 квартал 2028. Более подробная информация по телефону.
Инфоцентр новостроек
Инфоцентр новостроек
Время работы 9:00 — 21:00
Выбирайте квартиру в ЖК «Речной квартал» по ценам от застройщика

Похожие квартиры в ЖК «Речной квартал»

3 этаж
из 24 4 квартал 2028
Санкт-Петербург, Санкт-Петербург
Ломоносовская
15 мин.
1
Корпус
нет
Отделка
2.70 м
Потолки
ЖК «Речной квартал»
9 876 000
ДОМ.РФ
6.00%
Ставка
20.01%
Первый взнос
от 59 212 /мес.
Все варианты
5 этаж
из 24 4 квартал 2028
Санкт-Петербург, Санкт-Петербург
Ломоносовская
15 мин.
1
Корпус
нет
Отделка
2.70 м
Потолки
ЖК «Речной квартал»
9 876 000
ДОМ.РФ
6.00%
Ставка
20.01%
Первый взнос
от 59 212 /мес.
Все варианты
7 этаж
из 24 4 квартал 2028
Санкт-Петербург, Санкт-Петербург
Ломоносовская
15 мин.
1
Корпус
нет
Отделка
2.70 м
Потолки
ЖК «Речной квартал»
10 094 000
ДОМ.РФ
6.00%
Ставка
20.01%
Первый взнос
от 60 519 /мес.
Все варианты
11 этаж
из 24 4 квартал 2028
Санкт-Петербург, Санкт-Петербург
Ломоносовская
15 мин.
1
Корпус
нет
Отделка
2.70 м
Потолки
ЖК «Речной квартал»
10 311 000
ДОМ.РФ
6.00%
Ставка
20.01%
Первый взнос
от 61 820 /мес.
Все варианты
15 этаж
из 24 4 квартал 2028
Санкт-Петербург, Санкт-Петербург
Ломоносовская
15 мин.
1
Корпус
нет
Отделка
2.70 м
Потолки
ЖК «Речной квартал»
10 311 000
ДОМ.РФ
6.00%
Ставка
20.01%
Первый взнос
от 61 820 /мес.
Все варианты
17 этаж
из 24 4 квартал 2028
Санкт-Петербург, Санкт-Петербург
Ломоносовская
15 мин.
1
Корпус
нет
Отделка
2.70 м
Потолки
ЖК «Речной квартал»
10 727 000
ДОМ.РФ
6.00%
Ставка
20.01%
Первый взнос
от 64 314 /мес.
Все варианты
23 этаж
из 24 4 квартал 2028
Санкт-Петербург, Санкт-Петербург
Ломоносовская
15 мин.
1
Корпус
нет
Отделка
2.70 м
Потолки
ЖК «Речной квартал»
10 945 000
ДОМ.РФ
6.00%
Ставка
20.01%
Первый взнос
от 65 621 /мес.
Все варианты
21 этаж
из 24 4 квартал 2028
Санкт-Петербург, Санкт-Петербург
Ломоносовская
15 мин.
1
Корпус
нет
Отделка
2.70 м
Потолки
ЖК «Речной квартал»
10 945 000
ДОМ.РФ
6.00%
Ставка
20.01%
Первый взнос
от 65 621 /мес.
Все варианты
Этаж 17/24
СПБ, ЖК «Речной квартал»
Ломоносовская
15 мин.
Строится
Этаж 8/24
СПБ, ЖК «Речной квартал»
Ломоносовская
15 мин.
Строится
Этаж 15/24
СПБ, ЖК «Речной квартал»
Ломоносовская
15 мин.
Строится
Этаж 19/24
СПБ, ЖК «Речной квартал»
Ломоносовская
15 мин.
Строится
Посмотреть 79 квартир в ЖК «Речной квартал»
Этаж 15/24
СПБ, ЖК «Речной квартал»
Ломоносовская
15 мин.
Строится
Этаж 5/24
СПБ, ЖК «Речной квартал»
Ломоносовская
15 мин.
Строится
Этаж 23/24
СПБ, ЖК «Речной квартал»
Ломоносовская
15 мин.
Строится
Этаж 5/24
СПБ, ЖК «Речной квартал»
Ломоносовская
15 мин.
Строится
Посмотреть 195 квартир в ЖК «Речной квартал»
Этаж 15/24
СПБ, ЖК «Речной квартал»
Ломоносовская
15 мин.
Строится
Этаж 7/24
СПБ, ЖК «Речной квартал»
Ломоносовская
15 мин.
Строится
Этаж 17/24
СПБ, ЖК «Речной квартал»
Ломоносовская
15 мин.
Строится
Этаж 5/24
СПБ, ЖК «Речной квартал»
Ломоносовская
15 мин.
Строится
Посмотреть 28 квартир в ЖК «Речной квартал»

Скидки и спецпредложения от застройщиков

ЖК «Речной квартал» на карте

Выгодные предложения на новостройки

Отзывы о ЖК «Речной квартал»

Самый новый отзыв
ВТ
02 апреля
Оценка:
Достоинства
Экология
Социальная инфраструктура
Планировки
Внешне проект интереснее соседей. Из плюсов: близость к реке, озеленение территории, действующий детсад. Школа в проекте. Планировок много. Достойный вариант для этой локации
Ответить

Оставить отзыв

Добавьте отзыв, заполнив личные данные, или сначала войдите на сайт, тогда информация будет автоматически взята из личного профиля.
Оценка*