Переверните экран
Поиск домов и коттеджей

Найдите идеальный дом или коттедж в Санкт-Петербурге и области

Найдите идеальный дом или коттедж в Санкт-Петербурге и области

Перейти к поиску
Новостройки Квартиры Ипотека Медиа О проекте Контакты Реклама на сайте Vk Youtube Telegram Дзен Продавцы и застройщики Коммерческие помещения Квартиры на карте Эксперты и авторы Машиноместа Акции от застройщиков Банки и программы Апартаменты Новостройки на карте 4-комнатные и более Готовые новостройки 3-комнатные Военная ипотека Покупателю Новостройки Санкт-Петербурга Видеообзор новостроек Семейная ипотека Аналитика рынка Панорамы новостроек 1-комнатные Субсидированная застройщиком Мнение эксперта Студии Ипотечный калькулятор Новости недвижимости Новостройки Ленинградской области IT-ипотека Квартиры со скидками до 25% Новостройки премиум-класса Новостройки бизнес-класса Дома и коттеджи Бизнес-центры Бизнес-центры в Санкт-Петербурге Бизнес-центры рядом с метро Строящиеся бизнес-центры Бизнес-центры класса A
1-комн. квартира, 37.70 м2, 8 этаж
Сдан
7 510 888 
199 228 2
обновлено 5 декабря

Описание 1-комн. квартиры

Новостройка
Застройщик
ГК Полис СЗ «ЛАВР»
Срок ГК
Дом сдан
Стадия строительства
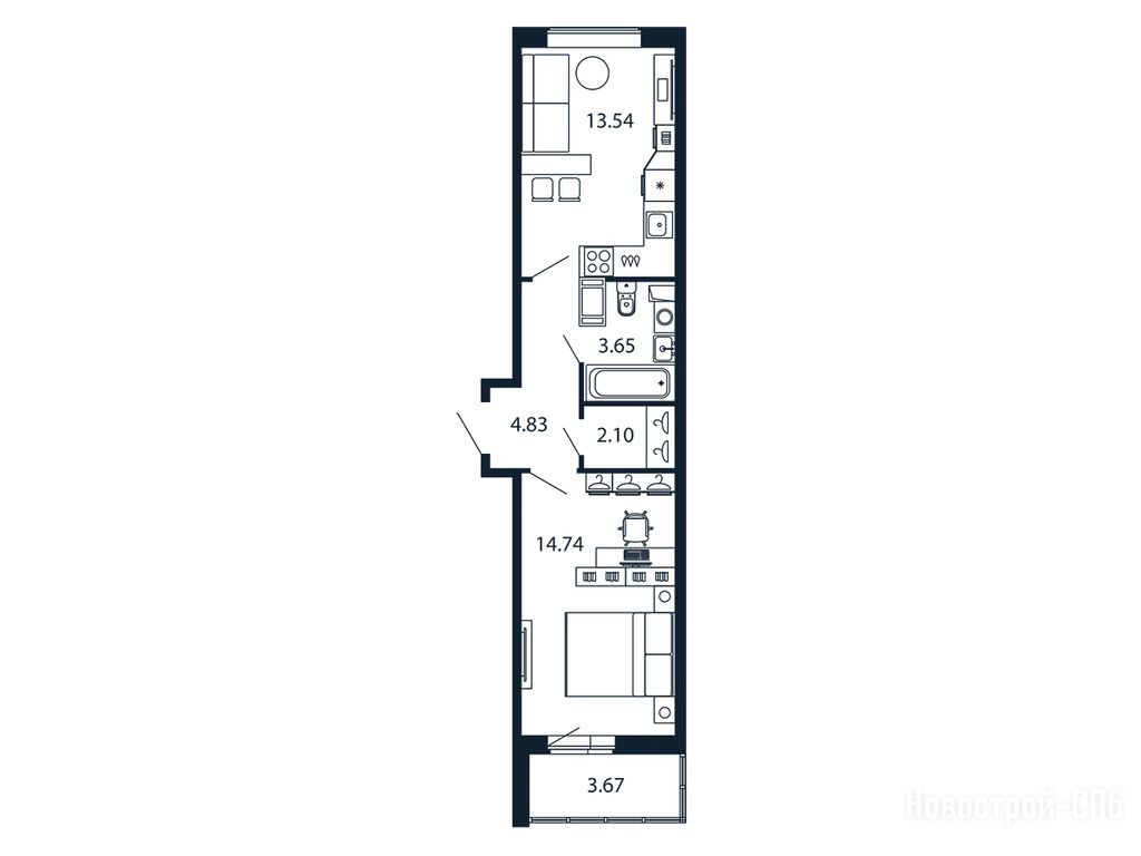
Общая площадь
37.70 м2
Жилая площадь
14.74 м2
Площадь кухни
13.54 м2
Этаж
8 / 12
Отделка
чистовая
Грузовой лифт
есть

Расположение 1-комн. квартиры

Метро
Дом
1
Адрес
Ручьёвский проспект, 20, секция 3

Способы покупки

Особенности

Продается однокомнатная квартира в новостройке ЖК «Полис ЛАВрики» по адресу Ленинградская область, Всеволожский район, Мурино, Мурино, Ручьёвский проспект, 20. Общая площадь квартиры - 37.7 кв. м. Тип проекта, по которому построен дом — Монолитно-кирпичный, компания-застройщик — ГК Полис, СЗ «ЛАВР». Стоимость квартиры — 7 510 888 руб. Способы оплаты можно уточнить у продавца. Более подробная информация по телефону.
Инфоцентр новостроек
Инфоцентр новостроек
+7 (812) 424-49-09
Время работы 9:00 — 21:00
Посмотреть все спецпредложения
студия 22,20 м2 5 604 887
Этаж 2/12
ЛО, ЖК «Полис ЛАВрики»
Девяткино
21 мин.
Сдан
студия 22,30 м2 5 646 888
Этаж 9/12
ЛО, ЖК «Полис ЛАВрики»
Девяткино
21 мин.
Сдан
студия 22,40 м2 5 042 887
Этаж 12/12
ЛО, ЖК «Полис ЛАВрики»
Девяткино
21 мин.
Сдан
студия 22,50 м2 5 065 887
Этаж 12/12
ЛО, ЖК «Полис ЛАВрики»
Девяткино
21 мин.
Сдан
Посмотреть 92 квартиры в ЖК «Полис ЛАВрики»
1-комн. квартира 28,70 м2 7 032 887
Этаж 12/12
ЛО, ЖК «Полис ЛАВрики»
Девяткино
21 мин.
Сдан
1-комн. квартира 29,30 м2 7 244 887
Этаж 6/12
ЛО, ЖК «Полис ЛАВрики»
Девяткино
21 мин.
Сдан
1-комн. квартира 29,40 м2 7 244 887
Этаж 12/12
ЛО, ЖК «Полис ЛАВрики»
Девяткино
21 мин.
Сдан
1-комн. квартира 30,00 м2 7 228 887
Этаж 11/12
ЛО, ЖК «Полис ЛАВрики»
Девяткино
21 мин.
Сдан
Посмотреть 114 квартир в ЖК «Полис ЛАВрики»
2-комн. квартира 29,10 м2 6 250 887
Этаж 12/12
ЛО, ЖК «Полис ЛАВрики»
Девяткино
21 мин.
Сдан
2-комн. квартира 30,20 м2 6 180 888
Этаж 11/12
ЛО, ЖК «Полис ЛАВрики»
Девяткино
21 мин.
Сдан
2-комн. квартира 30,40 м2 6 551 888
Этаж 12/12
ЛО, ЖК «Полис ЛАВрики»
Девяткино
21 мин.
Сдан
2-комн. квартира 30,50 м2 6 461 887
Этаж 11/12
ЛО, ЖК «Полис ЛАВрики»
Девяткино
21 мин.
Сдан
Посмотреть 76 квартир в ЖК «Полис ЛАВрики»
3-комн. квартира 44,60 м2 10 610 888
Этаж 1/12
ЛО, ЖК «Полис ЛАВрики»
Девяткино
21 мин.
Сдан
3-комн. квартира 44,80 м2 11 188 887
Этаж 3/12
ЛО, ЖК «Полис ЛАВрики»
Девяткино
21 мин.
Сдан
3-комн. квартира 46,00 м2 9 524 887
Этаж 11/12
ЛО, ЖК «Полис ЛАВрики»
Девяткино
21 мин.
Сдан
3-комн. квартира 46,10 м2 9 454 887
Этаж 4/12
ЛО, ЖК «Полис ЛАВрики»
Девяткино
21 мин.
Сдан

Скидки и спецпредложения от застройщиков

ЖК «Полис ЛАВрики» на карте

Выгодные предложения на новостройки

Отзывы о ЖК «Полис ЛАВрики»

Самый полезный отзыв
ИС
10 февраля
Оценка:
Социальная инфраструктура
Планировки
Способы покупки
Двор, окружение
Расположение
Комплекс расположен в нормальном спальнике с развитой инфраструктурой, что является огромным плюсом для жизни. Магазины, школы, детские садики — всё находится в шаговой доступности, и это делает жизнь намного комфортнее. Я всегда мечтал о том, чтобы все необходимые услуги были под рукой
Ответить
Полезный отзыв?
Самый новый отзыв
ИЛ
27 октября
Оценка:
Хороший район в плане транспортной доступности, и с машиной и без - в любом случае удобно. Нравится тема уютных сканди дворов, жена особенно радовалась покупке квартиры.
Ответить
Полезный отзыв?
Добавьте отзыв, заполнив личные данные, или сначала войдите на сайт, тогда информация будет автоматически взята из личного профиля.
Оценка*