Переверните экран
Поиск бизнес центров

Найдите современный офис в деловых районах Санкт-Петербурга

Найдите современный офис в деловых районах Санкт-Петербурга

Перейти к поиску
Новостройки Квартиры Ипотека Медиа О проекте Контакты Реклама на сайте Vk Youtube Telegram Дзен Продавцы и застройщики Коммерческие помещения Квартиры на карте Эксперты и авторы Машиноместа Акции от застройщиков Банки и программы Апартаменты Новостройки на карте 4-комнатные и более Готовые новостройки 3-комнатные Военная ипотека Покупателю Новостройки Санкт-Петербурга Видеообзор новостроек Семейная ипотека Аналитика рынка Панорамы новостроек 1-комнатные Субсидированная застройщиком Мнение эксперта Студии Ипотечный калькулятор Новости недвижимости Новостройки Ленинградской области ИТ-ипотека Квартиры со скидками до 25% Новостройки премиум-класса Новостройки бизнес-класса Дома и коттеджи Бизнес-центры Бизнес-центры в Санкт-Петербурге Бизнес-центры рядом с метро Строящиеся бизнес-центры Бизнес-центры класса A Ипотека со ставкой 0,1% Траншевая ипотека
Данное предложение на 18.03.2026 неактуально. Пожалуйста, ознакомьтесь с другими похожими предложениями в ЖК «Парусная 1» .
1-комн. квартира, 35.90 м2, 5 этаж
Срок сдачи 4 квартал 2026 года
16 200 000 
451 253 2
обновлено 17 марта

Описание 1-комн. квартиры

Новостройка
Срок ГК
4 квартал 2026 года
Стадия строительства
отделка фасада и внутренние работы
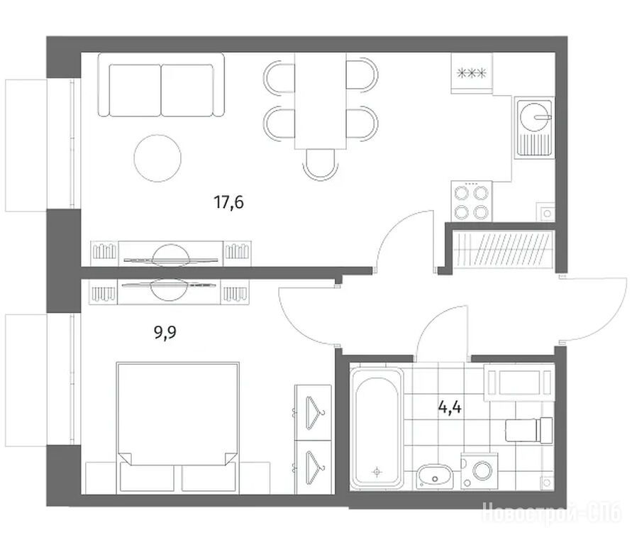
Общая площадь
35.90 м2
Жилая площадь
9.90 м2
Площадь кухни
17.60 м2
Этаж
5 / 13
Отделка
нет

Расположение 1-комн. квартиры

Метро
Дом
1.1
Адрес
ул. Шкиперский проток, 19А, корп.1.1

Особенности

Продается однокомнатная квартира в новостройке ЖК «Парусная 1» по адресу Санкт-Петербург, Василеостровский, ул. Шкиперский проток, 19А, корп.1.1. Общая площадь квартиры - 35.9 кв. м. Тип проекта, по которому построен дом — Монолитно-каркасный, компания-застройщик — АО «СЗ «Строительный трест», ГК «ТРЕСТ». Стоимость квартиры — 16 200 000 руб. Способы оплаты можно уточнить у продавца. Срок сдачи — 4 квартал 2026. Более подробная информация по телефону.
ГК «ТРЕСТ»
ГК «ТРЕСТ»
Сданных 22
|
Строящихся 3
Выбирайте квартиру в ЖК «Парусная 1» по ценам от застройщика

Скидки и спецпредложения от застройщиков

ЖК «Парусная 1» на карте

Выгодные предложения на новостройки

Отзывы о ЖК «Парусная 1»

Самый полезный отзыв
ДМ
25 марта 2025
Оценка:
Достоинства
Социальная инфраструктура
Планировки
Внешний вид фасада
Двор, окружение
Расположение
Остался под приятным впечатлением. Наверное, это лучший вариант из всех, что мы рассматривали на Васильевском. Комплекс выглядит современно и аккуратно. Очень понравилось, что здесь будет паркинг. Удобно, особенно в городских условиях. Еще один важный момент - школа. Для семьи с детьми это огромный плюс. Наличие образовательных учреждений рядом всегда радует, когда думаешь о будущем.
Ответить
Самый новый отзыв
МН
15 января
Оценка:
Достоинства
Планировки
Способы покупки
Двор, окружение
Расположение
Мне нравится сама идея места и то, что проект обещает новую прогулочную набережную/общественное пространство, это редкая ценность для Васильевского. Но по квартирографии есть жёсткая критика: люди прямо ругают планировки, включая спорные решения типа двери в санузел из кухни - и я их понимаю, это реально может быть стоп-фактором
Ответить

Оставить отзыв

Добавьте отзыв, заполнив личные данные, или сначала войдите на сайт, тогда информация будет автоматически взята из личного профиля.
Оценка*