Переверните экран
Новостройки Квартиры Ипотека Медиа О проекте Контакты Реклама на сайте Vk Youtube Telegram Дзен Продавцы и застройщики Коммерческие помещения Квартиры на карте Эксперты и авторы Машиноместа Акции от застройщиков Банки и программы Апартаменты Новостройки на карте 4-комнатные и более Готовые новостройки 3-комнатные Военная ипотека Покупателю Новостройки Санкт-Петербурга Видеообзор новостроек Семейная ипотека Аналитика рынка Панорамы новостроек 1-комнатные Субсидированная застройщиком Мнение эксперта Студии Ипотечный калькулятор Новости недвижимости Новостройки Ленинградской области IT-ипотека Квартиры со скидками до 25% Новостройки премиум-класса Новостройки бизнес-класса Дома и коттеджи Бизнес-центры Бизнес-центры в Санкт-Петербурге Бизнес-центры рядом с метро Строящиеся бизнес-центры Бизнес-центры класса A
Данное предложение на 16.12.2025 неактуально. Пожалуйста, ознакомьтесь с другими похожими предложениями в ЖК OKLA (ОКЛА) .
1-комн. квартира, 41.68 м2, 3 этаж
Срок сдачи 2 квартал 2027 года
10 595 056 
254 200 2
обновлено 10 декабря

Описание 1-комн. квартиры

Новостройка
Застройщик
Срок ГК
2 квартал 2027 года
Стадия строительства
монтаж нижних этажей
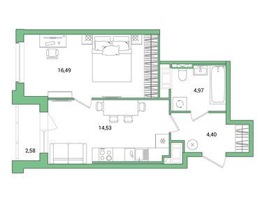
Общая площадь
41.68 м2
Жилая площадь
16.49 м2
Площадь кухни
14.53 м2
Этаж
3 / 25
Отделка
чистовая
Грузовой лифт
есть

Расположение 1-комн. квартиры

Локация
Ж/Д-станция
Дом
2.2.1
Адрес
Суздальское шоссе, 20., секция 1

Особенности

Продается однокомнатная квартира в новостройке ЖК OKLA (ОКЛА) по адресу Санкт-Петербург, Приморский, Суздальское шоссе, 20.. Общая площадь квартиры - 41.68 кв. м. Тип проекта, по которому построен дом — Монолитно-кирпичный, компания-застройщик — «Ленстройтрест». Стоимость квартиры — 10 595 056 руб. Способы оплаты можно уточнить у продавца. Срок сдачи — 2 квартал 2027. Более подробная информация по телефону.
Инфоцентр новостроек
Инфоцентр новостроек
+7 (812) 424-49-09
Время работы 9:00 — 21:00

Похожие квартиры в ЖК OKLA

5 этаж
из 25 2 квартал 2027
Санкт-Петербург, Санкт-Петербург
Парнас
10 мин.
2.2.1
Корпус
чистовая
Отделка
2.67 м
Потолки
ЖК OKLA (ОКЛА)
10 661 744
4 этаж
из 25 2 квартал 2027
Санкт-Петербург, Санкт-Петербург
Парнас
10 мин.
2.2.1
Корпус
чистовая
Отделка
2.67 м
Потолки
ЖК OKLA (ОКЛА)
10 661 744
7 этаж
из 25 2 квартал 2027
Санкт-Петербург, Санкт-Петербург
Парнас
10 мин.
2.2.1
Корпус
чистовая
Отделка
2.67 м
Потолки
ЖК OKLA (ОКЛА)
10 778 448
6 этаж
из 25 2 квартал 2027
Санкт-Петербург, Санкт-Петербург
Парнас
10 мин.
2.2.1
Корпус
чистовая
Отделка
2.67 м
Потолки
ЖК OKLA (ОКЛА)
10 778 448
8 этаж
из 25 2 квартал 2027
Санкт-Петербург, Санкт-Петербург
Парнас
10 мин.
2.2.1
Корпус
чистовая
Отделка
2.67 м
Потолки
ЖК OKLA (ОКЛА)
10 849 304
11 этаж
из 25 2 квартал 2027
Санкт-Петербург, Санкт-Петербург
Парнас
10 мин.
2.2.1
Корпус
чистовая
Отделка
2.67 м
Потолки
ЖК OKLA (ОКЛА)
10 849 304
10 этаж
из 25 2 квартал 2027
Санкт-Петербург, Санкт-Петербург
Парнас
10 мин.
2.2.1
Корпус
чистовая
Отделка
2.67 м
Потолки
ЖК OKLA (ОКЛА)
10 849 304
9 этаж
из 25 2 квартал 2027
Санкт-Петербург, Санкт-Петербург
Парнас
10 мин.
2.2.1
Корпус
чистовая
Отделка
2.67 м
Потолки
ЖК OKLA (ОКЛА)
10 849 304
12 этаж
из 25 2 квартал 2027
Санкт-Петербург, Санкт-Петербург
Парнас
10 мин.
2.2.1
Корпус
чистовая
Отделка
2.67 м
Потолки
ЖК OKLA (ОКЛА)
10 849 304
15 этаж
из 25 2 квартал 2027
Санкт-Петербург, Санкт-Петербург
Парнас
10 мин.
2.2.1
Корпус
чистовая
Отделка
2.67 м
Потолки
ЖК OKLA (ОКЛА)
10 903 488
13 этаж
из 25 2 квартал 2027
Санкт-Петербург, Санкт-Петербург
Парнас
10 мин.
2.2.1
Корпус
чистовая
Отделка
2.67 м
Потолки
ЖК OKLA (ОКЛА)
10 903 488
14 этаж
из 25 2 квартал 2027
Санкт-Петербург, Санкт-Петербург
Парнас
10 мин.
2.2.1
Корпус
чистовая
Отделка
2.67 м
Потолки
ЖК OKLA (ОКЛА)
10 903 488
Посмотреть все спецпредложения
студия 28,02 м2 6 761 226
Этаж 18/25
СПБ, ЖК OKLA (ОКЛА)
Парнас
10 мин.
Строится
студия 28,05 м2 7 248 120
Этаж 18/25
СПБ, ЖК OKLA (ОКЛА)
Парнас
10 мин.
Строится
студия 28,10 м2 7 030 620
Этаж 17/25
СПБ, ЖК OKLA (ОКЛА)
Парнас
10 мин.
Строится
студия 28,15 м2 6 933 345
Этаж 17/25
СПБ, ЖК OKLA (ОКЛА)
Парнас
10 мин.
Строится
Посмотреть 144 квартиры в ЖК OKLA
1-комн. квартира 31,55 м2 8 641 545
Этаж 1/7
СПБ, ЖК OKLA (ОКЛА)
Парнас
10 мин.
Строится
1-комн. квартира 31,56 м2 8 802 084
Этаж 1/7
СПБ, ЖК OKLA (ОКЛА)
Парнас
10 мин.
Строится
1-комн. квартира 32,56 м2 9 178 664
Этаж 2/7
СПБ, ЖК OKLA (ОКЛА)
Парнас
10 мин.
Строится
1-комн. квартира 32,62 м2 8 999 858
Этаж 2/7
СПБ, ЖК OKLA (ОКЛА)
Парнас
10 мин.
Строится
Посмотреть 213 квартир в ЖК OKLA
2-комн. квартира 31,79 м2 8 681 849
Этаж 1/7
СПБ, ЖК OKLA (ОКЛА)
Парнас
10 мин.
Строится
2-комн. квартира 32,83 м2 8 791 874
Этаж 1/7
СПБ, ЖК OKLA (ОКЛА)
Парнас
10 мин.
Строится
2-комн. квартира 32,91 м2 9 320 112
Этаж 4/7
СПБ, ЖК OKLA (ОКЛА)
Парнас
10 мин.
Строится
2-комн. квартира 33,96 м2 9 546 156
Этаж 6/7
СПБ, ЖК OKLA (ОКЛА)
Парнас
10 мин.
Строится
Посмотреть 60 квартир в ЖК OKLA
3-комн. квартира 64,37 м2 18 075 096
Этаж 19/25
СПБ, ЖК OKLA (ОКЛА)
Парнас
10 мин.
Строится
3-комн. квартира 64,59 м2 18 505 035
Этаж 20/25
СПБ, ЖК OKLA (ОКЛА)
Парнас
10 мин.
Строится
3-комн. квартира 64,99 м2 17 462 813
Этаж 8/25
СПБ, ЖК OKLA (ОКЛА)
Парнас
10 мин.
Строится
3-комн. квартира 65,21 м2 16 628 550
Этаж 4/25
СПБ, ЖК OKLA (ОКЛА)
Парнас
10 мин.
Строится
Посмотреть 75 квартир в ЖК OKLA
4-комн. квартира 97,86 м2 25 717 608
Этаж 2/7
СПБ, ЖК OKLA (ОКЛА)
Парнас
10 мин.
Строится
Посмотреть 5 квартир в ЖК OKLA

Скидки и спецпредложения от застройщиков

ЖК OKLA (ОКЛА) на карте

Выгодные предложения на новостройки

Самый полезный отзыв
К
14 декабря 2020
Оценка:
Транспортная доступность
Экология
Социальная инфраструктура
Планировки
Скорость строительства
Подземный паркинг
Двор, окружение
Расположение
Почему-то на этом сайте мало отзывов, но я выбирала тут, так что решила оставить отзыв. Здорово, что участок около озёр отдали под новостройки. Не смогли удержаться от привлекательности современных ЖК и решили поменять свою старую квартиру на новую. Во-первых, контингент соседей в новых поприличнее старых кварталов, ну и конечно самое главное это безопасные дворы, ребенок подрастает, хочет уже самостоятельно гулять. ЖК выбрали по соотношение цена-отделка-планировка, но еще подкупило расположение. Вроде и в городе, метро рядом, Суздальский, ЗСД. Но при этом загородная экология, летом будет купаться где рядышком. Мы искали двушку, понравилось, что в Ойкумене полноценные изолированные двушки и кухня при этом нормального размера. Расположение с/у также радует. В цену входит отделка, так что цена очень выгодна. Ну и понравились зеленые виды из окна. Район этот обостроенный, мы тут давненько уже живём, всего для жизни хватает и торговых, и развлекательных. Радует, что у нового ЖК школа будет совсем рядышком, пешком.
Ответить
Полезный отзыв?
Самый новый отзыв
АД
17 сентября 2024
Оценка:
Экология
Социальная инфраструктура
Готовность
Транспортная доступность
На моменте сделки было куча вопросов, думала, что уже и квартиру мне не отдадут за вредность. но нет, все успешно, на все ответили, все рассказали
Ответить
Полезный отзыв?
Добавьте отзыв, заполнив личные данные, или сначала войдите на сайт, тогда информация будет автоматически взята из личного профиля.
Оценка*