Переверните экран
Новостройки Квартиры Ипотека Медиа О проекте Контакты Реклама на сайте Vk Youtube Telegram Дзен Продавцы и застройщики Коммерческие помещения Квартиры на карте Эксперты и авторы Машиноместа Акции от застройщиков Банки и программы Апартаменты Новостройки на карте 4-комнатные и более Готовые новостройки 3-комнатные Военная ипотека Покупателю Новостройки Санкт-Петербурга Видеообзор новостроек Семейная ипотека Аналитика рынка Панорамы новостроек 1-комнатные Субсидированная застройщиком Мнение эксперта Студии Ипотечный калькулятор Новости недвижимости Новостройки Ленинградской области IT-ипотека Квартиры со скидками до 25% Новостройки премиум-класса Новостройки бизнес-класса Дома и коттеджи Бизнес-центры Бизнес-центры в Санкт-Петербурге Бизнес-центры рядом с метро Строящиеся бизнес-центры Бизнес-центры класса A
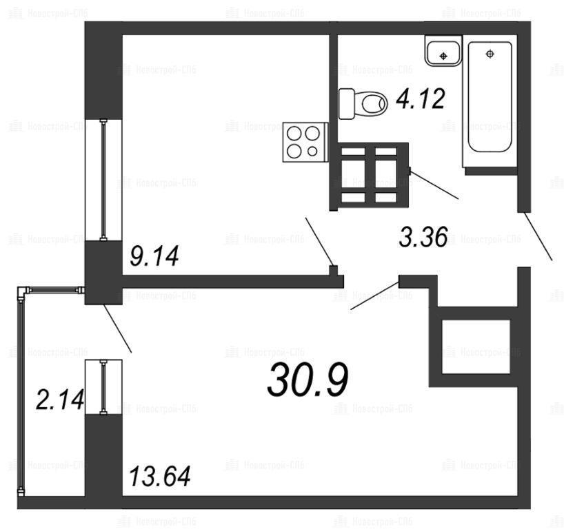
1-комн. квартира, 30.90 м2, 2 этаж
Сдан
6 146 535 
198 917 2
обновлено 15 декабря

Описание 1-комн. квартиры

Новостройка
Срок ГК
Дом сдан
Стадия строительства
Общая площадь
30.90 м2
Этаж
2 / 11
Отделка
чистовая
Тип санузла
совмещенный

Расположение 1-комн. квартиры

Локация
Метро
Ж/Д-станция
Колпино
25 мин.
Дом
39
Адрес
ЖК «Новое Колпино», корп. 42-44, 46, 48, 50-53

Способы покупки

Особенности

Продается однокомнатная квартира в новостройке ЖК «Новое Колпино» по адресу Санкт-Петербург, Колпинский, Колпино, ЖК «Новое Колпино», корп. 42-44, 46, 48, 50-53. Общая площадь квартиры - 30.9 кв. м. Тип проекта, по которому построен дом — Монолитно-кирпичный, компания-застройщик — ООО «СПб Реновация», Самолет. Стоимость квартиры — 6 146 535 руб. Способы оплаты можно уточнить у продавца. Более подробная информация по телефону.

Правовые документы

Инфоцентр новостроек
Инфоцентр новостроек
Время работы 9:00 — 21:00
Выбирайте квартиру в ЖК «Новое Колпино» по ценам от застройщика
Посмотреть все спецпредложения
студия 21,83 м2 3 801 938
Этаж 4/12
СПБ, ЖК «Новое Колпино»
Рыбацкое
23 мин.
Строится
Этаж 3/11
СПБ, ЖК «Новое Колпино»
Рыбацкое
23 мин.
Сдан
студия 22,56 м2 4 330 031
Этаж 3/12 балкон
СПБ, ЖК «Новое Колпино»
Рыбацкое
23 мин.
Строится
студия 22,72 м2 5 126 950
Этаж 3/12 балкон
СПБ, ЖК «Новое Колпино»
Рыбацкое
23 мин.
Строится
Посмотреть 42 квартиры в ЖК «Новое Колпино»
Этаж 2/11
СПБ, ЖК «Новое Колпино»
Рыбацкое
23 мин.
Сдан
Этаж 2/11
СПБ, ЖК «Новое Колпино»
Рыбацкое
23 мин.
Сдан
Этаж 10/11
СПБ, ЖК «Новое Колпино»
Рыбацкое
23 мин.
Сдан
Этаж 8/11
СПБ, ЖК «Новое Колпино»
Рыбацкое
23 мин.
Сдан
Посмотреть 35 квартир в ЖК «Новое Колпино»
Этаж 10/11
СПБ, ЖК «Новое Колпино»
Рыбацкое
23 мин.
Сдан
Этаж 4/11
СПБ, ЖК «Новое Колпино»
Рыбацкое
23 мин.
Сдан
Этаж 7/11
СПБ, ЖК «Новое Колпино»
Рыбацкое
23 мин.
Сдан
Этаж 7/12 балкон
СПБ, ЖК «Новое Колпино»
Рыбацкое
23 мин.
Строится
Посмотреть 26 квартир в ЖК «Новое Колпино»
Этаж 1/11
СПБ, ЖК «Новое Колпино»
Рыбацкое
23 мин.
Сдан
Этаж 6/11
СПБ, ЖК «Новое Колпино»
Рыбацкое
23 мин.
Сдан
Этаж 11/11
СПБ, ЖК «Новое Колпино»
Рыбацкое
23 мин.
Сдан
3-комн. квартира 87,35 м2 16 783 866
Этаж 2/12
СПБ, ЖК «Новое Колпино»
Рыбацкое
23 мин.
Строится
Посмотреть 11 квартир в ЖК «Новое Колпино»

Скидки и спецпредложения от застройщиков

ЖК «Новое Колпино» на карте

Выгодные предложения на новостройки

Отзывы о ЖК «Новое Колпино»

Самый полезный отзыв
А
26 декабря 2017
Оценка:
Это ж проект Реновации, а значит не стоит переживать за качество домов, по внешнему виду домиков, по планировкам, по инфраструктуре в комплексе видно, что продуманно для жизни. Присматриваю тут квартиру, как только одобрят удаленный вариант работы, буду брать, потому как мотаться в город каждый день-крайне неудобно
Ответить
Полезный отзыв?
Самый новый отзыв
ВЛ
07 декабря
Оценка:
проект достойный внимания, стоимость однокомнатной квартиры начинается от 6млн, сдача уже к близиться к концу
Ответить
Полезный отзыв?
Добавьте отзыв, заполнив личные данные, или сначала войдите на сайт, тогда информация будет автоматически взята из личного профиля.
Оценка*