Переверните экран
Новостройки Квартиры Ипотека Медиа О проекте Контакты Реклама на сайте Vk Youtube Telegram Дзен Продавцы и застройщики Коммерческие помещения Квартиры на карте Эксперты и авторы Машиноместа Акции от застройщиков Банки и программы Апартаменты Новостройки на карте 4-комнатные и более Готовые новостройки 3-комнатные Военная ипотека Покупателю Новостройки Санкт-Петербурга Видеообзор новостроек Семейная ипотека Аналитика рынка Панорамы новостроек 1-комнатные Субсидированная застройщиком Мнение эксперта Студии Ипотечный калькулятор Новости недвижимости Новостройки Ленинградской области IT-ипотека Квартиры со скидками до 25% Новостройки премиум-класса Новостройки бизнес-класса Дома и коттеджи Бизнес-центры Бизнес-центры в Санкт-Петербурге Бизнес-центры рядом с метро Строящиеся бизнес-центры Бизнес-центры класса A
Данное предложение на 16.12.2025 неактуально. Пожалуйста, ознакомьтесь с другими похожими предложениями в ЖК «Новый город» (Выборг) .
1-комн. квартира, 46.37 м2, 1 этаж
Срок сдачи 4 квартал 2025 года
8 346 600 
180 000 2
обновлено 3 декабря

Описание 1-комн. квартиры

Застройщик
Срок ГК
4 квартал 2025 года
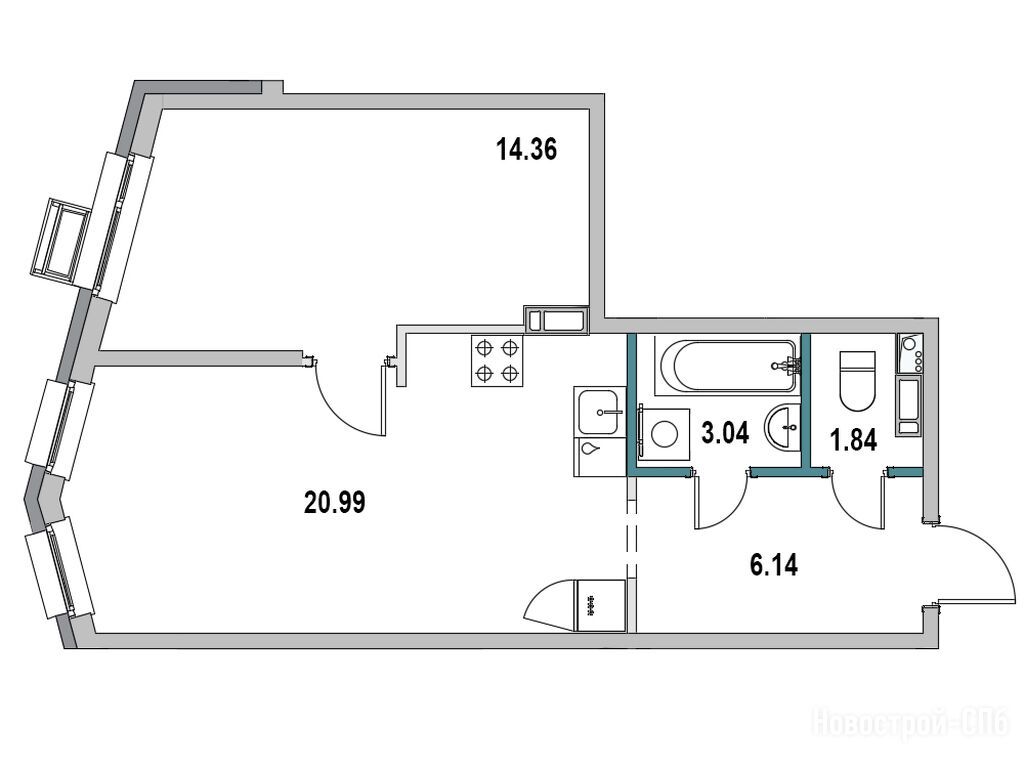
Общая площадь
46.37 м2
Жилая площадь
14.36 м2
Площадь кухни
20.99 м2
Этаж
1 / 8
Грузовой лифт
есть

Расположение 1-комн. квартиры

Дом
1
Адрес
ул. 1-я Южная, секция 1

Особенности

Продается однокомнатная квартира в новостройке ЖК «Новый город» (Выборг) по адресу Ленинградская область, Выборгский район, Выборг, ул. 1-я Южная. Общая площадь квартиры - 46.37 кв. м. Тип проекта, по которому построен дом — Монолитно-кирпичный, компания-застройщик — Унистрой. Стоимость квартиры — 8 346 600 руб. Способы оплаты можно уточнить у продавца. Срок сдачи — 4 квартал 2025. Более подробная информация по телефону.
Инфоцентр новостроек
Инфоцентр новостроек
Время работы 9:00 — 21:00
Выбирайте квартиру в ЖК «Новый город» (Выборг) по ценам от застройщика
ЖК «Новый город» (Выборг) ЖК «Новый город» (Выборг)|Новострой-СПб
ЖК «Новый город» (Выборг)|Новострой-СПб
ЖК «Новый город» (Выборг)|Новострой-СПб
Посмотреть все спецпредложения

Скидки и спецпредложения от застройщиков

ЖК «Новый город» (Выборг) на карте

Выгодные предложения на новостройки

Отзывы о ЖК «Новом городе» (Выборг)

Самый полезный отзыв
МП
25 марта
Оценка:
Внешний вид фасада
Двор, окружение
Расположение
Фасад дома радует своим современным дизайном. Уверен, что он будет выделяться на фоне других зданий. К тому же, забор уберут, и территория вокруг ЖК станет более открытой и уютной. Заметил, как быстро идут работы на строительстве. Судя по темпам, объект сдадут в срок. В общем, кажется, что здесь всё было тщательно продумано для комфортного проживания.
Ответить
Полезный отзыв?
Самый новый отзыв
П
31 августа
Оценка:
обратил внимание на этот ЖК из-за его красивых и функциональных планировок. А развитая инфраструктура, которая будет создана, гарантирует, кмк, высокий уровень жизни
Ответить
Полезный отзыв?
Добавьте отзыв, заполнив личные данные, или сначала войдите на сайт, тогда информация будет автоматически взята из личного профиля.
Оценка*