Переверните экран
Новостройки Квартиры Ипотека Медиа О проекте Контакты Реклама на сайте Vk Youtube Telegram Дзен Продавцы и застройщики Коммерческие помещения Квартиры на карте Эксперты и авторы Машиноместа Акции от застройщиков Банки и программы Апартаменты Новостройки на карте 4-комнатные и более Готовые новостройки 3-комнатные Военная ипотека Покупателю Новостройки Санкт-Петербурга Видеообзор новостроек Семейная ипотека Аналитика рынка Панорамы новостроек 1-комнатные Субсидированная застройщиком Мнение эксперта Студии Ипотечный калькулятор Новости недвижимости Новостройки Ленинградской области IT-ипотека Квартиры со скидками до 25% Новостройки премиум-класса Новостройки бизнес-класса Дома и коттеджи Бизнес-центры Бизнес-центры в Санкт-Петербурге Бизнес-центры рядом с метро Строящиеся бизнес-центры Бизнес-центры класса A
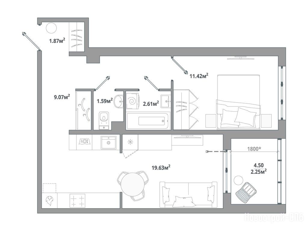
1-комн. квартира, 48.44 м2, 8 этаж
Сдан
14 776 878 
305 055 2
обновлено 17 декабря

Описание 1-комн. квартиры

Новостройка
Застройщик
ГК ЕДИНО СЗ «Аврора»
Срок ГК
Дом сдан
Стадия строительства
Тип проекта
блочный
Общая площадь
48.44 м2
Жилая площадь
11.42 м2
Площадь кухни
19.63 м2
Этаж
8 / 12
Отделка
чистовая
Грузовой лифт
есть

Расположение 1-комн. квартиры

Ж/Д-станция
Дом
2
Адрес
ул. Большая Балтийская, 10к2, секция 4

Способы покупки

Особенности

Продается однокомнатная квартира в новостройке ЖК «ЛесART» (ЛесАрт) по адресу Ленинградская область, Ломоносовский район, Аннинское, Новоселье пос., ул. Большая Балтийская, 10к2. Общая площадь квартиры - 48.44 кв. м. Тип проекта, по которому построен дом — Блочный, компания-застройщик — ГК ЕДИНО, СЗ «Аврора». Стоимость квартиры — 14 776 878 руб. Способы оплаты можно уточнить у продавца. Более подробная информация по телефону.
Инфоцентр новостроек
Инфоцентр новостроек
+7 (812) 424-49-09
Время работы 9:00 — 21:00
Посмотреть все спецпредложения
студия 25,38 м2 6 598 800
Этаж 8/12
ЛО, ЖК «ЛесART» (ЛесАрт)
Проспект Ветеранов
20 мин.
Сдан
студия 25,79 м2 7 086 891
Этаж 11/12
ЛО, ЖК «ЛесART» (ЛесАрт)
Проспект Ветеранов
20 мин.
Сдан
студия 31,05 м2 8 124 432
Этаж 5/12
ЛО, ЖК «ЛесART» (ЛесАрт)
Проспект Ветеранов
20 мин.
Строится
студия 31,07 м2 8 129 667
Этаж 3/12
ЛО, ЖК «ЛесART» (ЛесАрт)
Проспект Ветеранов
20 мин.
Строится
Посмотреть 46 квартир в ЖК «ЛесART»
1-комн. квартира 24,49 м2 7 016 875
Этаж 10/12
ЛО, ЖК «ЛесART» (ЛесАрт)
Проспект Ветеранов
20 мин.
Строится
1-комн. квартира 27,94 м2 7 207 698
Этаж 1/12
ЛО, ЖК «ЛесART» (ЛесАрт)
Проспект Ветеранов
20 мин.
Строится
1-комн. квартира 28,76 м2 7 829 757
Этаж 8/12
ЛО, ЖК «ЛесART» (ЛесАрт)
Проспект Ветеранов
20 мин.
Строится
1-комн. квартира 30,50 м2 7 432 707
Этаж 2/12
ЛО, ЖК «ЛесART» (ЛесАрт)
Проспект Ветеранов
20 мин.
Строится
Посмотреть 335 квартир в ЖК «ЛесART»
2-комн. квартира 53,11 м2 14 258 972
Этаж 3/12
ЛО, ЖК «ЛесART» (ЛесАрт)
Проспект Ветеранов
20 мин.
Строится
2-комн. квартира 55,95 м2 14 622 104
Этаж 1/12
ЛО, ЖК «ЛесART» (ЛесАрт)
Проспект Ветеранов
20 мин.
Строится
2-комн. квартира 58,36 м2 14 609 224
Этаж 1/12
ЛО, ЖК «ЛесART» (ЛесАрт)
Проспект Ветеранов
20 мин.
Строится
2-комн. квартира 58,48 м2 14 865 891
Этаж 2/12
ЛО, ЖК «ЛесART» (ЛесАрт)
Проспект Ветеранов
20 мин.
Строится
Посмотреть 52 квартиры в ЖК «ЛесART»
3-комн. квартира 73,00 м2 19 924 705
Этаж 7/12
ЛО, ЖК «ЛесART» (ЛесАрт)
Проспект Ветеранов
20 мин.
Строится
3-комн. квартира 81,33 м2 22 178 212
Этаж 8/12
ЛО, ЖК «ЛесART» (ЛесАрт)
Проспект Ветеранов
20 мин.
Строится
3-комн. квартира 85,03 м2 20 121 198
Этаж 1/12
ЛО, ЖК «ЛесART» (ЛесАрт)
Проспект Ветеранов
20 мин.
Строится
3-комн. квартира 88,51 м2 21 955 477
Этаж 6/12
ЛО, ЖК «ЛесART» (ЛесАрт)
Проспект Ветеранов
20 мин.
Строится
Посмотреть 11 квартир в ЖК «ЛесART»
Этаж 12/12
ЛО, ЖК «ЛесART» (ЛесАрт)
Проспект Ветеранов
20 мин.
Сдан

Скидки и спецпредложения от застройщиков

ЖК «ЛесART» (ЛесАрт) на карте

Выгодные предложения на новостройки

Отзывы о ЖК «ЛесART»

Самый полезный отзыв
А
05 апреля 2023
Оценка:
Экология
Социальная инфраструктура
Планировки
Двор, окружение
Расположение не далеко от города, заезжали посмотреть ход строительства несколько раз и утром и вечером в заторы не попадали.
Ответить
Полезный отзыв?
Самый новый отзыв
ПВ
17 декабря
Оценка:
Планировки
Способы покупки
Двор, окружение
В целом впечатление хорошее: часто пишут про зелёное окружение, вид на лес, семейные планировки и «умный дом» как приятный бонус. Мне близка идея «не в центре, но с воздухом» и при этом рядом с развивающейся инфраструктурой. Из минусов отмечают общественный транспорт/логистику: если без машины, может быть неудобно.
Ответить
Полезный отзыв?
Добавьте отзыв, заполнив личные данные, или сначала войдите на сайт, тогда информация будет автоматически взята из личного профиля.
Оценка*