Переверните экран
Поиск домов и коттеджей

Найдите идеальный дом или коттедж в Санкт-Петербурге и области

Найдите идеальный дом или коттедж в Санкт-Петербурге и области

Перейти к поиску
Новостройки Квартиры Ипотека Медиа О проекте Контакты Реклама на сайте Vk Youtube Telegram Дзен Продавцы и застройщики Коммерческие помещения Квартиры на карте Эксперты и авторы Машиноместа Акции от застройщиков Банки и программы Апартаменты Новостройки на карте 4-комнатные и более Готовые новостройки 3-комнатные Военная ипотека Покупателю Новостройки Санкт-Петербурга Видеообзор новостроек Семейная ипотека Аналитика рынка Панорамы новостроек 1-комнатные Субсидированная застройщиком Мнение эксперта Студии Ипотечный калькулятор Новости недвижимости Новостройки Ленинградской области ИТ-ипотека Квартиры со скидками до 25% Новостройки премиум-класса Новостройки бизнес-класса Дома и коттеджи Коттеджные поселки в Санкт-Петербурге Коттеджные поселки в Ленинградской обл Готовые коттеджные поселки Строящиеся коттеджные поселки Коттеджные поселки у леса Коттеджные поселки у водоема Коттеджные поселки в ипотеку Бизнес-центры Коттеджи Ипотека со ставкой 0,1% Траншевая ипотека
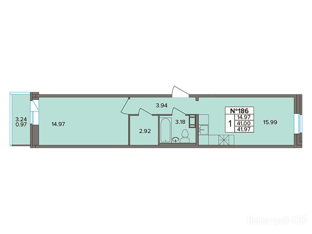
1-комн. квартира, 41.97 м2, 2 этаж
Сдан
10 492 500 
250 000 2
обновлено 4 мая

Описание 1-комн. квартиры

Новостройка
Срок ГК
Дом сдан
Стадия строительства
выдача ключей + заселение
Общая площадь
41.97 м2
Жилая площадь
14.97 м2
Площадь кухни
15.99 м2
Этаж
2 / 9
Грузовой лифт
есть

Расположение 1-комн. квартиры

Дом
1
Адрес
ул. Лесная , д.19, секция 3

Способы покупки

Особенности

Продается однокомнатная квартира в новостройке ЖК «Капральский» по адресу Ленинградская область, Всеволожский район, ул. Лесная , д.19. Общая площадь квартиры - 41.97 кв. м. Тип проекта, по которому построен дом — Монолитно-кирпичный, компания-застройщик — ИСК Вита, ООО «СЗ Решение»(ИСК Вита). Стоимость квартиры — 10 492 500 руб. Способы оплаты можно уточнить у продавца. Более подробная информация по телефону.
Инфоцентр новостроек
Инфоцентр новостроек
Время работы 9:00 — 21:00
Выбирайте квартиру в ЖК «Капральский» по ценам от застройщика

Похожие квартиры в ЖК «Капральский»

7 этаж
из 9 Дом сдан
Ленинградская область, Ленинградская область
Гражданский проспект
21 мин.
1
Корпус
нет данных
Отделка
2.65 м
Потолки
ЖК «Капральский»
10 492 500
ДОМ.РФ
6.00%
Ставка
20.01%
Первый взнос
от 62 908 /мес.
Все варианты
8 этаж
из 9 Дом сдан
Ленинградская область, Ленинградская область
Гражданский проспект
21 мин.
1
Корпус
нет данных
Отделка
2.65 м
Потолки
ЖК «Капральский»
10 492 500
ДОМ.РФ
6.00%
Ставка
20.01%
Первый взнос
от 62 908 /мес.
Все варианты
9 этаж
из 9 Дом сдан
Ленинградская область, Ленинградская область
Гражданский проспект
21 мин.
1
Корпус
нет данных
Отделка
2.65 м
Потолки
ЖК «Капральский»
10 492 500
ДОМ.РФ
6.00%
Ставка
20.01%
Первый взнос
от 62 908 /мес.
Все варианты
студия 21,57 м2 5 435 640
Этаж 9/9
ЛО, ЖК «Капральский»
Гражданский проспект
21 мин.
Сдан
студия 21,80 м2 5 493 600
Этаж 1/9
ЛО, ЖК «Капральский»
Гражданский проспект
21 мин.
Сдан
Этаж 8/8
ЛО, ЖК «Капральский»
Гражданский проспект
21 мин.
Сдан
студия 23,35 м2 5 884 200
Этаж 3/9
ЛО, ЖК «Капральский»
Гражданский проспект
21 мин.
Сдан
Посмотреть 25 квартир в ЖК «Капральский»
1-комн. квартира 31,94 м2 8 048 880
Этаж 1/9
ЛО, ЖК «Капральский»
Гражданский проспект
21 мин.
Сдан
1-комн. квартира 32,27 м2 8 067 500
Этаж 1/9
ЛО, ЖК «Капральский»
Гражданский проспект
21 мин.
Сдан
1-комн. квартира 33,29 м2 8 322 500
Этаж 9/9
ЛО, ЖК «Капральский»
Гражданский проспект
21 мин.
Сдан
1-комн. квартира 33,45 м2 8 362 500
Этаж 7/9
ЛО, ЖК «Капральский»
Гражданский проспект
21 мин.
Сдан
Посмотреть 69 квартир в ЖК «Капральский»
2-комн. квартира 46,35 м2 11 587 500
Этаж 1/8
ЛО, ЖК «Капральский»
Гражданский проспект
21 мин.
Сдан
2-комн. квартира 52,69 м2 13 172 500
Этаж 1/9
ЛО, ЖК «Капральский»
Гражданский проспект
21 мин.
Сдан
2-комн. квартира 56,50 м2 14 125 000
Этаж 8/8
ЛО, ЖК «Капральский»
Гражданский проспект
21 мин.
Сдан

Скидки и спецпредложения от застройщиков

ЖК «Капральский» на карте

Выгодные предложения на новостройки

Отзывы о ЖК «Капральский»

Самый полезный отзыв
АК
28 февраля 2025
Оценка:
Достоинства
Социальная инфраструктура
Планировки
Внешний вид фасада
Расположение
Мы искали место где будет преимущественно молодые семейные соседи и хотели всего максимально нового. Жилой комплекс привлекает своим современным дизайном, и продуманная планировка помещений соответствует всем нашим ожиданиям. Инфраструктура здесь достаточно развитая, много магазинов, кафе и площадок для отдыха.
Ответить
Самый новый отзыв
М
05 апреля
Оценка:
Нам всё-таки удалось купить квартиру, которую хотели. Поначалу не верилось, но когда подписали договор и получили ключи, поняли — это не сон. Выбрали планировку с большими окнами, и теперь каждое утро начинается с солнца и зелени за стеклом. Соседи попались тихие, а управляющая компания работает быстро — свет на площадке перегорел, так на следующий же день заменили. Жить тут, как на небольшом курорте, только с собственной парковкой и без переплат.
Ответить

Оставить отзыв

Добавьте отзыв, заполнив личные данные, или сначала войдите на сайт, тогда информация будет автоматически взята из личного профиля.
Оценка*