Переверните экран
Поиск домов и коттеджей

Найдите идеальный дом или коттедж в Санкт-Петербурге и области

Найдите идеальный дом или коттедж в Санкт-Петербурге и области

Перейти к поиску
Новостройки Квартиры Ипотека Медиа О проекте Контакты Реклама на сайте Vk Youtube Telegram Дзен Продавцы и застройщики Коммерческие помещения Квартиры на карте Эксперты и авторы Машиноместа Акции от застройщиков Банки и программы Апартаменты Новостройки на карте 4-комнатные и более Готовые новостройки 3-комнатные Военная ипотека Покупателю Новостройки Санкт-Петербурга Видеообзор новостроек Семейная ипотека Аналитика рынка Панорамы новостроек 1-комнатные Субсидированная застройщиком Мнение эксперта Студии Ипотечный калькулятор Новости недвижимости Новостройки Ленинградской области IT-ипотека Квартиры со скидками до 25% Новостройки премиум-класса Новостройки бизнес-класса Дома и коттеджи Бизнес-центры Бизнес-центры в Санкт-Петербурге Бизнес-центры рядом с метро Строящиеся бизнес-центры Бизнес-центры класса A
1-комн. квартира, 38.50 м2, 17 этаж
Срок сдачи 1 квартал 2029 года
16 209 833 
19 768 089
421 035 2
обновлено 5 декабря

Описание 1-комн. квартиры

Новостройка
Срок ГК
1 квартал 2029 года
Стадия строительства
уточняется
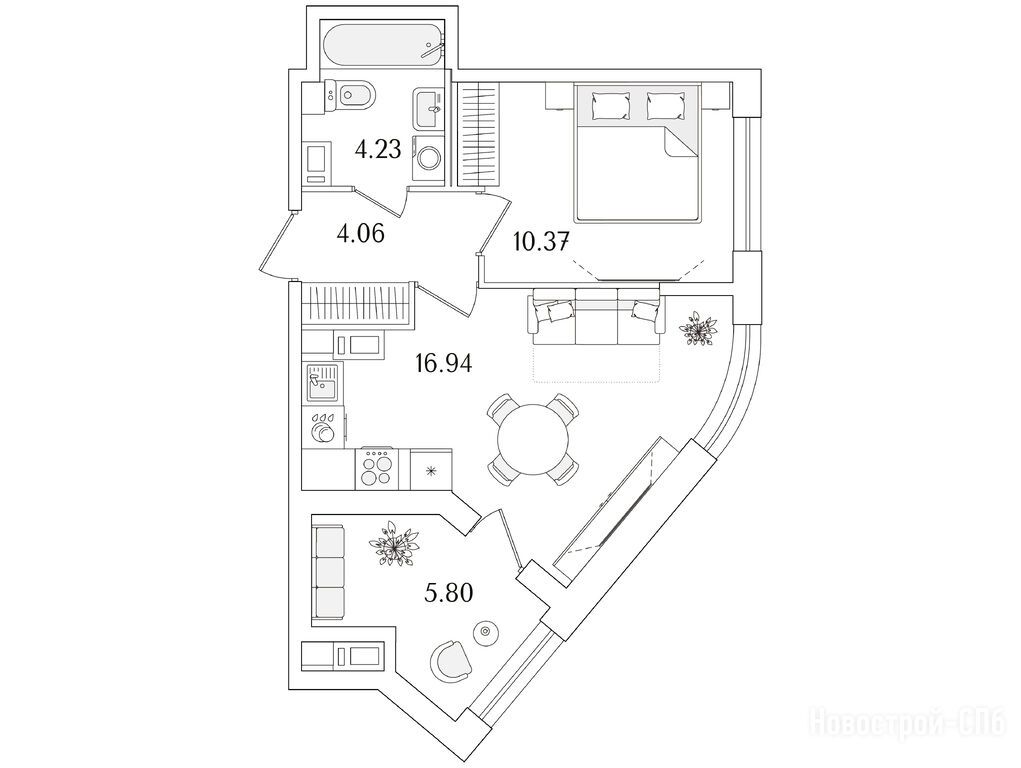
Общая площадь
38.50 м2
Этаж
17 / 17
Отделка
нет

Расположение 1-комн. квартиры

Локация
Метро
Лесная
14 мин.
Дом
1
Адрес
Кондратьевский проспект, 60

Особенности

Продается однокомнатная квартира в новостройке ЖК «Аурум» по адресу Санкт-Петербург, Калининский, Кондратьевский проспект, 60. Общая площадь квартиры - 38.5 кв. м. Тип проекта, по которому построен дом — Монолитно-кирпичный, компания-застройщик — ГК РСТИ (РосСтройИнвест). Стоимость квартиры — 16 209 833 руб. Способы оплаты можно уточнить у продавца. Срок сдачи — 1 квартал 2029. Более подробная информация по телефону.
Инфоцентр новостроек
Инфоцентр новостроек
Время работы 9:00 — 21:00
Выбирайте квартиру в ЖК «Аурум» по ценам от застройщика

Похожие квартиры в ЖК «Аурум»

16 этаж
из 17 1 квартал 2029
Санкт-Петербург, Санкт-Петербург
Лесная
14 мин.
1
Корпус
нет
Отделка
2.74 м
Потолки
ЖК «Аурум»
16 049 963 19 573 125
Посмотреть все спецпредложения
студия 20,40 м2 8 147 523
Этаж 6/17
СПБ, ЖК «Аурум»
Лесная
14 мин.
Строится
студия 20,66 м2 8 030 048
Этаж 5/17
СПБ, ЖК «Аурум»
Лесная
14 мин.
Строится
студия 20,73 м2 8 057 048
Этаж 6/17
СПБ, ЖК «Аурум»
Лесная
14 мин.
Строится
студия 20,80 м2 7 973 029
Этаж 6/17
СПБ, ЖК «Аурум»
Лесная
14 мин.
Строится
Посмотреть 141 квартира в ЖК «Аурум»
1-комн. квартира 30,32 м2 10 795 988
Этаж 2/17
СПБ, ЖК «Аурум»
Лесная
14 мин.
Строится
1-комн. квартира 30,65 м2 10 695 536
Этаж 1/17
СПБ, ЖК «Аурум»
Лесная
14 мин.
Строится
1-комн. квартира 31,19 м2 11 847 298
Этаж 8/17
СПБ, ЖК «Аурум»
Лесная
14 мин.
Строится
1-комн. квартира 31,41 м2 11 515 450
Этаж 3/17
СПБ, ЖК «Аурум»
Лесная
14 мин.
Строится
Посмотреть 353 квартиры в ЖК «Аурум»
2-комн. квартира 48,02 м2 16 395 793
Этаж 5/17
СПБ, ЖК «Аурум»
Лесная
14 мин.
Строится
2-комн. квартира 48,46 м2 18 005 160
Этаж 11/17
СПБ, ЖК «Аурум»
Лесная
14 мин.
Строится
2-комн. квартира 50,02 м2 17 588 529
Этаж 5/17
СПБ, ЖК «Аурум»
Лесная
14 мин.
Строится
2-комн. квартира 50,11 м2 17 620 065
Этаж 6/17
СПБ, ЖК «Аурум»
Лесная
14 мин.
Строится
Посмотреть 129 квартир в ЖК «Аурум»
3-комн. квартира 74,92 м2 27 018 336
Этаж 3/17
СПБ, ЖК «Аурум»
Лесная
14 мин.
Строится
3-комн. квартира 75,38 м2 26 657 176
Этаж 2/17
СПБ, ЖК «Аурум»
Лесная
14 мин.
Строится
3-комн. квартира 78,35 м2 24 920 850
Этаж 2/17
СПБ, ЖК «Аурум»
Лесная
14 мин.
Строится
3-комн. квартира 78,99 м2 24 563 334
Этаж 1/17
СПБ, ЖК «Аурум»
Лесная
14 мин.
Строится
Посмотреть 19 квартир в ЖК «Аурум»

Скидки и спецпредложения от застройщиков

ЖК «Аурум» на карте

Выгодные предложения на новостройки

Отзывы о ЖК «Аурум»

Самый полезный отзыв
А
23 июля
Оценка:
Расположение
Негативят тут про Аурум жилтьцы соседнего жк, кому застройщик не дает теперь парковаться на ранее пустовавшей территории. Конечно, обидно
Показать все комментарии
Ответить
Полезный отзыв?
Самый новый отзыв
С
10 октября
Оценка:
Причем тут ЖК Маршал? Про суд что-то слышал, но вроде у РСТИ все доки-оки. Берем через агентство недвижимости - они дают гарантии
Ответить
Полезный отзыв?
Добавьте отзыв, заполнив личные данные, или сначала войдите на сайт, тогда информация будет автоматически взята из личного профиля.
Оценка*