Переверните экран
Новостройки Квартиры Ипотека Медиа О проекте Контакты Реклама на сайте Vk Youtube Telegram Дзен Продавцы и застройщики Коммерческие помещения Квартиры на карте Эксперты и авторы Машиноместа Акции от застройщиков Банки и программы Апартаменты Новостройки на карте 4-комнатные и более Готовые новостройки 3-комнатные Военная ипотека Покупателю Новостройки Санкт-Петербурга Видеообзор новостроек Семейная ипотека Аналитика рынка Панорамы новостроек 1-комнатные Субсидированная застройщиком Мнение эксперта Студии Ипотечный калькулятор Новости недвижимости Новостройки Ленинградской области IT-ипотека Квартиры со скидками до 25% Новостройки премиум-класса Новостройки бизнес-класса Дома и коттеджи Бизнес-центры Бизнес-центры в Санкт-Петербурге Бизнес-центры рядом с метро Строящиеся бизнес-центры Бизнес-центры класса A
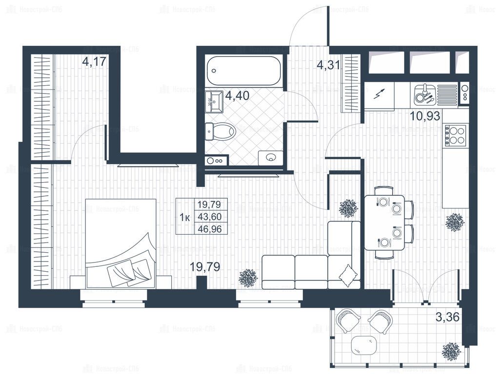
1-комн. квартира, 45.28 м2, 1 этаж
Срок сдачи 1 квартал 2026 года
6 565 600 
145 000 2
обновлено 18 декабря

Описание 1-комн. квартиры

Застройщик
Срок ГК
1 квартал 2026 года
Общая площадь
45.28 м2
Этаж
1 / 9
Отделка
white box
Грузовой лифт
есть

Расположение 1-комн. квартиры

Метро
Купчино
34 мин.
Ж/Д-станция
Дом
18 (оч. 5)
Адрес
Ново-Антропшинская ул., корпус 18 (5 оч.)

Способы покупки

Особенности

Продается однокомнатная квартира в новостройке Квартал «Ново-Антропшино» по адресу Ленинградская область, Гатчинский район, Коммунар, Ново-Антропшинская ул., корпус 18 (5 оч.). Общая площадь квартиры - 45.28 кв. м. Тип проекта, по которому построен дом — Монолитно-кирпичный, компания-застройщик — СЗЛК, Запстрой. Стоимость квартиры — 6 565 600 руб. Способы оплаты можно уточнить у продавца. Срок сдачи — 1 квартал 2026. Более подробная информация по телефону.
Инфоцентр новостроек
Инфоцентр новостроек
+7 (812) 424-49-09
Время работы 9:00 — 21:00
Посмотреть все спецпредложения
студия 26,10 м2 3 998 000
Этаж 4/9
ЛО, Квартал «Ново-Антропшино»
Купчино
34 мин.
Сдан
студия 28,60 м2 4 098 000
Этаж 2/9 балкон
ЛО, Квартал «Ново-Антропшино»
Купчино
34 мин.
Сдан
1-комн. квартира 28,00 м2 4 272 510
Этаж 6/9
ЛО, Квартал «Ново-Антропшино»
Купчино
34 мин.
Сдан
1-комн. квартира 28,10 м2 4 470 120
Этаж 8/9
ЛО, Квартал «Ново-Антропшино»
Купчино
34 мин.
Сдан
1-комн. квартира 28,20 м2 4 339 280
Этаж 8/9
ЛО, Квартал «Ново-Антропшино»
Купчино
34 мин.
Сдан
1-комн. квартира 28,30 м2 4 384 760
Этаж 8/9
ЛО, Квартал «Ново-Антропшино»
Купчино
34 мин.
Сдан
Посмотреть 153 квартиры в Квартале «Ново-Антропшино»
2-комн. квартира 46,54 м2 6 748 300
Этаж 1/9
ЛО, Квартал «Ново-Антропшино»
Купчино
34 мин.
Строится
2-комн. квартира 52,40 м2 9 265 997
Этаж 2/3 лоджия
ЛО, Квартал «Ново-Антропшино»
Купчино
34 мин.
Сдан

Скидки и спецпредложения от застройщиков

Квартал «Ново-Антропшино» на карте

Выгодные предложения на новостройки

Отзывы о Квартале «Ново-Антропшино»

Самый полезный отзыв
Д
18 июня 2018
Оценка:
Транспортная доступность
Экология
Скорость строительства
Подземный паркинг
Живу уже 10 лет в том частном секторе, что рядом с новостройкой. Планирую купить еще квартиру здесь. Про шум электричек- бред. Не мешают совершенно. Это вам не КАД со своими газами. По поводу "молочка от производителя" тоже "в молоко" попали. Коров тут не держат со времен начала стройки- выгуливать теперь негде и сена накосить. Темпы строительства впечатляют. Особенно ларек Шаверма. Был сдан в эксплуатацию первым. Так бы все хорошо, но есть один существенный недостаток. В будущем, когда все это достроят, а планируют тут много, узкое горлышко железнодорожного переезда станет непреодолимым припятствием для жильцов с авто. А для пешеходов красота. За 5 мин до электрички выходишь, и через 40 минут ты на Пушкинской метро.
Ответить
Полезный отзыв?
Самый новый отзыв
ИФ
19 августа
Оценка:
Планировки
Готовность
Способы покупки
Входные группы
Не думала, что покупка квратиры может быть простой и приятной, как оказалось, так бывает) Покупала с рассрочкой от застройщика, за несколько дней оформили все документы, пакет документов минимальный, договор составлен понятно даже для человека далекого от юридических тонкостей. Для меня условия рассрочки действительно удобные - нет удорожания и переплаты, как по ипотеке.
Ответить
Полезный отзыв?
Добавьте отзыв, заполнив личные данные, или сначала войдите на сайт, тогда информация будет автоматически взята из личного профиля.
Оценка*