Переверните экран
Поиск домов и коттеджей

Найдите идеальный дом или коттедж в Санкт-Петербурге и области

Найдите идеальный дом или коттедж в Санкт-Петербурге и области

Перейти к поиску
Новостройки Квартиры Ипотека Медиа О проекте Контакты Реклама на сайте Vk Youtube Telegram Дзен Продавцы и застройщики Коммерческие помещения Квартиры на карте Эксперты и авторы Машиноместа Акции от застройщиков Банки и программы Апартаменты Новостройки на карте 4-комнатные и более Готовые новостройки 3-комнатные Военная ипотека Покупателю Новостройки Санкт-Петербурга Видеообзор новостроек Семейная ипотека Аналитика рынка Панорамы новостроек 1-комнатные Субсидированная застройщиком Мнение эксперта Студии Ипотечный калькулятор Новости недвижимости Новостройки Ленинградской области ИТ-ипотека Квартиры со скидками до 25% Новостройки премиум-класса Новостройки бизнес-класса Дома и коттеджи Бизнес-центры Бизнес-центры в Санкт-Петербурге Бизнес-центры рядом с метро Строящиеся бизнес-центры Бизнес-центры класса A Ипотека со ставкой 0,1% Траншевая ипотека
Данное предложение на 04.04.2026 неактуально. Пожалуйста, ознакомьтесь с другими похожими предложениями в Квартал «Ново-Антропшино» .
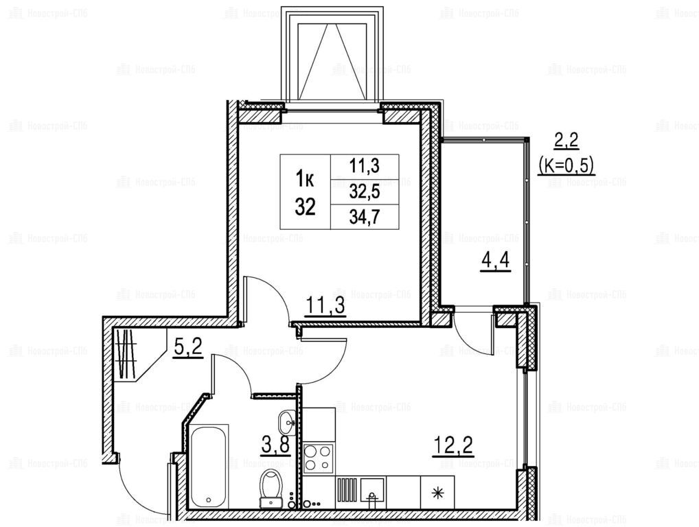
1-комн. квартира, 34.70 м2, 2 этаж
Сдан
5 401 950 
155 676 2
обновлено 16 февраля

Описание 1-комн. квартиры

Застройщик
Срок ГК
Дом сдан
Стадия строительства
Общая площадь
34.70 м2
Этаж
2 / 9
Отделка
предчистовая
Грузовой лифт
есть

Расположение 1-комн. квартиры

Метро
Купчино
34 мин.
Ж/Д-станция
Дом
19 (5 оч.)
Адрес
Ново-Антропшинская ул., корп. 19, секция 1

Способы покупки

Особенности

Продается однокомнатная квартира в новостройке Квартал «Ново-Антропшино» по адресу Ленинградская область, Гатчинский район, Коммунар, Ново-Антропшинская ул., корп. 19. Общая площадь квартиры - 34.7 кв. м. Тип проекта, по которому построен дом — Монолитно-кирпичный, компания-застройщик — СЗЛК, Запстрой. Стоимость квартиры — 5 401 950 руб. Способы оплаты можно уточнить у продавца. Более подробная информация по телефону.

Правовые документы

Инфоцентр новостроек
Инфоцентр новостроек
+7 (812) 424-49-09
Время работы 9:00 — 21:00

Похожие квартиры в Квартале «Ново-Антропшино»

2 этаж
из 9 Дом сдан
Ленинградская область, Гатчинский район
Купчино
34 мин.
19 (5 оч.)
Корпус
предчистовая
Отделка
2.75 м
Потолки
Квартал «Ново-Антропшино»
5 506 050
Банк Санкт-Петербург, ДОМ.РФ, АК БАРС , ВТБ, СберБанк, Абсолют Банк
6.00%
Ставка
20.01%
Первый взнос
от 33 012 /мес.
Все варианты
8 этаж
из 9 Дом сдан
Ленинградская область, Гатчинский район
Купчино
34 мин.
19 (5 оч.)
Корпус
предчистовая
Отделка
2.75 м
Потолки
Квартал «Ново-Антропшино»
5 542 400
Банк Санкт-Петербург, ДОМ.РФ, АК БАРС , ВТБ, СберБанк, Абсолют Банк
6.00%
Ставка
20.01%
Первый взнос
от 33 229 /мес.
Все варианты
4 этаж
из 9 Дом сдан
Ленинградская область, Гатчинский район
Купчино
34 мин.
19 (5 оч.)
Корпус
предчистовая
Отделка
2.75 м
Потолки
Квартал «Ново-Антропшино»
5 542 400
Банк Санкт-Петербург, ДОМ.РФ, АК БАРС , ВТБ, СберБанк, Абсолют Банк
6.00%
Ставка
20.01%
Первый взнос
от 33 229 /мес.
Все варианты
6 этаж
из 9 Дом сдан
Ленинградская область, Гатчинский район
Купчино
34 мин.
19 (5 оч.)
Корпус
предчистовая
Отделка
2.75 м
Потолки
Квартал «Ново-Антропшино»
5 542 400
Банк Санкт-Петербург, ДОМ.РФ, АК БАРС , ВТБ, СберБанк, Абсолют Банк
6.00%
Ставка
20.01%
Первый взнос
от 33 229 /мес.
Все варианты
2 этаж
из 9 Дом сдан
Ленинградская область, Гатчинский район
Купчино
34 мин.
19 (5 оч.)
Корпус
предчистовая
Отделка
2.75 м
Потолки
Квартал «Ново-Антропшино»
5 578 750
Банк Санкт-Петербург, ДОМ.РФ, АК БАРС , ВТБ, СберБанк, Абсолют Банк
6.00%
Ставка
20.01%
Первый взнос
от 33 447 /мес.
Все варианты
6 этаж
из 9 Дом сдан
Ленинградская область, Гатчинский район
Купчино
34 мин.
19 (5 оч.)
Корпус
предчистовая
Отделка
2.75 м
Потолки
Квартал «Ново-Антропшино»
5 615 100
Банк Санкт-Петербург, ДОМ.РФ, АК БАРС , ВТБ, СберБанк, Абсолют Банк
6.00%
Ставка
20.01%
Первый взнос
от 33 665 /мес.
Все варианты
4 этаж
из 9 Дом сдан
Ленинградская область, Гатчинский район
Купчино
34 мин.
19 (5 оч.)
Корпус
предчистовая
Отделка
2.75 м
Потолки
Квартал «Ново-Антропшино»
5 637 640
Банк Санкт-Петербург, ДОМ.РФ, АК БАРС , ВТБ, СберБанк, Абсолют Банк
6.00%
Ставка
20.01%
Первый взнос
от 33 801 /мес.
Все варианты
2 этаж
из 9 Дом сдан
Ленинградская область, Гатчинский район
Купчино
34 мин.
19 (5 оч.)
Корпус
предчистовая
Отделка
2.75 м
Потолки
Квартал «Ново-Антропшино»
5 637 640
Банк Санкт-Петербург, ДОМ.РФ, АК БАРС , ВТБ, СберБанк, Абсолют Банк
6.00%
Ставка
20.01%
Первый взнос
от 33 801 /мес.
Все варианты
студия 22,90 м2 3 882 270
Этаж 9/9 балкон
ЛО, Квартал «Ново-Антропшино»
Купчино
34 мин.
Сдан
Этаж 3/3 балкон
ЛО, Квартал «Ново-Антропшино»
Купчино
34 мин.
Сдан
1-комн. квартира 28,10 м2 4 400 000
Этаж 8/9
ЛО, Квартал «Ново-Антропшино»
Купчино
34 мин.
Сдан
1-комн. квартира 28,30 м2 4 380 000
Этаж 8/9
ЛО, Квартал «Ново-Антропшино»
Купчино
34 мин.
Сдан
1-комн. квартира 31,50 м2 5 021 500
Этаж 8/9
ЛО, Квартал «Ново-Антропшино»
Купчино
34 мин.
Сдан
1-комн. квартира 31,80 м2 5 074 600
Этаж 1/9
ЛО, Квартал «Ново-Антропшино»
Купчино
34 мин.
Сдан
Посмотреть 86 квартир в Квартале «Ново-Антропшино»
Этаж 3/3 лоджия
ЛО, Квартал «Ново-Антропшино»
Купчино
34 мин.
Сдан

Скидки и спецпредложения от застройщиков

Квартал «Ново-Антропшино» на карте

Выгодные предложения на новостройки

Отзывы о Квартале «Ново-Антропшино»

Самый полезный отзыв
Д
18 июня 2018
Оценка:
Достоинства
Транспортная доступность
Экология
Скорость строительства
Недостатки
Подземный паркинг
Живу уже 10 лет в том частном секторе, что рядом с новостройкой. Планирую купить еще квартиру здесь. Про шум электричек- бред. Не мешают совершенно. Это вам не КАД со своими газами. По поводу "молочка от производителя" тоже "в молоко" попали. Коров тут не держат со времен начала стройки- выгуливать теперь негде и сена накосить. Темпы строительства впечатляют. Особенно ларек Шаверма. Был сдан в эксплуатацию первым. Так бы все хорошо, но есть один существенный недостаток. В будущем, когда все это достроят, а планируют тут много, узкое горлышко железнодорожного переезда станет непреодолимым припятствием для жильцов с авто. А для пешеходов красота. За 5 мин до электрички выходишь, и через 40 минут ты на Пушкинской метро.
Ответить
Самый новый отзыв
ГГ
17 марта
Оценка:
Достоинства
Социальная инфраструктура
Расположение
Проект обычно выбирают за более тихую жизнь и бюджет, а не за близость к центру. Тем, кто готов к размеренному ритму, формат нравится, но если нужна насыщенная городская инфраструктура прямо под рукой, энтузиазм быстро снижается.
Ответить

Оставить отзыв

Добавьте отзыв, заполнив личные данные, или сначала войдите на сайт, тогда информация будет автоматически взята из личного профиля.
Оценка*