Переверните экран
Поиск домов и коттеджей

Найдите идеальный дом или коттедж в Санкт-Петербурге и области

Найдите идеальный дом или коттедж в Санкт-Петербурге и области

Перейти к поиску
Новостройки Квартиры Ипотека Медиа О проекте Контакты Реклама на сайте Vk Youtube Telegram Дзен Продавцы и застройщики Коммерческие помещения Квартиры на карте Эксперты и авторы Машиноместа Акции от застройщиков Банки и программы Апартаменты Новостройки на карте 4-комнатные и более Готовые новостройки 3-комнатные Военная ипотека Покупателю Новостройки Санкт-Петербурга Видеообзор новостроек Семейная ипотека Аналитика рынка Панорамы новостроек 1-комнатные Субсидированная застройщиком Мнение эксперта Студии Ипотечный калькулятор Новости недвижимости Новостройки Ленинградской области IT-ипотека Квартиры со скидками до 25% Новостройки премиум-класса Новостройки бизнес-класса Дома и коттеджи Бизнес-центры Бизнес-центры в Санкт-Петербурге Бизнес-центры рядом с метро Строящиеся бизнес-центры Бизнес-центры класса A
7-комн. квартира, 515.00 м2, 2 этаж
Сдан
520 000 000 
1 009 709 2
обновлено 5 декабря

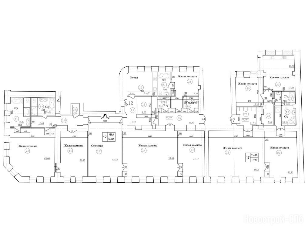
Описание 7-комн. квартиры

Застройщик
Срок ГК
Дом сдан
Стадия строительства
сдан ГК
Тип проекта
Общая площадь
515.00 м2
Этаж
2 / 6
Отделка
white box

Расположение 7-комн. квартиры

Локация
Метро
Дом
1
Адрес
ул. Захарьевская, 41

Особенности

Продается многокомнатная квартира в новостройке Клубный дом «Три Грации» по адресу Санкт-Петербург, Центральный, ул. Захарьевская, 41. Общая площадь квартиры - 515 кв. м. Тип проекта, по которому построен дом — Панельно-кирпичный, компания-застройщик — ГК «Еврострой». Стоимость квартиры — 520 000 000 руб. Способы оплаты можно уточнить у продавца. Более подробная информация по телефону.
Инфоцентр новостроек
Инфоцентр новостроек
+7 (812) 424-49-09
Время работы 9:00 — 21:00
Посмотреть все спецпредложения
Этаж 6/6
СПБ, Клубный дом «Три Грации»
Чернышевская
6 мин.
Сдан
Этаж 5/6
СПБ, Клубный дом «Три Грации»
Чернышевская
6 мин.
Сдан
Этаж 1/6
СПБ, Клубный дом «Три Грации»
Чернышевская
6 мин.
Сдан
Этаж 1/6
СПБ, Клубный дом «Три Грации»
Чернышевская
6 мин.
Сдан
6-комн. квартира 307,22 м2 373 664 000
Этаж 5/6
СПБ, Клубный дом «Три Грации»
Чернышевская
6 мин.
Сдан
Этаж 5/6
СПБ, Клубный дом «Три Грации»
Чернышевская
6 мин.
Сдан
7-комн. квартира 341,63 м2 346 630 000
Этаж 2/6
СПБ, Клубный дом «Три Грации»
Чернышевская
6 мин.
Сдан
Посмотреть 9 квартир в Клубный дом «Три Грации»

Скидки и спецпредложения от застройщиков

Клубный дом «Три Грации» на карте

Выгодные предложения на новостройки

Отзывы о Клубный дом «Три Грации»

Будьте первым, кто оставит отзыв
о Клубный дом «Три Грации»
Добавьте отзыв, заполнив личные данные, или сначала войдите на сайт, тогда информация будет автоматически взята из личного профиля.
Оценка*