Переверните экран
Поиск бизнес центров

Найдите современный офис в деловых районах Санкт-Петербурга

Найдите современный офис в деловых районах Санкт-Петербурга

Перейти к поиску
Новостройки Квартиры Ипотека Медиа О проекте Контакты Реклама на сайте Vk Youtube Telegram Дзен Продавцы и застройщики Коммерческие помещения Квартиры на карте Эксперты и авторы Машиноместа Акции от застройщиков Банки и программы Апартаменты Новостройки на карте 4-комнатные и более Готовые новостройки 3-комнатные Военная ипотека Покупателю Новостройки Санкт-Петербурга Видеообзор новостроек Семейная ипотека Аналитика рынка Панорамы новостроек 1-комнатные Субсидированная застройщиком Мнение эксперта Студии Ипотечный калькулятор Новости недвижимости Новостройки Ленинградской области IT-ипотека Квартиры со скидками до 25% Новостройки премиум-класса Новостройки бизнес-класса Дома и коттеджи Бизнес-центры Бизнес-центры в Санкт-Петербурге Бизнес-центры рядом с метро Строящиеся бизнес-центры Бизнес-центры класса A
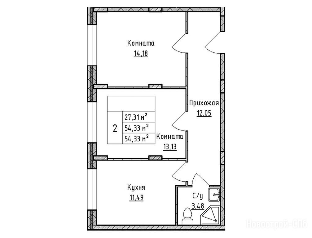
2-комн. квартира, 54.33 м2, 1 этаж
Сдан
6 682 590 
123 000 2
обновлено 3 февраля

Описание 2-комн. квартиры

Новостройка
Застройщик
Группа компаний НСК ООО «Строй Бизнес Групп»
Срок ГК
Дом сдан
Стадия строительства
выдача ключей + заселение
Общая площадь
54.33 м2
Этаж
1 / 4
Отделка
нет

Расположение 2-комн. квартиры

Метро
Ж/Д-станция
Дом
1 (оч.5)
Адрес
Сиреневая улица, 25к1

Способы покупки

Особенности

Продается двухкомнатная квартира в новостройке ЖК «Верево-Сити» по адресу Ленинградская область, Гатчинский район, Малое Верево, Сиреневая улица, 25к1. Общая площадь квартиры - 54.33 кв. м. Тип проекта, по которому построен дом — Монолит, компания-застройщик — Группа компаний НСК, ООО «Строй Бизнес Групп». Стоимость квартиры — 6 682 590 руб. Способы оплаты можно уточнить у продавца. Более подробная информация по телефону.
Инфоцентр новостроек
Инфоцентр новостроек
Время работы 9:00 — 21:00
Выбирайте квартиру в ЖК «Верево-Сити» по ценам от застройщика
Посмотреть все спецпредложения
Этаж 1/4
ЛО, ЖК «Верево-Сити»
Московская
26 мин.
Сдан
1-комн. квартира 35,50 м2 5 019 700
Этаж 1/4
ЛО, ЖК «Верево-Сити»
Московская
26 мин.
Сдан
1-комн. квартира 35,60 м2 5 033 840
Этаж 1/4
ЛО, ЖК «Верево-Сити»
Московская
26 мин.
Сдан
1-комн. квартира 36,10 м2 5 104 540
Этаж 4/4
ЛО, ЖК «Верево-Сити»
Московская
26 мин.
Сдан
1-комн. квартира 36,20 м2 5 118 680
Этаж 4/4
ЛО, ЖК «Верево-Сити»
Московская
26 мин.
Сдан
Посмотреть 28 квартир в ЖК «Верево-Сити»
2-комн. квартира 54,14 м2 6 659 220
Этаж 1/4
ЛО, ЖК «Верево-Сити»
Московская
26 мин.
Сдан
2-комн. квартира 57,15 м2 7 029 450
Этаж 1/4
ЛО, ЖК «Верево-Сити»
Московская
26 мин.
Сдан
2-комн. квартира 58,80 м2 8 208 480
Этаж 1/4
ЛО, ЖК «Верево-Сити»
Московская
26 мин.
Сдан
2-комн. квартира 59,20 м2 8 264 320
Этаж 1/4
ЛО, ЖК «Верево-Сити»
Московская
26 мин.
Сдан
Посмотреть 6 квартир в ЖК «Верево-Сити»
3-комн. квартира 81,11 м2 9 824 043
Этаж 2/4
ЛО, ЖК «Верево-Сити»
Московская
26 мин.
Сдан
3-комн. квартира 84,90 м2 10 283 088
Этаж 3/4
ЛО, ЖК «Верево-Сити»
Московская
26 мин.
Сдан
Посмотреть 5 квартир в ЖК «Верево-Сити»

Скидки и спецпредложения от застройщиков

ЖК «Верево-Сити» на карте

Выгодные предложения на новостройки

Отзывы о ЖК «Верево-Сити»

Самый полезный отзыв
ВС
23 декабря 2020
Оценка:
Старт продаж ЖК «Верево Сити» - квартиры от 1,45 миллиона ООО «Строй Бизнес Групп, специализированный застройщик», входящий в Группу Компаний НСК, возобновил реализацию проекта ЖК «Верево Сити». Ранее проект был приостановлен по решению инвестора, согласно которому дальнейшая его реализация должна была продолжиться после вступления в силу изменений в 214-ФЗ «О долевом строительстве…», в результате чего Застройщики стали обязаны привлекать средства дольщиков через счета Эскроу, а строительство вести на средства, выделенные в рамках Проектного финансирования уполномоченным банком. Средства дольщиков на этом этапе не привлекались. В ноябре 2020 года компания заключила договор о не возобновляемой кредитной линии (проектное финансирование) с ПАО Сбербанк, а так же было начато строительство 1 и 2 очередей жилого комплекса «Верево Сити». Уже в декабре были завершены работы по устройству фундаментов и ведутся работы по возведению стен 1 и 2 этажа. Проектом 1 и 2 очереди предусмотрено возведение 610 квартир площадью более 21000 квадратных метров, а также 21 встроенного коммерческого помещения для размещения на территории жилого комплекса магазинов, пекарен, аптек, салонов красоты и других объектов повседневной необходимости. Планировки квартир от небольших, но комфортных студий до просторных двухкомнатных квартир продуманы до мелочей. Покупателям предлагаются как традиционные планировки, так и квартиры формата «Евро» с кухнями-гостиными. Для молодых семей специально разработаны уютные однокомнатные квартиры, где пространство разделено на гостиную и спальную зоны. Жилой комплекс «Верево Сити» представляет собой обособленную территорию, спроектированную по принципу «безавтомобильных дворов», где располагаются только детские и спортивные площадки, элементы благоустройства и озеленения. При этом обеспеченность парковочными местами соответствует всем современным нормативам. Жилой комплекс удобен сложившейся инфраструктурой вокруг и прекрасной транспортной доступностью до Санкт-Петербурга и Гатчины. И самое главное, это уникальное ценовое предложение – от 1,45 миллиона за квартиру! Строительство 1 и 2 очереди будет окончено во 2 квартале, а покупатели получат ключи до конца 2022 года.
Показать все комментарии
Ответить
Полезный отзыв?
Самый новый отзыв
ИК
27 октября 2025
Оценка:
Все уже сдано, делаю ремонт под себя. Тут достаточно спокойно и тихо, что важно для жизни. Очень жду, когда будут готовы все квартиры и тишина будет абсолютной).
Ответить
Полезный отзыв?
Добавьте отзыв, заполнив личные данные, или сначала войдите на сайт, тогда информация будет автоматически взята из личного профиля.
Оценка*