Переверните экран
Поиск домов и коттеджей

Найдите идеальный дом или коттедж в Санкт-Петербурге и области

Найдите идеальный дом или коттедж в Санкт-Петербурге и области

Перейти к поиску
Новостройки Квартиры Ипотека Медиа О проекте Контакты Реклама на сайте Vk Youtube Telegram Дзен Продавцы и застройщики Коммерческие помещения Квартиры на карте Эксперты и авторы Машиноместа Акции от застройщиков Банки и программы Апартаменты Новостройки на карте 4-комнатные и более Готовые новостройки 3-комнатные Военная ипотека Покупателю Новостройки Санкт-Петербурга Видеообзор новостроек Семейная ипотека Аналитика рынка Панорамы новостроек 1-комнатные Субсидированная застройщиком Мнение эксперта Студии Ипотечный калькулятор Новости недвижимости Новостройки Ленинградской области ИТ-ипотека Квартиры со скидками до 25% Новостройки премиум-класса Новостройки бизнес-класса Дома и коттеджи Коттеджные поселки в Санкт-Петербурге Коттеджные поселки в Ленинградской обл Готовые коттеджные поселки Строящиеся коттеджные поселки Коттеджные поселки у леса Коттеджные поселки у водоема Коттеджные поселки в ипотеку Бизнес-центры Коттеджи Ипотека со ставкой 0,1% Траншевая ипотека
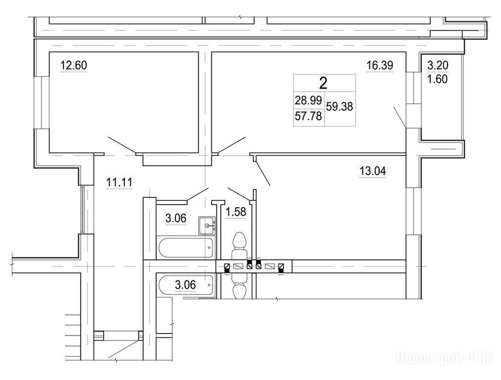
2-комн. квартира, 59.38 м2, 3 этаж
Сдан
8 016 300 
135 000 2
обновлено 4 мая

Описание 2-комн. квартиры

Новостройка
Срок ГК
Дом сдан
Стадия строительства
выдача ключей + заселение
Тип проекта
Общая площадь
59.38 м2
Этаж
3 / 3
Отделка
предчистовая

Расположение 2-комн. квартиры

Метро
Купчино
42 мин.
Ж/Д-станция
Дом
2
Адрес
ул. Строителей, д. 38, корп. 2

Способы покупки

Особенности

Продается двухкомнатная квартира в новостройке ЖК «Уютный» по адресу Ленинградская область, Гатчинский район, Коммунар, ул. Строителей, д. 38, корп. 2. Общая площадь квартиры - 59.38 кв. м. Тип проекта, по которому построен дом — Кирпичный, компания-застройщик — ООО «Промстроймонтаж». Стоимость квартиры — 8 016 300 руб. Способы оплаты можно уточнить у продавца. Более подробная информация по телефону.
Инфоцентр новостроек
Инфоцентр новостроек
Время работы 9:00 — 21:00
Выбирайте квартиру в ЖК «Уютный» по ценам от застройщика

Похожие квартиры в ЖК «Уютный»

2 этаж
из 3 Дом сдан
Ленинградская область, Гатчинский район
Купчино
42 мин.
2
Корпус
предчистовая
Отделка
2.70 м
Потолки
ЖК «Уютный»
8 016 300
ДОМ.РФ
6.00%
Ставка
20.01%
Первый взнос
от 48 062 /мес.
Все варианты
1 этаж
из 3 Дом сдан
Ленинградская область, Гатчинский район
Купчино
42 мин.
2
Корпус
предчистовая
Отделка
2.70 м
Потолки
ЖК «Уютный»
8 016 300
ДОМ.РФ
6.00%
Ставка
20.01%
Первый взнос
от 48 062 /мес.
Все варианты

Еще квартиры в ЖК «Уютный»

2-комн. квартира 55,72 м2 7 522 200
Этаж 2/3
ЛО, ЖК «Уютный»
Купчино
42 мин.
Сдан
2-комн. квартира 57,65 м2 7 782 750
Этаж 2/3
ЛО, ЖК «Уютный»
Купчино
42 мин.
Сдан
2-комн. квартира 59,38 м2 8 016 300
Этаж 2/3
ЛО, ЖК «Уютный»
Купчино
42 мин.
Сдан
Посмотреть 5 квартир в ЖК «Уютный»

Скидки и спецпредложения от застройщиков

ЖК «Уютный» на карте

Выгодные предложения на новостройки

Отзывы о ЖК «Уютный»

Оставить отзыв

Добавьте отзыв, заполнив личные данные, или сначала войдите на сайт, тогда информация будет автоматически взята из личного профиля.
Оценка*