Переверните экран
Поиск домов и коттеджей

Найдите идеальный дом или коттедж в Санкт-Петербурге и области

Найдите идеальный дом или коттедж в Санкт-Петербурге и области

Перейти к поиску
Новостройки Квартиры Ипотека Медиа О проекте Контакты Реклама на сайте Vk Youtube Telegram Дзен Продавцы и застройщики Коммерческие помещения Квартиры на карте Эксперты и авторы Машиноместа Акции от застройщиков Банки и программы Апартаменты Новостройки на карте 4-комнатные и более Готовые новостройки 3-комнатные Военная ипотека Покупателю Новостройки Санкт-Петербурга Видеообзор новостроек Семейная ипотека Аналитика рынка Панорамы новостроек 1-комнатные Субсидированная застройщиком Мнение эксперта Студии Ипотечный калькулятор Новости недвижимости Новостройки Ленинградской области IT-ипотека Квартиры со скидками до 25% Новостройки премиум-класса Новостройки бизнес-класса Дома и коттеджи Бизнес-центры Бизнес-центры в Санкт-Петербурге Бизнес-центры рядом с метро Строящиеся бизнес-центры Бизнес-центры класса A
2-комн. квартира, 66.90 м2, 2 этаж
Срок сдачи 4 квартал 2025 года
14 146 406 
211 456 2
обновлено 5 декабря

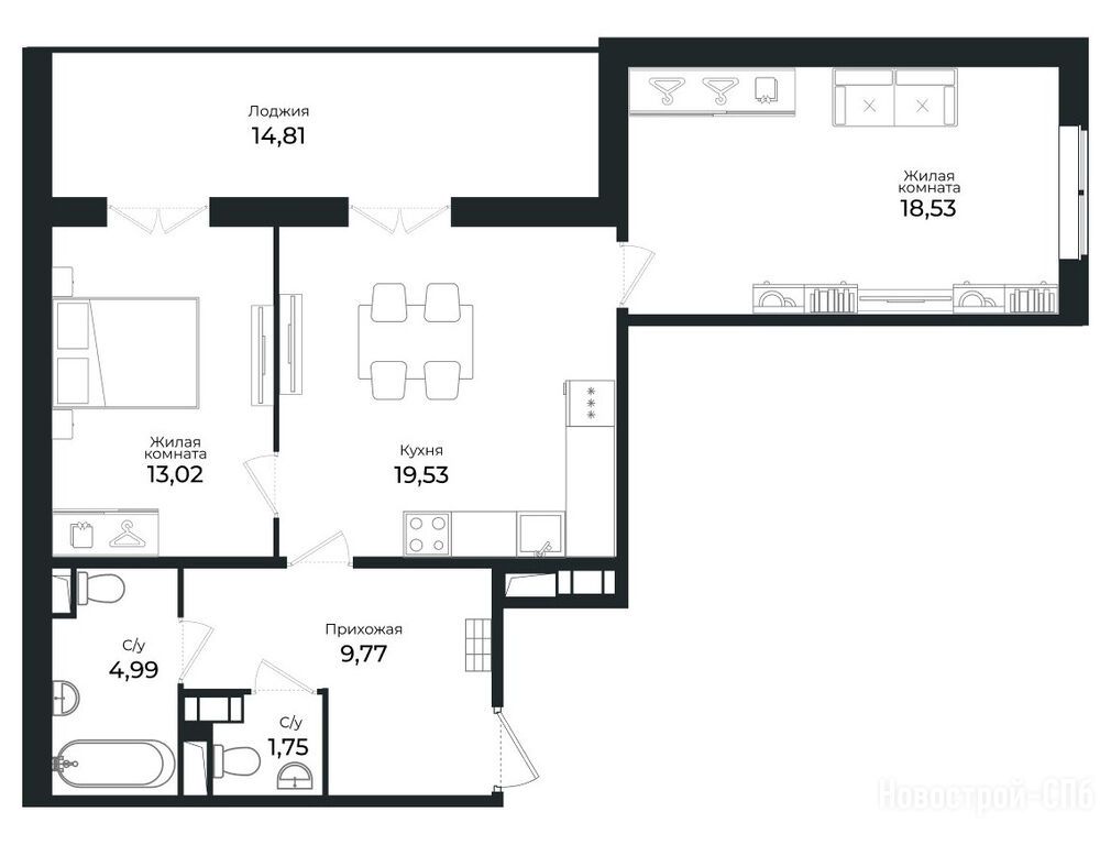
Описание 2-комн. квартиры

Срок ГК
4 квартал 2025 года
Общая площадь
66.90 м2
Этаж
2 / 8
Отделка
чистовая
Грузовой лифт
есть

Расположение 2-комн. квартиры

Метро
Парнас
29 мин.
Дом
3
Адрес
г. Сертолово, мкрн Сертолово-1, терр. вблизи Выборгского ш., уч. 15 корп.3, секция 5

Особенности

Продается двухкомнатная квартира в новостройке ЖК «Сертолово Парк» (SERTOLOVO PARK) по адресу Ленинградская область, Всеволожский район, г. Сертолово, мкрн Сертолово-1, терр. вблизи Выборгского ш., уч. 15 корп.3. Общая площадь квартиры - 66.9 кв. м. Тип проекта, по которому построен дом — Монолитно-каркасный, компания-застройщик — Алгоритм Девелопмент. Стоимость квартиры — 14 146 406 руб. Способы оплаты можно уточнить у продавца. Срок сдачи — 4 квартал 2025. Более подробная информация по телефону.
Инфоцентр новостроек
Инфоцентр новостроек
+7 (812) 424-49-09
Время работы 9:00 — 21:00
Посмотреть все спецпредложения
студия 26,70 м2 5 800 495
Этаж 4/6
ЛО, ЖК «Сертолово Парк» (SERTOLOVO PARK)
Парнас
29 мин.
Сдан
студия 26,80 м2 5 827 338
Этаж 5/6
ЛО, ЖК «Сертолово Парк» (SERTOLOVO PARK)
Парнас
29 мин.
Сдан
студия 26,90 м2 5 886 957
Этаж 6/6
ЛО, ЖК «Сертолово Парк» (SERTOLOVO PARK)
Парнас
29 мин.
Сдан
студия 27,00 м2 5 858 487
Этаж 4/6
ЛО, ЖК «Сертолово Парк» (SERTOLOVO PARK)
Парнас
29 мин.
Сдан
Посмотреть 77 квартир в ЖК «Сертолово Парк»
1-комн. квартира 29,90 м2 6 364 753
Этаж 4/6
ЛО, ЖК «Сертолово Парк» (SERTOLOVO PARK)
Парнас
29 мин.
Сдан
1-комн. квартира 30,00 м2 6 364 950
Этаж 3/6
ЛО, ЖК «Сертолово Парк» (SERTOLOVO PARK)
Парнас
29 мин.
Сдан
1-комн. квартира 30,20 м2 5 876 407
Этаж 1/8
ЛО, ЖК «Сертолово Парк» (SERTOLOVO PARK)
Парнас
29 мин.
Строится
1-комн. квартира 30,60 м2 6 672 085
Этаж 2/6
ЛО, ЖК «Сертолово Парк» (SERTOLOVO PARK)
Парнас
29 мин.
Сдан
Посмотреть 196 квартир в ЖК «Сертолово Парк»
2-комн. квартира 45,40 м2 9 114 640
Этаж 7/8
ЛО, ЖК «Сертолово Парк» (SERTOLOVO PARK)
Парнас
29 мин.
Строится
2-комн. квартира 45,80 м2 8 951 015
Этаж 5/8
ЛО, ЖК «Сертолово Парк» (SERTOLOVO PARK)
Парнас
29 мин.
Сдан
2-комн. квартира 45,90 м2 8 951 189
Этаж 6/8
ЛО, ЖК «Сертолово Парк» (SERTOLOVO PARK)
Парнас
29 мин.
Сдан
2-комн. квартира 46,00 м2 9 002 982
Этаж 3/6
ЛО, ЖК «Сертолово Парк» (SERTOLOVO PARK)
Парнас
29 мин.
Сдан
Посмотреть 122 квартиры в ЖК «Сертолово Парк»
3-комн. квартира 70,90 м2 12 913 939
Этаж 4/6
ЛО, ЖК «Сертолово Парк» (SERTOLOVO PARK)
Парнас
29 мин.
Строится
3-комн. квартира 71,65 м2 12 907 246
Этаж 2/6
ЛО, ЖК «Сертолово Парк» (SERTOLOVO PARK)
Парнас
29 мин.
Строится
3-комн. квартира 73,21 м2 13 346 769
Этаж 4/6
ЛО, ЖК «Сертолово Парк» (SERTOLOVO PARK)
Парнас
29 мин.
Строится
3-комн. квартира 73,23 м2 13 275 793
Этаж 3/6
ЛО, ЖК «Сертолово Парк» (SERTOLOVO PARK)
Парнас
29 мин.
Строится
Посмотреть 61 квартира в ЖК «Сертолово Парк»

Скидки и спецпредложения от застройщиков

ЖК «Сертолово Парк» (SERTOLOVO PARK) на карте

Выгодные предложения на новостройки

Отзывы о ЖК «Сертолово Парк»

Самый полезный отзыв
ИР
28 февраля
Оценка:
Планировки
Способы покупки
Двор, окружение
Расположение
Квартиры здесь просторные и уже с ремонтом, что для меня было важным критерием. Это позволяет сразу переехать и обустроить своё новое пространство по своему вкусу. Рядом находится лес, что значительно усиливает привлекательность этого места. Время, проведенное на природе, всегда приносит пользу, и для меня это очень важно.
Ответить
Полезный отзыв?
Самый новый отзыв
1
31 августа
Оценка:
Очень впечатлили планировки – всё логично, светло, никакой лишней площади. А инфраструктура комплекса – детские сады, магазины, паркинг – делает жизнь здесь еще приятнее
Ответить
Полезный отзыв?
Добавьте отзыв, заполнив личные данные, или сначала войдите на сайт, тогда информация будет автоматически взята из личного профиля.
Оценка*