Переверните экран
Поиск бизнес центров

Найдите современный офис в деловых районах Санкт-Петербурга

Найдите современный офис в деловых районах Санкт-Петербурга

Перейти к поиску
Новостройки Квартиры Ипотека Медиа О проекте Контакты Реклама на сайте Vk Youtube Telegram Дзен Продавцы и застройщики Коммерческие помещения Квартиры на карте Эксперты и авторы Машиноместа Акции от застройщиков Банки и программы Апартаменты Новостройки на карте 4-комнатные и более Готовые новостройки 3-комнатные Военная ипотека Покупателю Новостройки Санкт-Петербурга Видеообзор новостроек Семейная ипотека Аналитика рынка Панорамы новостроек 1-комнатные Субсидированная застройщиком Мнение эксперта Студии Ипотечный калькулятор Новости недвижимости Новостройки Ленинградской области IT-ипотека Квартиры со скидками до 25% Новостройки премиум-класса Новостройки бизнес-класса Дома и коттеджи Бизнес-центры Бизнес-центры в Санкт-Петербурге Бизнес-центры рядом с метро Строящиеся бизнес-центры Бизнес-центры класса A
2-комн. квартира, 50.56 м2, 5 этаж
Срок сдачи 3 квартал 2026 года
9 651 904 
190 900 2
обновлено 5 декабря

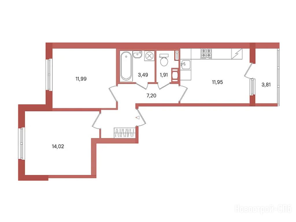
Описание 2-комн. квартиры

Застройщик
Срок ГК
3 квартал 2026 года
Стадия строительства
отделка фасада и внутренние работы
Общая площадь
50.56 м2
Жилая площадь
26.01 м2
Площадь кухни
11.95 м2
Этаж
5 / 5
Отделка
чистовая
Грузовой лифт
есть

Расположение 2-комн. квартиры

Дом
1
Адрес
ул. Тихвинская, секция 1-3

Способы покупки

Особенности

Продается двухкомнатная квартира в новостройке ЖК «Патио. Уютный квартал» по адресу Ленинградская область, Всеволожский район, Сертолово, ул. Тихвинская. Общая площадь квартиры - 50.56 кв. м. Тип проекта, по которому построен дом — Монолитно-кирпичный, компания-застройщик — КВС. Стоимость квартиры — 9 651 904 руб. Способы оплаты можно уточнить у продавца. Срок сдачи — 3 квартал 2026. Более подробная информация по телефону.
Инфоцентр новостроек
Инфоцентр новостроек
+7 (812) 424-49-09
Время работы 9:00 — 21:00
Посмотреть все спецпредложения
студия 23,09 м2 4 818 883
Этаж 2/12
ЛО, ЖК «Патио. Уютный квартал»
Проспект Просвещения
30 мин.
Строится
студия 23,49 м2 4 874 175
Этаж 4/12
ЛО, ЖК «Патио. Уютный квартал»
Проспект Просвещения
30 мин.
Строится
студия 23,74 м2 4 907 058
Этаж 4/12
ЛО, ЖК «Патио. Уютный квартал»
Проспект Просвещения
30 мин.
Строится
студия 25,30 м2 5 130 840
Этаж 3/12
ЛО, ЖК «Патио. Уютный квартал»
Проспект Просвещения
30 мин.
Строится
Посмотреть 59 квартир в ЖК «Патио. Уютный квартал»
1-комн. квартира 32,97 м2 6 425 853
Этаж 2/5
ЛО, ЖК «Патио. Уютный квартал»
Проспект Просвещения
30 мин.
Строится
1-комн. квартира 33,19 м2 6 468 731
Этаж 2/5
ЛО, ЖК «Патио. Уютный квартал»
Проспект Просвещения
30 мин.
Строится
1-комн. квартира 33,43 м2 6 495 449
Этаж 2/12
ЛО, ЖК «Патио. Уютный квартал»
Проспект Просвещения
30 мин.
Строится
1-комн. квартира 33,51 м2 6 490 887
Этаж 2/12
ЛО, ЖК «Патио. Уютный квартал»
Проспект Просвещения
30 мин.
Строится
Посмотреть 89 квартир в ЖК «Патио. Уютный квартал»
2-комн. квартира 49,62 м2 9 462 534
Этаж 4/12
ЛО, ЖК «Патио. Уютный квартал»
Проспект Просвещения
30 мин.
Строится
2-комн. квартира 49,63 м2 9 126 957
Этаж 2/12
ЛО, ЖК «Патио. Уютный квартал»
Проспект Просвещения
30 мин.
Строится
2-комн. квартира 49,94 м2 9 518 564
Этаж 4/12
ЛО, ЖК «Патио. Уютный квартал»
Проспект Просвещения
30 мин.
Строится
2-комн. квартира 50,55 м2 9 255 705
Этаж 2/12
ЛО, ЖК «Патио. Уютный квартал»
Проспект Просвещения
30 мин.
Строится
Посмотреть 50 квартир в ЖК «Патио. Уютный квартал»
3-комн. квартира 72,83 м2 13 480 833
Этаж 2/12
ЛО, ЖК «Патио. Уютный квартал»
Проспект Просвещения
30 мин.
Строится
Посмотреть 5 квартир в ЖК «Патио. Уютный квартал»

Скидки и спецпредложения от застройщиков

ЖК «Патио. Уютный квартал» на карте

Выгодные предложения на новостройки

Отзывы о ЖК «Патио. Уютный квартал»

Самый полезный отзыв
А
25 декабря 2024
Оценка:
Экология
Планировки
Способы покупки
Внешний вид фасада
Двор, окружение
Транспортная доступность
Готовность
Скорость строительства
Выбрали «Патио», потому что давно мечтали о жилье в зелёном районе, но недалеко от города. Здесь всё сошлось: и природа, и современный дизайн. Сроки, конечно, дальние, но зато за это время можно всё продумать - от мебели до планировки.
Ответить
Полезный отзыв?
Самый новый отзыв
С
04 декабря
Оценка:
Планировки
Инвестировал в Патио, взял студию под сдачу. Считаю, что район Сертолово2 развивается, и проект от КВС выглядит адекватно. Дома кирпично-монолитные, по официальной инфо потолки 2.77 м, для студии важно, чтобы не давило. Вид из окна на лес, это продаёт уже. Конечно сдача 3 кв. 2026 года, придётся ждать и держать бюджет. Но если всё будет вовремя и без сюрпризов выйдет удачно. Следим за ходом строительства, фотографии выкладывают регулярно.
Ответить
Полезный отзыв?
Добавьте отзыв, заполнив личные данные, или сначала войдите на сайт, тогда информация будет автоматически взята из личного профиля.
Оценка*