Переверните экран
Новостройки Квартиры Ипотека Медиа О проекте Контакты Реклама на сайте Vk Youtube Telegram Дзен Продавцы и застройщики Коммерческие помещения Квартиры на карте Эксперты и авторы Машиноместа Акции от застройщиков Банки и программы Апартаменты Новостройки на карте 4-комнатные и более Готовые новостройки 3-комнатные Военная ипотека Покупателю Новостройки Санкт-Петербурга Видеообзор новостроек Семейная ипотека Аналитика рынка Панорамы новостроек 1-комнатные Субсидированная застройщиком Мнение эксперта Студии Ипотечный калькулятор Новости недвижимости Новостройки Ленинградской области IT-ипотека Квартиры со скидками до 25% Новостройки премиум-класса Новостройки бизнес-класса Дома и коттеджи Бизнес-центры Бизнес-центры в Санкт-Петербурге Бизнес-центры рядом с метро Строящиеся бизнес-центры Бизнес-центры класса A
Данное предложение на 16.12.2025 неактуально. Пожалуйста, ознакомьтесь с другими похожими предложениями в ЖК «Патио. Уютный квартал» .
2-комн. квартира, 50.89 м2, 1 этаж
Срок сдачи 3 квартал 2026 года
8 437 562 
165 800 2
обновлено 29 сентября

Описание 2-комн. квартиры

Застройщик
Срок ГК
3 квартал 2026 года
Стадия строительства
отделка фасада и внутренние работы
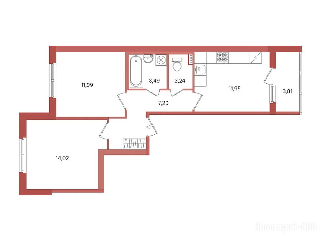
Общая площадь
50.89 м2
Жилая площадь
26.01 м2
Площадь кухни
11.95 м2
Этаж
1 / 5
Отделка
чистовая
Грузовой лифт
есть

Расположение 2-комн. квартиры

Дом
1
Адрес
ул. Тихвинская, секция 1-3

Способы покупки

Особенности

Продается двухкомнатная квартира в новостройке ЖК «Патио. Уютный квартал» по адресу Ленинградская область, Всеволожский район, Сертолово, ул. Тихвинская. Общая площадь квартиры - 50.89 кв. м. Тип проекта, по которому построен дом — Монолитно-кирпичный, компания-застройщик — КВС. Стоимость квартиры — 8 437 562 руб. Способы оплаты можно уточнить у продавца. Срок сдачи — 3 квартал 2026. Более подробная информация по телефону.
Инфоцентр новостроек
Инфоцентр новостроек
+7 (812) 424-49-09
Время работы 9:00 — 21:00
Посмотреть все спецпредложения
студия 23,09 м2 4 865 063
Этаж 2/12
ЛО, ЖК «Патио. Уютный квартал»
Проспект Просвещения
30 мин.
Строится
студия 23,49 м2 4 921 155
Этаж 4/12
ЛО, ЖК «Патио. Уютный квартал»
Проспект Просвещения
30 мин.
Строится
студия 23,74 м2 4 954 538
Этаж 4/12
ЛО, ЖК «Патио. Уютный квартал»
Проспект Просвещения
30 мин.
Строится
студия 25,30 м2 5 181 440
Этаж 3/12
ЛО, ЖК «Патио. Уютный квартал»
Проспект Просвещения
30 мин.
Строится
Посмотреть 56 квартир в ЖК «Патио. Уютный квартал»
1-комн. квартира 33,19 м2 6 535 111
Этаж 2/5
ЛО, ЖК «Патио. Уютный квартал»
Проспект Просвещения
30 мин.
Строится
1-комн. квартира 33,43 м2 6 562 309
Этаж 2/12
ЛО, ЖК «Патио. Уютный квартал»
Проспект Просвещения
30 мин.
Строится
1-комн. квартира 33,51 м2 6 557 907
Этаж 2/12
ЛО, ЖК «Патио. Уютный квартал»
Проспект Просвещения
30 мин.
Строится
1-комн. квартира 33,87 м2 6 631 746
Этаж 3/12
ЛО, ЖК «Патио. Уютный квартал»
Проспект Просвещения
30 мин.
Строится
Посмотреть 85 квартир в ЖК «Патио. Уютный квартал»
2-комн. квартира 49,62 м2 9 561 774
Этаж 4/12
ЛО, ЖК «Патио. Уютный квартал»
Проспект Просвещения
30 мин.
Строится
2-комн. квартира 49,63 м2 9 226 217
Этаж 2/12
ЛО, ЖК «Патио. Уютный квартал»
Проспект Просвещения
30 мин.
Строится
2-комн. квартира 49,94 м2 9 618 444
Этаж 4/12
ЛО, ЖК «Патио. Уютный квартал»
Проспект Просвещения
30 мин.
Строится
2-комн. квартира 50,55 м2 9 356 805
Этаж 2/12
ЛО, ЖК «Патио. Уютный квартал»
Проспект Просвещения
30 мин.
Строится
Посмотреть 47 квартир в ЖК «Патио. Уютный квартал»
3-комн. квартира 72,83 м2 13 480 833
Этаж 2/12
ЛО, ЖК «Патио. Уютный квартал»
Проспект Просвещения
30 мин.
Строится
Посмотреть 5 квартир в ЖК «Патио. Уютный квартал»

Скидки и спецпредложения от застройщиков

ЖК «Патио. Уютный квартал» на карте

Выгодные предложения на новостройки

Отзывы о ЖК «Патио. Уютный квартал»

Самый полезный отзыв
А
25 декабря 2024
Оценка:
Экология
Планировки
Способы покупки
Внешний вид фасада
Двор, окружение
Транспортная доступность
Готовность
Скорость строительства
Выбрали «Патио», потому что давно мечтали о жилье в зелёном районе, но недалеко от города. Здесь всё сошлось: и природа, и современный дизайн. Сроки, конечно, дальние, но зато за это время можно всё продумать - от мебели до планировки.
Ответить
Полезный отзыв?
Самый новый отзыв
Е
11 декабря
Оценка:
Покупать тут, если хочется жить рядом с природой и не хотите по цене загунться. Есть квартиры с видом на сосновый лес
Ответить
Полезный отзыв?
Добавьте отзыв, заполнив личные данные, или сначала войдите на сайт, тогда информация будет автоматически взята из личного профиля.
Оценка*