Переверните экран
Новостройки Квартиры Ипотека Медиа О проекте Контакты Реклама на сайте Vk Youtube Telegram Дзен Продавцы и застройщики Коммерческие помещения Квартиры на карте Эксперты и авторы Машиноместа Акции от застройщиков Банки и программы Апартаменты Новостройки на карте 4-комнатные и более Готовые новостройки 3-комнатные Военная ипотека Покупателю Новостройки Санкт-Петербурга Видеообзор новостроек Семейная ипотека Аналитика рынка Панорамы новостроек 1-комнатные Субсидированная застройщиком Мнение эксперта Студии Ипотечный калькулятор Новости недвижимости Новостройки Ленинградской области IT-ипотека Квартиры со скидками до 25% Новостройки премиум-класса Новостройки бизнес-класса Дома и коттеджи Бизнес-центры Бизнес-центры в Санкт-Петербурге Бизнес-центры рядом с метро Строящиеся бизнес-центры Бизнес-центры класса A
Данное предложение на 17.12.2025 неактуально. Пожалуйста, ознакомьтесь с другими похожими предложениями в ЖК «Парусная 1» .
2-комн. квартира, 60.60 м2, 5 этаж
Срок сдачи 4 квартал 2026 года
21 359 000 
352 459 2
обновлено 28 октября

Описание 2-комн. квартиры

Новостройка
Срок ГК
4 квартал 2026 года
Стадия строительства
монтаж верхних этажей
Общая площадь
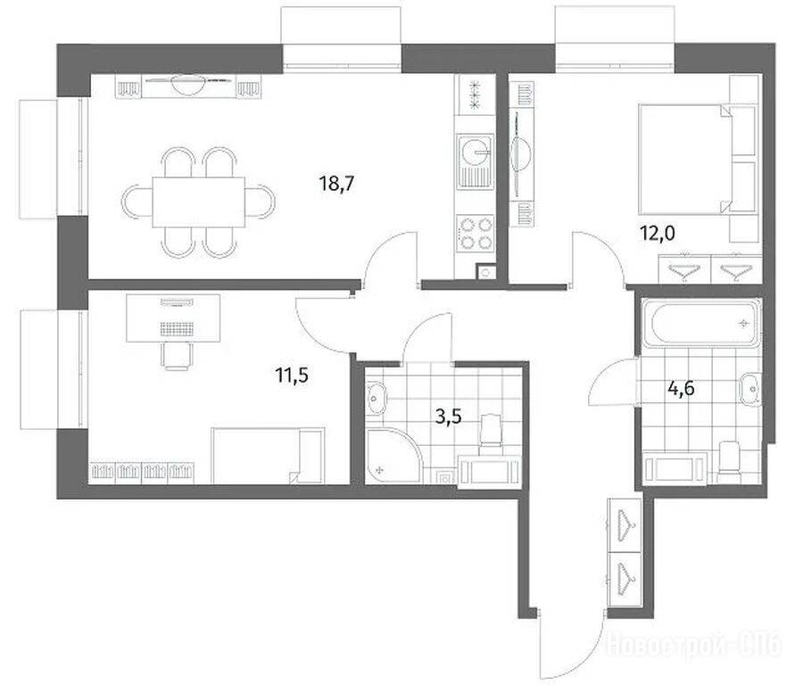
60.60 м2
Этаж
5 / 13
Отделка
под чистовую

Расположение 2-комн. квартиры

Метро
Дом
4.2
Адрес
ул. Шкиперский проток, 19А, корп.4.2

Особенности

Продается двухкомнатная квартира в новостройке ЖК «Парусная 1» по адресу Санкт-Петербург, Василеостровский, ул. Шкиперский проток, 19А, корп.4.2. Общая площадь квартиры - 60.6 кв. м. Тип проекта, по которому построен дом — Монолитно-каркасный, компания-застройщик — АО «СЗ «Строительный трест», ГК «ТРЕСТ». Стоимость квартиры — 21 359 000 руб. Способы оплаты можно уточнить у продавца. Срок сдачи — 4 квартал 2026. Более подробная информация по телефону.
ГК «ТРЕСТ»
ГК «ТРЕСТ»
Сданных 21
|
Строящихся 4
Выбирайте квартиру в ЖК «Парусная 1» по ценам от застройщика
Посмотреть все спецпредложения
Этаж 8/13
СПБ, ЖК «Парусная 1»
Приморская
19 мин.
Строится
Этаж 6/13
СПБ, ЖК «Парусная 1»
Приморская
19 мин.
Строится
студия 27,40 м2 12 365 000
Этаж 1/13
СПБ, ЖК «Парусная 1»
Приморская
19 мин.
Строится
1-комн. квартира 31,40 м2 14 170 000
Этаж 1/13
СПБ, ЖК «Парусная 1»
Приморская
19 мин.
Строится
Этаж 9/13
СПБ, ЖК «Парусная 1»
Приморская
19 мин.
Строится
1-комн. квартира 37,30 м2 17 186 000
Этаж 7/13
СПБ, ЖК «Парусная 1»
Приморская
19 мин.
Строится
1-комн. квартира 37,90 м2 17 103 000
Этаж 2/13
СПБ, ЖК «Парусная 1»
Приморская
19 мин.
Строится
Посмотреть 14 квартир в ЖК «Парусная 1»
Этаж 12/13
СПБ, ЖК «Парусная 1»
Приморская
19 мин.
Строится
2-комн. квартира 43,00 м2 19 833 000
Этаж 7/13
СПБ, ЖК «Парусная 1»
Приморская
19 мин.
Строится
2-комн. квартира 43,50 м2 19 651 000
Этаж 2/13
СПБ, ЖК «Парусная 1»
Приморская
19 мин.
Строится
2-комн. квартира 44,10 м2 19 901 000
Этаж 1/13
СПБ, ЖК «Парусная 1»
Приморская
19 мин.
Строится
Посмотреть 140 квартир в ЖК «Парусная 1»
3-комн. квартира 57,40 м2 20 858 000
Этаж 2/13
СПБ, ЖК «Парусная 1»
Приморская
19 мин.
Строится
3-комн. квартира 57,50 м2 21 004 000
Этаж 2/13
СПБ, ЖК «Парусная 1»
Приморская
19 мин.
Строится
3-комн. квартира 59,40 м2 22 036 000
Этаж 3/13
СПБ, ЖК «Парусная 1»
Приморская
19 мин.
Строится
3-комн. квартира 59,60 м2 21 771 000
Этаж 3/13
СПБ, ЖК «Парусная 1»
Приморская
19 мин.
Строится
Посмотреть 85 квартир в ЖК «Парусная 1»
4-комн. квартира 107,40 м2 46 526 000
Этаж 13/13
СПБ, ЖК «Парусная 1»
Приморская
19 мин.
Строится

Скидки и спецпредложения от застройщиков

ЖК «Парусная 1» на карте

Выгодные предложения на новостройки

Отзывы о ЖК «Парусная 1»

Самый полезный отзыв
ДМ
25 марта
Оценка:
Социальная инфраструктура
Планировки
Внешний вид фасада
Двор, окружение
Расположение
Остался под приятным впечатлением. Наверное, это лучший вариант из всех, что мы рассматривали на Васильевском. Комплекс выглядит современно и аккуратно. Очень понравилось, что здесь будет паркинг. Удобно, особенно в городских условиях. Еще один важный момент - школа. Для семьи с детьми это огромный плюс. Наличие образовательных учреждений рядом всегда радует, когда думаешь о будущем.
Ответить
Полезный отзыв?
Самый новый отзыв
МС
31 августа
Оценка:
Очень рада, что нашла ЖК с такими красивыми и функциональными планировками. Думаю, моя будущая квартира будет идеальным сочетанием комфорта и стиля, особенно с учетом развитой инфраструктуры
Ответить
Полезный отзыв?
Добавьте отзыв, заполнив личные данные, или сначала войдите на сайт, тогда информация будет автоматически взята из личного профиля.
Оценка*