Переверните экран
Новостройки Квартиры Ипотека Медиа О проекте Контакты Реклама на сайте Vk Youtube Telegram Дзен Продавцы и застройщики Коммерческие помещения Квартиры на карте Эксперты и авторы Машиноместа Акции от застройщиков Банки и программы Апартаменты Новостройки на карте 4-комнатные и более Готовые новостройки 3-комнатные Военная ипотека Покупателю Новостройки Санкт-Петербурга Видеообзор новостроек Семейная ипотека Аналитика рынка Панорамы новостроек 1-комнатные Субсидированная застройщиком Мнение эксперта Студии Ипотечный калькулятор Новости недвижимости Новостройки Ленинградской области IT-ипотека Квартиры со скидками до 25% Новостройки премиум-класса Новостройки бизнес-класса Дома и коттеджи Бизнес-центры Бизнес-центры в Санкт-Петербурге Бизнес-центры рядом с метро Строящиеся бизнес-центры Бизнес-центры класса A
Данное предложение на 16.12.2025 неактуально. Пожалуйста, ознакомьтесь с другими похожими предложениями в ЖК «Миръ» .
2-комн. квартира, 80.10 м2, 9 этаж
Сдан
57 980 257 
723 848 2
обновлено 21 октября

Описание 2-комн. квартиры

Новостройка
Застройщик
RBI
Срок ГК
Дом сдан
Стадия строительства
выдача ключей + заселение
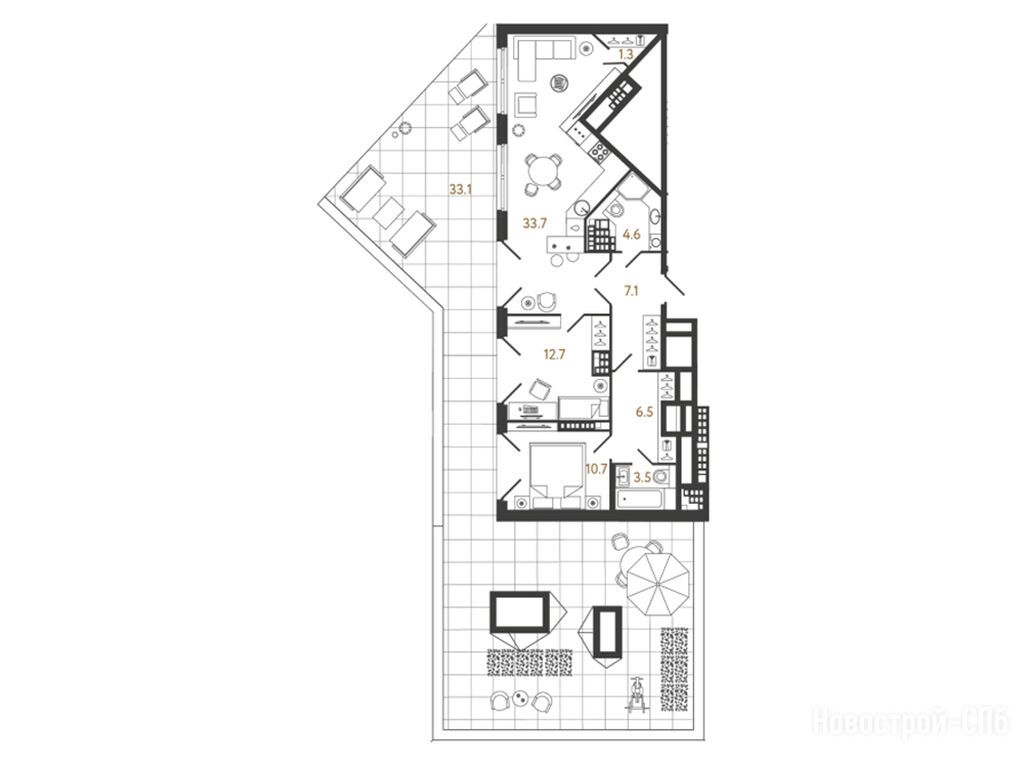
Общая площадь
80.10 м2
Жилая площадь
23.40 м2
Площадь кухни
33.70 м2
Этаж
9 / 9
Отделка
нет

Расположение 2-комн. квартиры

Локация
Дом
1
Адрес
Миргородская ул., д.1, секция 1

Способы покупки

Особенности

Продается двухкомнатная квартира в новостройке ЖК «Миръ» по адресу Санкт-Петербург, Центральный, Миргородская ул., д.1. Общая площадь квартиры - 80.1 кв. м. Тип проекта, по которому построен дом — Монолитно-каркасный, компания-застройщик — RBI. Стоимость квартиры — 57 980 257 руб. Способы оплаты можно уточнить у продавца. Срок сдачи — 4 квартал 2025. Более подробная информация по телефону.
Инфоцентр новостроек
Инфоцентр новостроек
+7 (812) 424-49-09
Время работы 9:00 — 21:00
Посмотреть все спецпредложения
студия 34,20 м2 20 499 620
Этаж 5/9
СПБ, ЖК «Миръ»
Площадь Александра Невского
10 мин.
Сдан
Этаж 4/9
СПБ, ЖК «Миръ»
Площадь Александра Невского
10 мин.
Сдан
Этаж 5/9
СПБ, ЖК «Миръ»
Площадь Александра Невского
10 мин.
Сдан
Этаж 4/6
СПБ, ЖК «Миръ»
Площадь Александра Невского
10 мин.
Сдан
1-комн. квартира 51,70 м2 28 221 351
Этаж 3/9
СПБ, ЖК «Миръ»
Площадь Александра Невского
10 мин.
Сдан
Посмотреть 5 квартир в ЖК «Миръ»
Этаж 6/9
СПБ, ЖК «Миръ»
Площадь Александра Невского
10 мин.
Сдан
Этаж 7/9
СПБ, ЖК «Миръ»
Площадь Александра Невского
10 мин.
Сдан
Этаж 4/9
СПБ, ЖК «Миръ»
Площадь Александра Невского
10 мин.
Сдан
2-комн. квартира 74,00 м2 38 983 372
Этаж 6/9
СПБ, ЖК «Миръ»
Площадь Александра Невского
10 мин.
Сдан
Посмотреть 15 квартир в ЖК «Миръ»
Этаж 8/9
СПБ, ЖК «Миръ»
Площадь Александра Невского
10 мин.
Сдан
Этаж 8/9
СПБ, ЖК «Миръ»
Площадь Александра Невского
10 мин.
Сдан
Этаж 7/9
СПБ, ЖК «Миръ»
Площадь Александра Невского
10 мин.
Сдан
Этаж 2/9
СПБ, ЖК «Миръ»
Площадь Александра Невского
10 мин.
Сдан
Посмотреть 9 квартир в ЖК «Миръ»

Скидки и спецпредложения от застройщиков

ЖК «Миръ» на карте

Выгодные предложения на новостройки

Отзывы о ЖК «Миръ»

Самый полезный отзыв
ЛИ
19 апреля 2023
Оценка:
Внешний вид фасада
Расположение
Хочу увидеть его не на планах, а вживую. К планам не к чему придраться, все красиво, хочется глянуть на реальность. У РБИ не было провалов, поэтому я почти на 100% уверен, что и этот пойдем в копилку успешных проектов. В общем, глянем, пока 5 из 5 за идею.
Ответить
Полезный отзыв?
Самый новый отзыв
А
08 декабря
Оценка:
Нас привлекла инфраструктура ЖК. У меня бизнес и маленький ребенок, времени или нет, или нет вообще. Поэтому перспектива того, что детский сад и фитнес будут прямо в доме очень привлекли. Ощущение, будто специально под меня планировали. До офиса буквально 15 минут пешком, на авто гораздо быстрее, детский сад и фитнес под боком, несколько минут пешком и вокзал-сапсан-Москва, все просто идеально.
Ответить
Полезный отзыв?
Добавьте отзыв, заполнив личные данные, или сначала войдите на сайт, тогда информация будет автоматически взята из личного профиля.
Оценка*