Переверните экран
Поиск домов и коттеджей

Найдите идеальный дом или коттедж в Санкт-Петербурге и области

Найдите идеальный дом или коттедж в Санкт-Петербурге и области

Перейти к поиску
Новостройки Квартиры Ипотека Медиа О проекте Контакты Реклама на сайте Vk Youtube Telegram Дзен Продавцы и застройщики Коммерческие помещения Квартиры на карте Эксперты и авторы Машиноместа Акции от застройщиков Банки и программы Апартаменты Новостройки на карте 4-комнатные и более Готовые новостройки 3-комнатные Военная ипотека Покупателю Новостройки Санкт-Петербурга Видеообзор новостроек Семейная ипотека Аналитика рынка Панорамы новостроек 1-комнатные Субсидированная застройщиком Мнение эксперта Студии Ипотечный калькулятор Новости недвижимости Новостройки Ленинградской области IT-ипотека Квартиры со скидками до 25% Новостройки премиум-класса Новостройки бизнес-класса Дома и коттеджи Бизнес-центры Бизнес-центры в Санкт-Петербурге Бизнес-центры рядом с метро Строящиеся бизнес-центры Бизнес-центры класса A
2-комн. квартира, 68.83 м2, 4 этаж
Срок сдачи 4 квартал 2025 года
17 057 450 
247 820 2
обновлено 5 декабря

Описание 2-комн. квартиры

Новостройка
Застройщик
ГК ЕДИНО СЗ «Аврора»
Срок ГК
4 квартал 2025 года
Тип проекта
блочный
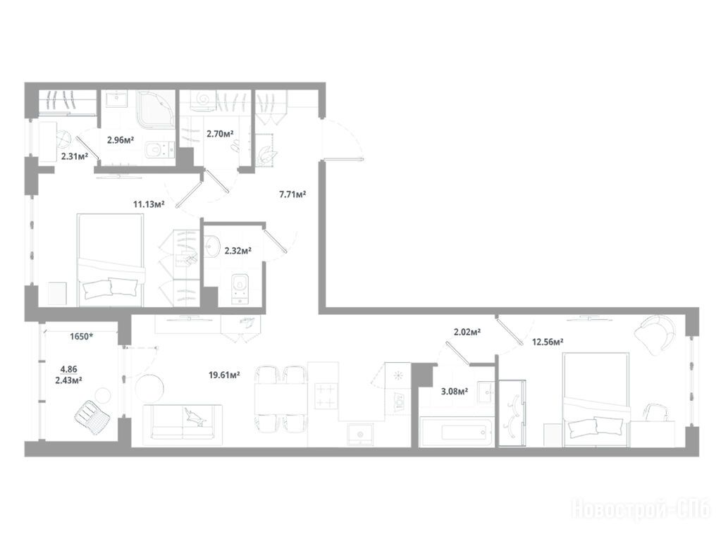
Общая площадь
68.83 м2
Жилая площадь
23.69 м2
Площадь кухни
19.61 м2
Этаж
4 / 12
Отделка
чистовая
Грузовой лифт
есть

Расположение 2-комн. квартиры

Ж/Д-станция
Дом
3
Адрес
Рябиновая ул., ЖК «ЛесART», корпус 3, секция 4

Способы покупки

Особенности

Продается двухкомнатная квартира в новостройке ЖК «ЛесART» (ЛесАрт) по адресу Ленинградская область, Ломоносовский район, Аннинское, Новоселье пос., Рябиновая ул., ЖК «ЛесART», корпус 3. Общая площадь квартиры - 68.83 кв. м. Тип проекта, по которому построен дом — Блочный, компания-застройщик — ГК ЕДИНО, СЗ «Аврора». Стоимость квартиры — 17 057 450 руб. Способы оплаты можно уточнить у продавца. Срок сдачи — 4 квартал 2025. Более подробная информация по телефону.
Инфоцентр новостроек
Инфоцентр новостроек
+7 (812) 424-49-09
Время работы 9:00 — 21:00

Похожие квартиры в ЖК «ЛесART»

5 этаж
из 12 4 квартал 2025
Ленинградская область, Аннинское
Проспект Ветеранов
20 мин.
3
Корпус
чистовая
Отделка
2.74 м
Потолки
ЖК «ЛесART» (ЛесАрт)
17 253 980
Промсвязьбанк
6.00%
Ставка
20.01%
Первый взнос
от 103 446 /мес.
Все варианты
5 этаж
из 12 4 квартал 2025
Ленинградская область, Аннинское
Проспект Ветеранов
20 мин.
3
Корпус
чистовая
Отделка
2.74 м
Потолки
ЖК «ЛесART» (ЛесАрт)
17 253 980
Промсвязьбанк
6.00%
Ставка
20.01%
Первый взнос
от 103 446 /мес.
Все варианты
2 этаж
из 12 4 квартал 2025
Ленинградская область, Аннинское
Проспект Ветеранов
20 мин.
3
Корпус
чистовая
Отделка
2.74 м
Потолки
ЖК «ЛесART» (ЛесАрт)
17 253 980
Промсвязьбанк
6.00%
Ставка
20.01%
Первый взнос
от 103 446 /мес.
Все варианты
4 этаж
из 12 4 квартал 2025
Ленинградская область, Аннинское
Проспект Ветеранов
20 мин.
3
Корпус
чистовая
Отделка
2.74 м
Потолки
ЖК «ЛесART» (ЛесАрт)
17 253 980
Промсвязьбанк
6.00%
Ставка
20.01%
Первый взнос
от 103 446 /мес.
Все варианты
8 этаж
из 12 4 квартал 2025
Ленинградская область, Аннинское
Проспект Ветеранов
20 мин.
3
Корпус
чистовая
Отделка
2.74 м
Потолки
ЖК «ЛесART» (ЛесАрт)
17 409 941
Промсвязьбанк
6.00%
Ставка
20.01%
Первый взнос
от 104 381 /мес.
Все варианты
8 этаж
из 12 4 квартал 2025
Ленинградская область, Аннинское
Проспект Ветеранов
20 мин.
3
Корпус
чистовая
Отделка
2.74 м
Потолки
ЖК «ЛесART» (ЛесАрт)
17 745 264
Промсвязьбанк
6.00%
Ставка
20.01%
Первый взнос
от 106 392 /мес.
Все варианты
Посмотреть все спецпредложения
студия 25,38 м2 6 570 600
Этаж 8/12
ЛО, ЖК «ЛесART» (ЛесАрт)
Проспект Ветеранов
20 мин.
Сдан
студия 25,79 м2 7 058 235
Этаж 11/12
ЛО, ЖК «ЛесART» (ЛесАрт)
Проспект Ветеранов
20 мин.
Сдан
студия 31,05 м2 8 014 844
Этаж 5/12
ЛО, ЖК «ЛесART» (ЛесАрт)
Проспект Ветеранов
20 мин.
Строится
студия 31,07 м2 8 020 008
Этаж 3/12
ЛО, ЖК «ЛесART» (ЛесАрт)
Проспект Ветеранов
20 мин.
Строится
Посмотреть 47 квартир в ЖК «ЛесART»
1-комн. квартира 24,49 м2 6 901 628
Этаж 10/12
ЛО, ЖК «ЛесART» (ЛесАрт)
Проспект Ветеранов
20 мин.
Строится
1-комн. квартира 27,94 м2 7 076 216
Этаж 1/12
ЛО, ЖК «ЛесART» (ЛесАрт)
Проспект Ветеранов
20 мин.
Строится
1-комн. квартира 28,76 м2 7 694 416
Этаж 8/12
ЛО, ЖК «ЛесART» (ЛесАрт)
Проспект Ветеранов
20 мин.
Строится
1-комн. квартира 30,50 м2 7 289 177
Этаж 2/12
ЛО, ЖК «ЛесART» (ЛесАрт)
Проспект Ветеранов
20 мин.
Строится
Посмотреть 337 квартир в ЖК «ЛесART»
2-комн. квартира 53,11 м2 14 134 008
Этаж 3/12
ЛО, ЖК «ЛесART» (ЛесАрт)
Проспект Ветеранов
20 мин.
Строится
2-комн. квартира 55,95 м2 14 490 457
Этаж 1/12
ЛО, ЖК «ЛесART» (ЛесАрт)
Проспект Ветеранов
20 мин.
Строится
2-комн. квартира 58,36 м2 14 471 907
Этаж 1/12
ЛО, ЖК «ЛесART» (ЛесАрт)
Проспект Ветеранов
20 мин.
Строится
2-комн. квартира 58,48 м2 14 728 291
Этаж 2/12
ЛО, ЖК «ЛесART» (ЛесАрт)
Проспект Ветеранов
20 мин.
Строится
Посмотреть 50 квартир в ЖК «ЛесART»
3-комн. квартира 73,00 м2 19 323 529
Этаж 7/12
ЛО, ЖК «ЛесART» (ЛесАрт)
Проспект Ветеранов
20 мин.
Строится
3-комн. квартира 81,33 м2 21 508 436
Этаж 8/12
ЛО, ЖК «ЛесART» (ЛесАрт)
Проспект Ветеранов
20 мин.
Строится
Этаж 1/12
ЛО, ЖК «ЛесART» (ЛесАрт)
Проспект Ветеранов
20 мин.
Строится
Этаж 6/12
ЛО, ЖК «ЛесART» (ЛесАрт)
Проспект Ветеранов
20 мин.
Строится
Посмотреть 11 квартир в ЖК «ЛесART»
Этаж 12/12
ЛО, ЖК «ЛесART» (ЛесАрт)
Проспект Ветеранов
20 мин.
Сдан

Скидки и спецпредложения от застройщиков

ЖК «ЛесART» (ЛесАрт) на карте

Выгодные предложения на новостройки

Отзывы о ЖК «ЛесART»

Самый полезный отзыв
А
05 апреля 2023
Оценка:
Экология
Социальная инфраструктура
Планировки
Двор, окружение
Расположение не далеко от города, заезжали посмотреть ход строительства несколько раз и утром и вечером в заторы не попадали.
Ответить
Полезный отзыв?
Самый новый отзыв
ДВ
31 августа
Оценка:
Я вложился в этот ЖК, потому что увидел сочетание красивых планировок, отличной инфраструктуры и потенциала для роста капитала. Удобно, что и жить здесь будет комфортно
Ответить
Полезный отзыв?
Добавьте отзыв, заполнив личные данные, или сначала войдите на сайт, тогда информация будет автоматически взята из личного профиля.
Оценка*