Переверните экран
Новостройки Квартиры Ипотека Медиа О проекте Контакты Реклама на сайте Vk Youtube Telegram Дзен Продавцы и застройщики Коммерческие помещения Квартиры на карте Эксперты и авторы Машиноместа Акции от застройщиков Банки и программы Апартаменты Новостройки на карте 4-комнатные и более Готовые новостройки 3-комнатные Военная ипотека Покупателю Новостройки Санкт-Петербурга Видеообзор новостроек Семейная ипотека Аналитика рынка Панорамы новостроек 1-комнатные Субсидированная застройщиком Мнение эксперта Студии Ипотечный калькулятор Новости недвижимости Новостройки Ленинградской области IT-ипотека Квартиры со скидками до 25% Новостройки премиум-класса Новостройки бизнес-класса Дома и коттеджи Бизнес-центры Бизнес-центры в Санкт-Петербурге Бизнес-центры рядом с метро Строящиеся бизнес-центры Бизнес-центры класса A
Данное предложение на 17.12.2025 неактуально. Пожалуйста, ознакомьтесь с другими похожими предложениями в ЖК «Гранат» .
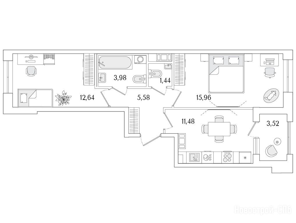
2-комн. квартира, 52.84 м2, 13 этаж
Срок сдачи 2 квартал 2028 года
20 936 319 
25 392 908
396 221 2
обновлено 19 ноября

Описание 2-комн. квартиры

Новостройка
Срок ГК
2 квартал 2028 года
Стадия строительства
котлован/фундамент
Общая площадь
52.84 м2
Этаж
13 / 13
Отделка
white box
Грузовой лифт
есть

Расположение 2-комн. квартиры

Локация
Метро
Дом
1
Адрес
ул. Фучика, 12, ЖК «Гранат», корпус 1, секция 5

Способы покупки

Особенности

Продается двухкомнатная квартира в новостройке ЖК «Гранат» по адресу Санкт-Петербург, Фрунзенский, ул. Фучика, 12, ЖК «Гранат», корпус 1. Общая площадь квартиры - 52.84 кв. м. Тип проекта, по которому построен дом — Монолитно-кирпичный, компания-застройщик — ГК РСТИ (РосСтройИнвест), ООО «РСТИ на Фучика-1». Стоимость квартиры — 20 936 319 руб. Способы оплаты можно уточнить у продавца. Срок сдачи — 2 квартал 2028. Более подробная информация по телефону.
Инфоцентр новостроек
Инфоцентр новостроек
+7 (812) 424-49-09
Время работы 9:00 — 21:00

Похожие квартиры в ЖК «Гранат»

2 этаж
из 13 2 квартал 2028
Санкт-Петербург, Санкт-Петербург
Бухарестская
13 мин.
1
Корпус
white box
Отделка
2.73 м
Потолки
ЖК «Гранат»
19 329 593 23 433 485
Альфа-Банк, СберБанк, Совкомбанк, ДОМ.РФ, Банк Санкт-Петербург, ВТБ
6.00%
Ставка
30.10%
Первый взнос
от 115 891 /мес.
Все варианты
3 этаж
из 13 2 квартал 2028
Санкт-Петербург, Санкт-Петербург
Бухарестская
13 мин.
1
Корпус
white box
Отделка
2.73 м
Потолки
ЖК «Гранат»
19 888 627 24 115 234
Альфа-Банк, СберБанк, Совкомбанк, ДОМ.РФ, Банк Санкт-Петербург, ВТБ
6.00%
Ставка
30.10%
Первый взнос
от 119 242 /мес.
Все варианты
5 этаж
из 13 2 квартал 2028
Санкт-Петербург, Санкт-Петербург
Бухарестская
13 мин.
1
Корпус
white box
Отделка
2.73 м
Потолки
ЖК «Гранат»
20 848 282 25 285 545
Альфа-Банк, СберБанк, Совкомбанк, ДОМ.РФ, Банк Санкт-Петербург, ВТБ
6.00%
Ставка
30.10%
Первый взнос
от 124 996 /мес.
Все варианты
8 этаж
из 13 2 квартал 2028
Санкт-Петербург, Санкт-Петербург
Бухарестская
13 мин.
1
Корпус
white box
Отделка
2.73 м
Потолки
ЖК «Гранат»
21 232 117 25 753 637
Альфа-Банк, СберБанк, Совкомбанк, ДОМ.РФ, Банк Санкт-Петербург, ВТБ
6.00%
Ставка
30.10%
Первый взнос
от 127 297 /мес.
Все варианты
7 этаж
из 13 2 квартал 2028
Санкт-Петербург, Санкт-Петербург
Бухарестская
13 мин.
1
Корпус
white box
Отделка
2.73 м
Потолки
ЖК «Гранат»
21 232 117 25 753 637
Альфа-Банк, СберБанк, Совкомбанк, ДОМ.РФ, Банк Санкт-Петербург, ВТБ
6.00%
Ставка
30.10%
Первый взнос
от 127 297 /мес.
Все варианты
10 этаж
из 13 2 квартал 2028
Санкт-Петербург, Санкт-Петербург
Бухарестская
13 мин.
1
Корпус
white box
Отделка
2.73 м
Потолки
ЖК «Гранат»
21 615 954 26 221 731
Альфа-Банк, СберБанк, Совкомбанк, ДОМ.РФ, Банк Санкт-Петербург, ВТБ
6.00%
Ставка
30.10%
Первый взнос
от 129 599 /мес.
Все варианты
9 этаж
из 13 2 квартал 2028
Санкт-Петербург, Санкт-Петербург
Бухарестская
13 мин.
1
Корпус
white box
Отделка
2.73 м
Потолки
ЖК «Гранат»
21 615 954 26 221 731
Альфа-Банк, СберБанк, Совкомбанк, ДОМ.РФ, Банк Санкт-Петербург, ВТБ
6.00%
Ставка
30.10%
Первый взнос
от 129 599 /мес.
Все варианты
11 этаж
из 13 2 квартал 2028
Санкт-Петербург, Санкт-Петербург
Бухарестская
13 мин.
1
Корпус
white box
Отделка
2.73 м
Потолки
ЖК «Гранат»
21 999 791 26 689 824
Альфа-Банк, СберБанк, Совкомбанк, ДОМ.РФ, Банк Санкт-Петербург, ВТБ
6.00%
Ставка
30.10%
Первый взнос
от 131 900 /мес.
Все варианты
12 этаж
из 13 2 квартал 2028
Санкт-Петербург, Санкт-Петербург
Бухарестская
13 мин.
1
Корпус
white box
Отделка
2.73 м
Потолки
ЖК «Гранат»
21 999 791 26 689 824
Альфа-Банк, СберБанк, Совкомбанк, ДОМ.РФ, Банк Санкт-Петербург, ВТБ
6.00%
Ставка
30.10%
Первый взнос
от 131 900 /мес.
Все варианты
13 этаж
из 13 2 квартал 2028
Санкт-Петербург, Санкт-Петербург
Бухарестская
13 мин.
1
Корпус
white box
Отделка
2.73 м
Потолки
ЖК «Гранат»
22 383 689 27 157 992
Альфа-Банк, СберБанк, Совкомбанк, ДОМ.РФ, Банк Санкт-Петербург, ВТБ
6.00%
Ставка
30.10%
Первый взнос
от 134 202 /мес.
Все варианты
Посмотреть все спецпредложения
студия 19,01 м2 9 506 042
Этаж 10/13
СПБ, ЖК «Гранат»
Бухарестская
13 мин.
Строится
студия 20,58 м2 9 759 165
Этаж 5/13
СПБ, ЖК «Гранат»
Бухарестская
13 мин.
Строится
студия 21,03 м2 9 628 993
Этаж 6/13
СПБ, ЖК «Гранат»
Бухарестская
13 мин.
Строится
студия 21,31 м2 10 188 745
Этаж 7/13
СПБ, ЖК «Гранат»
Бухарестская
13 мин.
Строится
Посмотреть 116 квартир в ЖК «Гранат»
1-комн. квартира 28,24 м2 13 329 761
Этаж 9/13
СПБ, ЖК «Гранат»
Бухарестская
13 мин.
Строится
1-комн. квартира 28,57 м2 13 137 750
Этаж 7/13
СПБ, ЖК «Гранат»
Бухарестская
13 мин.
Строится
1-комн. квартира 28,65 м2 11 475 171
Этаж 1/13
СПБ, ЖК «Гранат»
Бухарестская
13 мин.
Строится
1-комн. квартира 28,83 м2 11 742 554
Этаж 3/13
СПБ, ЖК «Гранат»
Бухарестская
13 мин.
Строится
Посмотреть 223 квартиры в ЖК «Гранат»
2-комн. квартира 45,45 м2 19 372 351
Этаж 5/13
СПБ, ЖК «Гранат»
Бухарестская
13 мин.
Строится
2-комн. квартира 46,90 м2 19 110 963
Этаж 3/13
СПБ, ЖК «Гранат»
Бухарестская
13 мин.
Строится
2-комн. квартира 49,37 м2 21 037 851
Этаж 5/13
СПБ, ЖК «Гранат»
Бухарестская
13 мин.
Строится
2-комн. квартира 49,39 м2 18 621 372
Этаж 6/13
СПБ, ЖК «Гранат»
Бухарестская
13 мин.
Строится
Посмотреть 132 квартиры в ЖК «Гранат»
3-комн. квартира 75,51 м2 26 434 136
Этаж 4/13
СПБ, ЖК «Гранат»
Бухарестская
13 мин.
Строится
3-комн. квартира 75,97 м2 25 306 753
Этаж 1/13
СПБ, ЖК «Гранат»
Бухарестская
13 мин.
Строится
3-комн. квартира 80,93 м2 28 192 034
Этаж 3/13
СПБ, ЖК «Гранат»
Бухарестская
13 мин.
Строится
3-комн. квартира 81,60 м2 27 598 794
Этаж 2/13
СПБ, ЖК «Гранат»
Бухарестская
13 мин.
Строится
Посмотреть 23 квартиры в ЖК «Гранат»

Скидки и спецпредложения от застройщиков

ЖК «Гранат» на карте

Выгодные предложения на новостройки

Отзывы о ЖК «Гранат»

Самый полезный отзыв
ДК
29 мая
Оценка:
Транспортная доступность
Социальная инфраструктура
Двор, окружение
Расположение
ЖК удобно расположен, это факт. И подъездные пути просто сказка – асфальт прямо до дверей, не нужно скакать по кочкам. Парковочная зона прямо под домом, да еще и в соседнем доме “Магнит” – очень удобно заскочить за продуктами. Для детей вообще рай – площадка уже обустроена, можно сразу гулять. И два лифта в доме – никакой давки по утрам.
Ответить
Полезный отзыв?
Самый новый отзыв
Р
17 декабря
Оценка:
Планировки
Способы покупки
Внешний вид фасада
Расположение
Понравилось, что в отзывах хвалят удобный подъезд и бытовую инфраструктуру «внизу»: когда рядом магазин и нормально организован подъезд к дому, это реально экономит время. Плюс — детская площадка и лифты, всё звучит практично. Но проект ещё строится, поэтому я бы не идеализировал: главное — как сдадут качество и как будет работать УК после заселения.
Ответить
Полезный отзыв?
Добавьте отзыв, заполнив личные данные, или сначала войдите на сайт, тогда информация будет автоматически взята из личного профиля.
Оценка*