Переверните экран
Поиск домов и коттеджей

Найдите идеальный дом или коттедж в Санкт-Петербурге и области

Найдите идеальный дом или коттедж в Санкт-Петербурге и области

Перейти к поиску
Новостройки Квартиры Ипотека Медиа О проекте Контакты Реклама на сайте Vk Youtube Telegram Дзен Продавцы и застройщики Коммерческие помещения Квартиры на карте Эксперты и авторы Машиноместа Акции от застройщиков Банки и программы Апартаменты Новостройки на карте 4-комнатные и более Готовые новостройки 3-комнатные Военная ипотека Покупателю Новостройки Санкт-Петербурга Видеообзор новостроек Семейная ипотека Аналитика рынка Панорамы новостроек 1-комнатные Субсидированная застройщиком Мнение эксперта Студии Ипотечный калькулятор Новости недвижимости Новостройки Ленинградской области ИТ-ипотека Квартиры со скидками до 25% Новостройки премиум-класса Новостройки бизнес-класса Дома и коттеджи Коттеджные поселки в Санкт-Петербурге Коттеджные поселки в Ленинградской обл Готовые коттеджные поселки Строящиеся коттеджные поселки Коттеджные поселки у леса Коттеджные поселки у водоема Коттеджные поселки в ипотеку Бизнес-центры Коттеджи Ипотека со ставкой 0,1% Траншевая ипотека
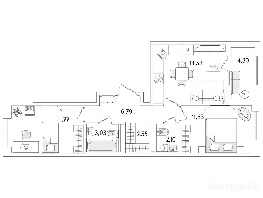
2-комн. квартира, 54.60 м2, 1 этаж
Срок сдачи 2 квартал 2028 года
20 866 996 
25 490 853
382 179 2
обновлено 4 мая

Описание 2-комн. квартиры

Новостройка
Срок ГК
2 квартал 2028 года
Стадия строительства
котлован/фундамент
Общая площадь
54.60 м2
Этаж
1 / 13
Отделка
чистовая
Грузовой лифт
есть

Расположение 2-комн. квартиры

Локация
Метро
Дом
1
Адрес
ул. Фучика, 12, ЖК «Гранат», корпус 1, секция 4

Способы покупки

Особенности

Продается двухкомнатная квартира в новостройке ЖК «Гранат» по адресу Санкт-Петербург, Фрунзенский, ул. Фучика, 12, ЖК «Гранат», корпус 1. Общая площадь квартиры - 54.6 кв. м. Тип проекта, по которому построен дом — Монолитно-кирпичный, компания-застройщик — ГК РСТИ (РосСтройИнвест), ООО «РСТИ на Фучика-1». Стоимость квартиры — 20 866 996 руб. Способы оплаты можно уточнить у продавца. Срок сдачи — 2 квартал 2028. Более подробная информация по телефону.
Инфоцентр новостроек
Инфоцентр новостроек
+7 (812) 424-49-09
Время работы 9:00 — 21:00
студия 19,01 м2 10 117 745
Этаж 12/13
СПБ, ЖК «Гранат»
Бухарестская
13 мин.
Строится
студия 20,58 м2 10 212 241
Этаж 5/13
СПБ, ЖК «Гранат»
Бухарестская
13 мин.
Строится
студия 21,03 м2 10 101 281
Этаж 6/13
СПБ, ЖК «Гранат»
Бухарестская
13 мин.
Строится
студия 21,31 м2 10 662 231
Этаж 7/13
СПБ, ЖК «Гранат»
Бухарестская
13 мин.
Строится
Посмотреть 105 квартир в ЖК «Гранат»
1-комн. квартира 28,24 м2 13 949 506
Этаж 9/13
СПБ, ЖК «Гранат»
Бухарестская
13 мин.
Строится
1-комн. квартира 28,57 м2 13 747 141
Этаж 7/13
СПБ, ЖК «Гранат»
Бухарестская
13 мин.
Строится
1-комн. квартира 28,65 м2 12 000 112
Этаж 1/13
СПБ, ЖК «Гранат»
Бухарестская
13 мин.
Строится
1-комн. квартира 28,83 м2 12 912 735
Этаж 5/13
СПБ, ЖК «Гранат»
Бухарестская
13 мин.
Строится
Посмотреть 192 квартиры в ЖК «Гранат»
2-комн. квартира 45,45 м2 19 384 271
Этаж 4/13
СПБ, ЖК «Гранат»
Бухарестская
13 мин.
Строится
2-комн. квартира 46,90 м2 20 000 716
Этаж 3/13
СПБ, ЖК «Гранат»
Бухарестская
13 мин.
Строится
2-комн. квартира 49,37 м2 22 021 296
Этаж 5/13
СПБ, ЖК «Гранат»
Бухарестская
13 мин.
Строится
2-комн. квартира 49,39 м2 19 933 794
Этаж 7/13
СПБ, ЖК «Гранат»
Бухарестская
13 мин.
Строится
Посмотреть 128 квартир в ЖК «Гранат»
3-комн. квартира 75,51 м2 27 771 290
Этаж 3/13
СПБ, ЖК «Гранат»
Бухарестская
13 мин.
Строится
3-комн. квартира 75,97 м2 26 586 745
Этаж 1/13
СПБ, ЖК «Гранат»
Бухарестская
13 мин.
Строится
3-комн. квартира 80,93 м2 29 035 940
Этаж 3/13
СПБ, ЖК «Гранат»
Бухарестская
13 мин.
Строится
3-комн. квартира 81,60 м2 28 424 902
Этаж 2/13
СПБ, ЖК «Гранат»
Бухарестская
13 мин.
Строится
Посмотреть 23 квартиры в ЖК «Гранат»

Скидки и спецпредложения от застройщиков

ЖК «Гранат» на карте

Выгодные предложения на новостройки

Отзывы о ЖК «Гранат»

Самый полезный отзыв
ДК
29 мая 2025
Оценка:
Достоинства
Транспортная доступность
Социальная инфраструктура
Двор, окружение
Расположение
ЖК удобно расположен, это факт. И подъездные пути просто сказка – асфальт прямо до дверей, не нужно скакать по кочкам. Парковочная зона прямо под домом, да еще и в соседнем доме “Магнит” – очень удобно заскочить за продуктами. Для детей вообще рай – площадка уже обустроена, можно сразу гулять. И два лифта в доме – никакой давки по утрам.
Ответить
Самый новый отзыв
Б
24 декабря 2025
Оценка:
Достоинства
Планировки
Способы покупки
Двор, окружение
Расположение
Выбирали как компромисс между ценой и локацией. Дом аккуратный, без явных проблем. Двор и подъезды обычные. Не хватает зелени и общественных пространств. В целом спокойный средний сегмент.
Ответить

Оставить отзыв

Добавьте отзыв, заполнив личные данные, или сначала войдите на сайт, тогда информация будет автоматически взята из личного профиля.
Оценка*