Переверните экран
Поиск бизнес центров

Найдите современный офис в деловых районах Санкт-Петербурга

Найдите современный офис в деловых районах Санкт-Петербурга

Перейти к поиску
Новостройки Квартиры Ипотека Медиа О проекте Контакты Реклама на сайте Vk Youtube Telegram Дзен Продавцы и застройщики Коммерческие помещения Квартиры на карте Эксперты и авторы Машиноместа Акции от застройщиков Банки и программы Апартаменты Новостройки на карте 4-комнатные и более Готовые новостройки 3-комнатные Военная ипотека Покупателю Новостройки Санкт-Петербурга Видеообзор новостроек Семейная ипотека Аналитика рынка Панорамы новостроек 1-комнатные Субсидированная застройщиком Мнение эксперта Студии Ипотечный калькулятор Новости недвижимости Новостройки Ленинградской области ИТ-ипотека Квартиры со скидками до 25% Новостройки премиум-класса Новостройки бизнес-класса Дома и коттеджи Бизнес-центры Бизнес-центры в Санкт-Петербурге Бизнес-центры рядом с метро Строящиеся бизнес-центры Бизнес-центры класса A Ипотека со ставкой 0,1% Траншевая ипотека
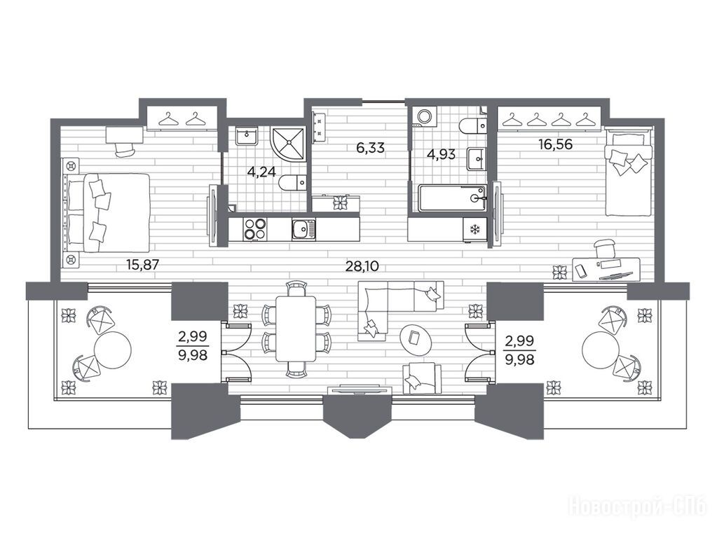
2-комн. квартира, 82.01 м2, 12 этаж
Срок сдачи 3 квартал 2028 года
69 266 138 
844 606 2
обновлено 6 марта

Описание 2-комн. квартиры

Застройщик
Срок ГК
3 квартал 2028 года
Стадия строительства
котлован/фундамент
Общая площадь
82.01 м2
Жилая площадь
32.43 м2
Площадь кухни
28.10 м2
Этаж
12 / 12
Грузовой лифт
есть

Расположение 2-комн. квартиры

Дом
1
Адрес
Шкиперский проток, секция 1

Особенности

Продается двухкомнатная квартира в новостройке ЖК «Галерная гавань» по адресу Санкт-Петербург, Василеостровский, Шкиперский проток. Общая площадь квартиры - 82.01 кв. м. Тип проекта, по которому построен дом — Монолитно-кирпичный, компания-застройщик — ПСК, СЗ «Проект С-37». Стоимость квартиры — 69 266 138 руб. Способы оплаты можно уточнить у продавца. Срок сдачи — 3 квартал 2028. Более подробная информация по телефону.
Инфоцентр новостроек
Инфоцентр новостроек
Время работы 9:00 — 21:00
Выбирайте квартиру в ЖК «Галерная гавань» по ценам от застройщика
студия 29,45 м2 15 315 472
Этаж 4/12
СПБ, ЖК «Галерная гавань»
Приморская
8 мин.
Строится
студия 30,81 м2 15 267 895
Этаж 2/12
СПБ, ЖК «Галерная гавань»
Приморская
8 мин.
Строится
Посмотреть 6 квартир в ЖК «Галерная гавань»
1-комн. квартира 33,96 м2 19 335 126
Этаж 5/12
СПБ, ЖК «Галерная гавань»
Приморская
8 мин.
Строится
1-комн. квартира 34,02 м2 18 069 723
Этаж 2/12
СПБ, ЖК «Галерная гавань»
Приморская
8 мин.
Строится
1-комн. квартира 36,47 м2 17 620 480
Этаж 2/12
СПБ, ЖК «Галерная гавань»
Приморская
8 мин.
Строится
1-комн. квартира 39,51 м2 19 405 336
Этаж 2/12
СПБ, ЖК «Галерная гавань»
Приморская
8 мин.
Строится
Посмотреть 36 квартир в ЖК «Галерная гавань»
2-комн. квартира 53,92 м2 24 342 184
Этаж 2/12
СПБ, ЖК «Галерная гавань»
Приморская
8 мин.
Строится
2-комн. квартира 54,06 м2 24 805 431
Этаж 2/6
СПБ, ЖК «Галерная гавань»
Приморская
8 мин.
Строится
2-комн. квартира 60,25 м2 25 205 587
Этаж 2/12
СПБ, ЖК «Галерная гавань»
Приморская
8 мин.
Строится
2-комн. квартира 60,35 м2 24 595 642
Этаж 2/12
СПБ, ЖК «Галерная гавань»
Приморская
8 мин.
Строится
Посмотреть 64 квартиры в ЖК «Галерная гавань»
3-комн. квартира 73,88 м2 30 021 138
Этаж 2/12
СПБ, ЖК «Галерная гавань»
Приморская
8 мин.
Строится
3-комн. квартира 75,67 м2 31 505 204
Этаж 2/12
СПБ, ЖК «Галерная гавань»
Приморская
8 мин.
Строится
3-комн. квартира 81,52 м2 32 701 748
Этаж 2/12
СПБ, ЖК «Галерная гавань»
Приморская
8 мин.
Строится
3-комн. квартира 84,85 м2 32 679 977
Этаж 2/12
СПБ, ЖК «Галерная гавань»
Приморская
8 мин.
Строится
Посмотреть 33 квартиры в ЖК «Галерная гавань»
4-комн. квартира 101,87 м2 44 858 454
Этаж 2/12
СПБ, ЖК «Галерная гавань»
Приморская
8 мин.
Строится
4-комн. квартира 104,98 м2 47 498 201
Этаж 11/12
СПБ, ЖК «Галерная гавань»
Приморская
8 мин.
Строится
4-комн. квартира 134,08 м2 99 274 172
Этаж 12/12
СПБ, ЖК «Галерная гавань»
Приморская
8 мин.
Строится
Посмотреть 5 квартир в ЖК «Галерная гавань»

Скидки и спецпредложения от застройщиков

ЖК «Галерная гавань» на карте

Выгодные предложения на новостройки

Отзывы о ЖК «Галерная гавань»

Самый полезный отзыв
К
23 декабря 2025
Оценка:
Хороший должен получиться комплекс. Особенно понравилась идея с общественным пространством. Сможем прогуливаться не только во дворе комплекса, но и по променаду вдоль набережной, любоваться красивыми видами, дышать морским воздухом. Думаю, выбрали правильное место для жизни
Ответить
Самый новый отзыв
А
27 января
Оценка:
Тут тихо, спокойно, крупных дорог прям рядом нет, до ЗСД прилично так по расстоянию,слышно не должно быть сильно. А вот виды должны быть красивые, специально этаж повыше выбрали и сторону на саму гавань, чтобы любоваться
Ответить

Оставить отзыв

Добавьте отзыв, заполнив личные данные, или сначала войдите на сайт, тогда информация будет автоматически взята из личного профиля.
Оценка*