Переверните экран
Новостройки Квартиры Ипотека Медиа О проекте Контакты Реклама на сайте Vk Youtube Telegram Дзен Продавцы и застройщики Коммерческие помещения Квартиры на карте Эксперты и авторы Машиноместа Акции от застройщиков Банки и программы Апартаменты Новостройки на карте 4-комнатные и более Готовые новостройки 3-комнатные Военная ипотека Покупателю Новостройки Санкт-Петербурга Видеообзор новостроек Семейная ипотека Аналитика рынка Панорамы новостроек 1-комнатные Субсидированная застройщиком Мнение эксперта Студии Ипотечный калькулятор Новости недвижимости Новостройки Ленинградской области IT-ипотека Квартиры со скидками до 25% Новостройки премиум-класса Новостройки бизнес-класса Дома и коттеджи Бизнес-центры Бизнес-центры в Санкт-Петербурге Бизнес-центры рядом с метро Строящиеся бизнес-центры Бизнес-центры класса A
Данное предложение на 17.12.2025 неактуально. Пожалуйста, ознакомьтесь с другими похожими предложениями в ЖК AVANT (Авант) .
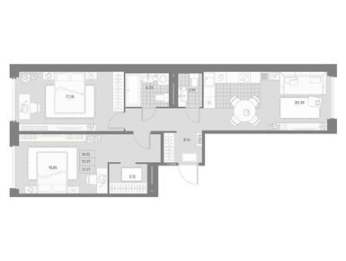
2-комн. квартира, 73.97 м2, 4 этаж
Срок сдачи 2 квартал 2027 года
50 825 408 
687 108 2
обновлено 25 сентября

Описание 2-комн. квартиры

Новостройка
Застройщик
Срок ГК
2 квартал 2027 года
Стадия строительства
Тип проекта
Общая площадь
73.97 м2
Этаж
4 / 11

Расположение 2-комн. квартиры

Метро
Дом
KLASSIK
Адрес
ул. Пионерская, д. 53

Особенности

Продается двухкомнатная квартира в новостройке ЖК AVANT (Авант) по адресу Санкт-Петербург, Петроградский, ул. Пионерская, д. 53. Общая площадь квартиры - 73.97 кв. м. Тип проекта, по которому построен дом — Монолит, компания-застройщик — Компания AAG. Стоимость квартиры — 50 825 408 руб. Способы оплаты можно уточнить у продавца. Срок сдачи — 2 квартал 2027. Более подробная информация по телефону.
Инфоцентр новостроек
Инфоцентр новостроек
+7 (812) 424-49-09
Время работы 9:00 — 21:00

Похожие квартиры в ЖК AVANT

7 этаж
из 9 2 квартал 2027
Санкт-Петербург, Санкт-Петербург
Чкаловская
6 мин.
KLASSIK
Корпус
нет данных
Отделка
2.98 м
Потолки
ЖК AVANT (Авант)
58 286 717
Посмотреть все спецпредложения
Этаж 1/9
СПБ, ЖК AVANT (Авант)
Чкаловская
6 мин.
Строится
1-комн. квартира 25,19 м2 25 034 918
Этаж 2/8
СПБ, ЖК AVANT (Авант)
Чкаловская
6 мин.
Строится
1-комн. квартира 25,52 м2 26 282 741
Этаж 4/8
СПБ, ЖК AVANT (Авант)
Чкаловская
6 мин.
Строится
1-комн. квартира 25,57 м2 26 240 278
Этаж 5/8
СПБ, ЖК AVANT (Авант)
Чкаловская
6 мин.
Строится
Посмотреть 37 квартир в ЖК AVANT
2-комн. квартира 52,30 м2 42 513 555
Этаж 3/9
СПБ, ЖК AVANT (Авант)
Чкаловская
6 мин.
Строится
2-комн. квартира 52,53 м2 43 180 890
Этаж 5/9
СПБ, ЖК AVANT (Авант)
Чкаловская
6 мин.
Строится
2-комн. квартира 53,69 м2 44 134 438
Этаж 5/9
СПБ, ЖК AVANT (Авант)
Чкаловская
6 мин.
Строится
2-комн. квартира 55,07 м2 45 772 431
Этаж 5/9
СПБ, ЖК AVANT (Авант)
Чкаловская
6 мин.
Строится
Посмотреть 49 квартир в ЖК AVANT
3-комн. квартира 88,84 м2 68 445 875
Этаж 1/9
СПБ, ЖК AVANT (Авант)
Чкаловская
6 мин.
Строится
3-комн. квартира 93,21 м2 76 005 624
Этаж 2/4
СПБ, ЖК AVANT (Авант)
Чкаловская
6 мин.
Строится
3-комн. квартира 99,21 м2 81 252 685
Этаж 5/7
СПБ, ЖК AVANT (Авант)
Чкаловская
6 мин.
Строится
3-комн. квартира 101,47 м2 87 833 556
Этаж 6/9
СПБ, ЖК AVANT (Авант)
Чкаловская
6 мин.
Строится
Посмотреть 16 квартир в ЖК AVANT
4-комн. квартира 96,70 м2 88 862 850
Этаж 5/8
СПБ, ЖК AVANT (Авант)
Чкаловская
6 мин.
Строится
4-комн. квартира 128,88 м2 127 831 286
Этаж 7/9
СПБ, ЖК AVANT (Авант)
Чкаловская
6 мин.
Строится

Скидки и спецпредложения от застройщиков

ЖК AVANT (Авант) на карте

Выгодные предложения на новостройки

Самый полезный отзыв
ОС
10 февраля
Оценка:
Социальная инфраструктура
Планировки
Способы покупки
Двор, окружение
Расположение
Наличие собственного детского сада и школы прямо у дома - это просто находка для нашей семьи! Всегда можно быть уверенным в том, что дети обучаются в безопасной и комфортной среде, и у нас больше нет хлопот с утренними сборами и долгими поездками. Просторные зелёные зоны, деревья и свежий воздух дают атмосферу уюта и спокойствия, которую нельзя достигнуть в шумном городе.
Ответить
Полезный отзыв?
Самый новый отзыв
ДК
05 декабря
Оценка:
Классный стиль, люблю лофт! Такие трансформации бывших заводов я приветствую ! )
Ответить
Полезный отзыв?
Добавьте отзыв, заполнив личные данные, или сначала войдите на сайт, тогда информация будет автоматически взята из личного профиля.
Оценка*