Переверните экран
Поиск бизнес центров

Найдите современный офис в деловых районах Санкт-Петербурга

Найдите современный офис в деловых районах Санкт-Петербурга

Перейти к поиску
Новостройки Квартиры Ипотека Медиа О проекте Контакты Реклама на сайте Vk Youtube Telegram Дзен Продавцы и застройщики Коммерческие помещения Квартиры на карте Эксперты и авторы Машиноместа Акции от застройщиков Банки и программы Апартаменты Новостройки на карте 4-комнатные и более Готовые новостройки 3-комнатные Военная ипотека Покупателю Новостройки Санкт-Петербурга Видеообзор новостроек Семейная ипотека Аналитика рынка Панорамы новостроек 1-комнатные Субсидированная застройщиком Мнение эксперта Студии Ипотечный калькулятор Новости недвижимости Новостройки Ленинградской области IT-ипотека Квартиры со скидками до 25% Новостройки премиум-класса Новостройки бизнес-класса Дома и коттеджи Бизнес-центры Бизнес-центры в Санкт-Петербурге Бизнес-центры рядом с метро Строящиеся бизнес-центры Бизнес-центры класса A
2-комн. апартамент, 98.38 м2, 1 этаж
Срок сдачи 4 квартал 2026 года
118 056 000 
1 200 000 2
обновлено 5 декабря

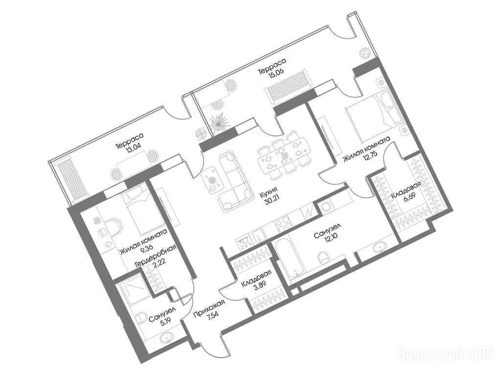
Описание 2-комн. апартамента

Срок ГК
4 квартал 2026 года
Стадия строительства
отделка фасада и внутренние работы
Общая площадь
98.38 м2
Жилая площадь
22.11 м2
Площадь кухни
30.21 м2
Этаж
1 / 6
Отделка
чистовая

Расположение 2-комн. апартамента

Метро
Беговая
64 мин.
Озерки
71 мин.
Ж/Д-станция
Рощино
4 мин.
Дом
А3
Адрес
г. п. Рощино, ул. Пионерская, д. 3, секция 1

Особенности

Продается двухкомнатный апартамент в новостройке «Резиденции Рощино» (Рощино Residence) по адресу Ленинградская область, Выборгский район, г. п. Рощино, ул. Пионерская, д. 3. Общая площадь апартамента - 98.38 кв. м. Тип проекта, по которому построен дом — Монолитно-кирпичный, компания-застройщик — ООО СЗ РЕЗИДЕНЦИЯ РОЩИНО. Стоимость апартамента — 118 056 000 руб. Способы оплаты можно уточнить у продавца. Срок сдачи — 4 квартал 2026. Более подробная информация по телефону.
Инфоцентр новостроек
Инфоцентр новостроек
+7 (812) 424-49-09
Время работы 9:00 — 21:00
Посмотреть все спецпредложения
2-комн. апартамент 65,64 м2 78 768 000
Этаж 4/6
ЛО, «Резиденции Рощино» (Рощино Residence)
Беговая
64 мин.
Строится
2-комн. апартамент 80,59 м2 96 708 000
Этаж 4/6
ЛО, «Резиденции Рощино» (Рощино Residence)
Беговая
64 мин.
Строится
2-комн. апартамент 86,62 м2 103 944 000
Этаж 1/6
ЛО, «Резиденции Рощино» (Рощино Residence)
Беговая
64 мин.
Строится
2-комн. апартамент 86,93 м2 104 316 000
Этаж 1/6
ЛО, «Резиденции Рощино» (Рощино Residence)
Беговая
64 мин.
Строится
Посмотреть 11 апартаментов в «Резиденции Рощино»
Этаж 6/6
ЛО, «Резиденции Рощино» (Рощино Residence)
Беговая
64 мин.
Строится
3-комн. апартамент 146,21 м2 175 452 000
Этаж 5/6
ЛО, «Резиденции Рощино» (Рощино Residence)
Беговая
64 мин.
Строится
3-комн. апартамент 146,89 м2 176 268 000
Этаж 4/6
ЛО, «Резиденции Рощино» (Рощино Residence)
Беговая
64 мин.
Строится
Этаж 1/6
ЛО, «Резиденции Рощино» (Рощино Residence)
Беговая
64 мин.
Строится
Посмотреть 13 апартаментов в «Резиденции Рощино»

Скидки и спецпредложения от застройщиков

«Резиденции Рощино» (Рощино Residence) на карте

Выгодные предложения на новостройки

Отзывы о «Резиденции Рощино»

Самый полезный отзыв
ВР
28 февраля
Оценка:
Транспортная доступность
Социальная инфраструктура
Планировки
Внешний вид фасада
Двор, окружение
Расположение
По плану тут есть различные удобства, доступные на территории. В восторге от SPA-комплекса - рай для релаксации! После долгого рабочего дня будет приятно забежать сюда, чтобы расслабиться и восстановить силы. Тренажерный зал тоже заслуживает отдельной похвалы - можно будет спокойно выпустить пар, после дня в офисе.
Ответить
Полезный отзыв?
Самый новый отзыв
Е
17 июня
Оценка:
У меня свой блог, вдохновение привыкла черпать в окружающей природе. Где живу сейчас - уже каждый уголок знаком)) Стала задумываться о новой локации, и этот проект привлек мое внимание) Жилье практически в лесу - там такая природа, взглянул и влюбился! Да и в целом для жизни место шикарнейшее, территория комплекса продумана до мелочей, апартаменты уютные, смотрела варианты отделок в шоуруме - очень понравилось! Мне и для блога, и самой лично очень важна эстетическая составляющся, тут все внутренние гештальты можно будет закрыть) Уже продумываю идеи для будущего контента и представляю, как вечерами на террасе буду пить кофе и монтировать новые видео, глядя на закат)
Показать все комментарии
Ответить
Полезный отзыв?
Добавьте отзыв, заполнив личные данные, или сначала войдите на сайт, тогда информация будет автоматически взята из личного профиля.
Оценка*