Переверните экран
Поиск бизнес центров

Найдите современный офис в деловых районах Санкт-Петербурга

Найдите современный офис в деловых районах Санкт-Петербурга

Перейти к поиску
Новостройки Квартиры Ипотека Медиа О проекте Контакты Реклама на сайте Vk Youtube Telegram Дзен Продавцы и застройщики Коммерческие помещения Квартиры на карте Эксперты и авторы Машиноместа Акции от застройщиков Банки и программы Апартаменты Новостройки на карте 4-комнатные и более Готовые новостройки 3-комнатные Военная ипотека Покупателю Новостройки Санкт-Петербурга Видеообзор новостроек Семейная ипотека Аналитика рынка Панорамы новостроек 1-комнатные Субсидированная застройщиком Мнение эксперта Студии Ипотечный калькулятор Новости недвижимости Новостройки Ленинградской области IT-ипотека Квартиры со скидками до 25% Новостройки премиум-класса Новостройки бизнес-класса Дома и коттеджи Бизнес-центры Бизнес-центры в Санкт-Петербурге Бизнес-центры рядом с метро Строящиеся бизнес-центры Бизнес-центры класса A
2-комн. квартира, 67.87 м2, 4 этаж
Срок сдачи 2 квартал 2026 года
22 159 555 
326 500 2
обновлено 5 декабря

Описание 2-комн. квартиры

Новостройка
Застройщик
Срок ГК
2 квартал 2026 года
Стадия строительства
котлован/фундамент
Тип проекта
монолитно-панельный
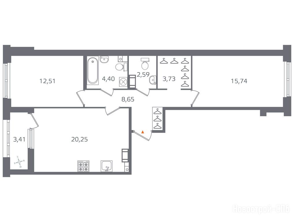
Общая площадь
67.87 м2
Площадь кухни
20.25 м2
Этаж
4 / 17
Отделка
white box
Грузовой лифт
есть

Расположение 2-комн. квартиры

Локация
Метро
Лесная
14 мин.
Дом
5
Адрес
проспект Маршала Блюхера, Квартал Б15, корпус 5

Особенности

Продается двухкомнатная квартира в новостройке Квартал Б15 по адресу Санкт-Петербург, Калининский, проспект Маршала Блюхера, Квартал Б15, корпус 5. Общая площадь квартиры - 67.87 кв. м. Тип проекта, по которому построен дом — Монолитно-панельный, компания-застройщик — КВС, СЗ КВС-Кондратьевский. Стоимость квартиры — 22 159 555 руб. Способы оплаты можно уточнить у продавца. Срок сдачи — 2 квартал 2026. Более подробная информация по телефону.
Инфоцентр новостроек
Инфоцентр новостроек
+7 (812) 424-49-09
Время работы 9:00 — 21:00

Похожие квартиры в Квартал Б15

8 этаж
из 17 2 квартал 2026
Санкт-Петербург, Санкт-Петербург
Лесная
14 мин.
5
Корпус
white box
Отделка
2.73 м
Потолки
Квартал Б15
22 159 555
5 этаж
из 17 2 квартал 2026
Санкт-Петербург, Санкт-Петербург
Лесная
14 мин.
5
Корпус
white box
Отделка
2.73 м
Потолки
Квартал Б15
22 159 555
6 этаж
из 17 2 квартал 2026
Санкт-Петербург, Санкт-Петербург
Лесная
14 мин.
5
Корпус
white box
Отделка
2.73 м
Потолки
Квартал Б15
22 193 490
Посмотреть все спецпредложения
студия 22,20 м2 8 595 840
Этаж 15/17
СПБ, Квартал Б15
Лесная
14 мин.
Строится
студия 22,57 м2 8 666 880
Этаж 10/17
СПБ, Квартал Б15
Лесная
14 мин.
Строится
студия 22,79 м2 9 015 724
Этаж 15/17
СПБ, Квартал Б15
Лесная
14 мин.
Строится
студия 22,91 м2 8 653 107
Этаж 2/17
СПБ, Квартал Б15
Лесная
14 мин.
Строится
Посмотреть 56 квартир в Квартал Б15
1-комн. квартира 34,01 м2 12 376 239
Этаж 15/17
СПБ, Квартал Б15
Лесная
14 мин.
Строится
1-комн. квартира 34,19 м2 12 376 780
Этаж 14/17
СПБ, Квартал Б15
Лесная
14 мин.
Строится
1-комн. квартира 34,34 м2 12 431 080
Этаж 4/17
СПБ, Квартал Б15
Лесная
14 мин.
Строится
1-комн. квартира 34,54 м2 12 430 946
Этаж 9/17
СПБ, Квартал Б15
Лесная
14 мин.
Строится
Посмотреть 26 квартир в Квартал Б15
2-комн. квартира 58,14 м2 20 139 696
Этаж 15/17
СПБ, Квартал Б15
Лесная
14 мин.
Строится
2-комн. квартира 58,19 м2 20 157 016
Этаж 15/17
СПБ, Квартал Б15
Лесная
14 мин.
Строится
2-комн. квартира 58,64 м2 20 019 696
Этаж 4/17
СПБ, Квартал Б15
Лесная
14 мин.
Строится
2-комн. квартира 59,51 м2 20 126 282
Этаж 3/17
СПБ, Квартал Б15
Лесная
14 мин.
Строится
Посмотреть 79 квартир в Квартал Б15
3-комн. квартира 77,63 м2 25 012 386
Этаж 8/17
СПБ, Квартал Б15
Лесная
14 мин.
Строится
3-комн. квартира 78,46 м2 24 644 286
Этаж 2/17
СПБ, Квартал Б15
Лесная
14 мин.
Строится
3-комн. квартира 83,02 м2 27 570 942
Этаж 4/17
СПБ, Квартал Б15
Лесная
14 мин.
Строится
3-комн. квартира 83,70 м2 27 093 690
Этаж 2/17
СПБ, Квартал Б15
Лесная
14 мин.
Строится
Посмотреть 15 квартир в Квартал Б15

Скидки и спецпредложения от застройщиков

Квартал Б15 на карте

Выгодные предложения на новостройки

Отзывы о Квартал Б15

Самый полезный отзыв
С
05 июня 2024
Оценка:
Удобное место, вокруг зелень, внутренний двор просторный, не три шага по всей площади. Есть своя парковка, так что рассматриваю как один из вариантов приобретения здесь квартиры.
Ответить
Полезный отзыв?
Самый новый отзыв
СФ
04 декабря
Оценка:
Транспортная доступность
Социальная инфраструктура
Внешний вид фасада
Собран набор модных тенденций: скандинавский стиль в отделке, торговая галерея, закрытый двор. Неизменный плюс ЖК, что все 5 корпусов сдадут одновременно. Не придется годами жить на стройплощадке и слушать шум от возведения следующих корпусов.
Ответить
Полезный отзыв?
Добавьте отзыв, заполнив личные данные, или сначала войдите на сайт, тогда информация будет автоматически взята из личного профиля.
Оценка*