Переверните экран
Поиск домов и коттеджей

Найдите идеальный дом или коттедж в Санкт-Петербурге и области

Найдите идеальный дом или коттедж в Санкт-Петербурге и области

Перейти к поиску
Новостройки Квартиры Ипотека Медиа О проекте Контакты Реклама на сайте Vk Youtube Telegram Дзен Продавцы и застройщики Коммерческие помещения Квартиры на карте Эксперты и авторы Машиноместа Акции от застройщиков Банки и программы Апартаменты Новостройки на карте 4-комнатные и более Готовые новостройки 3-комнатные Военная ипотека Покупателю Новостройки Санкт-Петербурга Видеообзор новостроек Семейная ипотека Аналитика рынка Панорамы новостроек 1-комнатные Субсидированная застройщиком Мнение эксперта Студии Ипотечный калькулятор Новости недвижимости Новостройки Ленинградской области IT-ипотека Квартиры со скидками до 25% Новостройки премиум-класса Новостройки бизнес-класса Дома и коттеджи Бизнес-центры Бизнес-центры в Санкт-Петербурге Бизнес-центры рядом с метро Строящиеся бизнес-центры Бизнес-центры класса A
4-комн. квартира, 61.72 м2, 1 этаж
Срок сдачи 2 квартал 2026 года
14 941 344 
18 676 680
242 083 2
обновлено 5 декабря

Описание 4-комн. квартиры

Новостройка
Срок ГК
2 квартал 2026 года
Стадия строительства
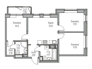
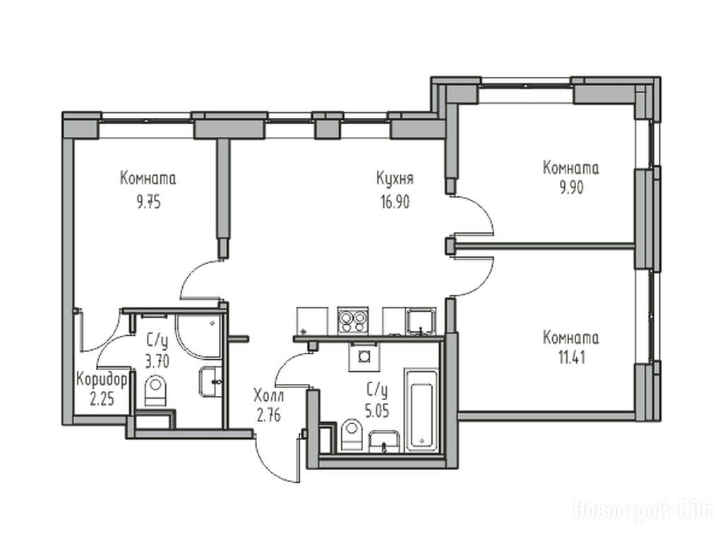
Общая площадь
61.72 м2
Жилая площадь
31.06 м2
Площадь кухни
16.90 м2
Этаж
1 / 22
Отделка
чистовая
Грузовой лифт
есть

Расположение 4-комн. квартиры

Локация
Метро
Беговая
30 мин.
Ж/Д-станция
Ольгино
15 мин.
Дом
оч.7 к.8
Адрес
Ивинская улица, 1к4, секция 1

Способы покупки

Особенности

Продается четырехкомнатная квартира в новостройке ЖК «Юнтолово» по адресу Санкт-Петербург, Приморский, Ивинская улица, 1к4. Общая площадь квартиры - 61.72 кв. м. Тип проекта, по которому построен дом — Монолитно-кирпичный, компания-застройщик — «Главстрой Санкт-Петербург». Стоимость квартиры — 14 941 344 руб. Способы оплаты можно уточнить у продавца. Срок сдачи — 2 квартал 2026. Более подробная информация по телефону.
Инфоцентр новостроек
Инфоцентр новостроек
+7 (812) 424-49-09
Время работы 9:00 — 21:00
Посмотреть все спецпредложения
1-комн. квартира 36,09 м2 8 243 788
Этаж 4/22
СПБ, ЖК «Юнтолово»
Беговая
30 мин.
Строится
1-комн. квартира 36,13 м2 8 619 116
Этаж 13/22
СПБ, ЖК «Юнтолово»
Беговая
30 мин.
Строится
1-комн. квартира 37,41 м2 8 268 732
Этаж 3/22
СПБ, ЖК «Юнтолово»
Беговая
30 мин.
Строится
1-комн. квартира 37,52 м2 8 605 344
Этаж 11/22
СПБ, ЖК «Юнтолово»
Беговая
30 мин.
Строится
Посмотреть 21 квартира в ЖК «Юнтолово»
2-комн. квартира 33,02 м2 8 561 756
Этаж 1/22
СПБ, ЖК «Юнтолово»
Беговая
30 мин.
Строится
2-комн. квартира 34,85 м2 8 201 100
Этаж 13/22
СПБ, ЖК «Юнтолово»
Беговая
30 мин.
Строится
2-комн. квартира 36,23 м2 8 252 756
Этаж 12/22
СПБ, ЖК «Юнтолово»
Беговая
30 мин.
Строится
2-комн. квартира 36,28 м2 8 491 456
Этаж 17/22
СПБ, ЖК «Юнтолово»
Беговая
30 мин.
Строится
Посмотреть 140 квартир в ЖК «Юнтолово»
3-комн. квартира 49,40 м2 11 347 840
Этаж 16/22
СПБ, ЖК «Юнтолово»
Беговая
30 мин.
Строится
3-комн. квартира 50,47 м2 11 247 660
Этаж 12/22
СПБ, ЖК «Юнтолово»
Беговая
30 мин.
Строится
3-комн. квартира 51,18 м2 12 796 600
Этаж 20/22
СПБ, ЖК «Юнтолово»
Беговая
30 мин.
Строится
3-комн. квартира 53,08 м2 10 957 856
Этаж 1/22
СПБ, ЖК «Юнтолово»
Беговая
30 мин.
Строится
Посмотреть 48 квартир в ЖК «Юнтолово»
4-комн. квартира 63,30 м2 15 714 360
Этаж 1/22
СПБ, ЖК «Юнтолово»
Беговая
30 мин.
Строится
4-комн. квартира 63,41 м2 15 897 940
Этаж 13/22
СПБ, ЖК «Юнтолово»
Беговая
30 мин.
Строится
4-комн. квартира 64,31 м2 16 103 652
Этаж 2/22
СПБ, ЖК «Юнтолово»
Беговая
30 мин.
Строится
4-комн. квартира 64,55 м2 16 473 460
Этаж 4/22
СПБ, ЖК «Юнтолово»
Беговая
30 мин.
Строится
Посмотреть 28 квартир в ЖК «Юнтолово»

Скидки и спецпредложения от застройщиков

ЖК «Юнтолово» на карте

Выгодные предложения на новостройки

Отзывы о ЖК «Юнтолово»

Самый полезный отзыв
M
25 декабря 2017
Оценка:
Экология
Расположение
Транспортная доступность
Далеко, конечно. Но зато зеленая зона рядом. И не просто лес, а заказник.
Ответить
Полезный отзыв?
Самый новый отзыв
КЗ
02 декабря
Оценка:
В заказнике у Юнтолово такая красивая осень была. Сделали с семьёй фотосессию, фото огонь, как снег выпадет планируем повторить. Локация выигрышная у нас. Рядом и лес и причал Ю, без промзон. ЗСД рядом, но не слышно совсем — зато до центра 25 минут. А еще нравится, какой контингент собрался в ЖК. Все добродушные, активные, удалось даже найти соседей со схожими интересами, вместе бегаем и катаемся на велосипедах.
Ответить
Полезный отзыв?
Добавьте отзыв, заполнив личные данные, или сначала войдите на сайт, тогда информация будет автоматически взята из личного профиля.
Оценка*