Переверните экран
Поиск бизнес центров

Найдите современный офис в деловых районах Санкт-Петербурга

Найдите современный офис в деловых районах Санкт-Петербурга

Перейти к поиску
Новостройки Квартиры Ипотека Медиа О проекте Контакты Реклама на сайте Vk Youtube Telegram Дзен Продавцы и застройщики Коммерческие помещения Квартиры на карте Эксперты и авторы Машиноместа Акции от застройщиков Банки и программы Апартаменты Новостройки на карте 4-комнатные и более Готовые новостройки 3-комнатные Военная ипотека Покупателю Новостройки Санкт-Петербурга Видеообзор новостроек Семейная ипотека Аналитика рынка Панорамы новостроек 1-комнатные Субсидированная застройщиком Мнение эксперта Студии Ипотечный калькулятор Новости недвижимости Новостройки Ленинградской области IT-ипотека Квартиры со скидками до 25% Новостройки премиум-класса Новостройки бизнес-класса Дома и коттеджи Бизнес-центры Бизнес-центры в Санкт-Петербурге Бизнес-центры рядом с метро Строящиеся бизнес-центры Бизнес-центры класса A
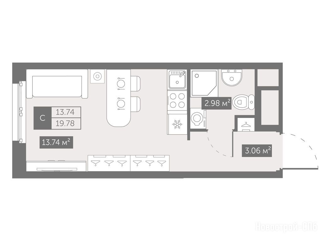
помещение-студия, 19.78 м2, 3 этаж
Срок сдачи 2 квартал 2026 года
4 438 335 
6 340 479
224 385 2
обновлено 5 декабря

Описание помещения-студии

Застройщик
Срок ГК
2 квартал 2026 года
Стадия строительства
отделка фасада и внутренние работы
Тип проекта
Общая площадь
19.78 м2
Жилая площадь
13.74 м2
Площадь кухни
5.00 м2
Этаж
3 / 18
Отделка
нет

Расположение помещения-студии

Локация
Метро
Дом
3.1
Адрес
Октябрьская набережная, 40А

Способы покупки

Особенности

Продается помещение-студия в новостройке «Zoom на Неве» (Зум на Неве) по адресу Санкт-Петербург, Невский, Октябрьская набережная, 40А. Общая площадь помещения - 19.78 кв. м. Тип проекта, по которому построен дом — Кирпичный, компания-застройщик — ГК ФСК. Стоимость помещения — 4 438 335 руб. Способы оплаты можно уточнить у продавца. Срок сдачи — 2 квартал 2026. Более подробная информация по телефону.
Инфоцентр новостроек
Инфоцентр новостроек
+7 (812) 424-49-09
Время работы 9:00 — 21:00

Похожие помещения в «Zoom на Неве»

4 этаж
из 18 2 квартал 2026
Санкт-Петербург, Санкт-Петербург
Улица Дыбенко
11 мин.
3.1
Корпус
нет
Отделка
2.70 м
Потолки
«Zoom на Неве» (Зум на Неве)
4 438 335 6 340 479
Россельхозбанк, Банк Санкт-Петербург, Промсвязьбанк, Металлинвестбанк, Уралсиб, ДОМ.РФ, Московский Кредитный Банк, Совкомбанк, Сургутнефтегазбанк (СНГБ), ВТБ
6.00%
Ставка
20.01%
Первый взнос
от 26 610 /мес.
Все варианты
5 этаж
из 18 2 квартал 2026
Санкт-Петербург, Санкт-Петербург
Улица Дыбенко
11 мин.
3.1
Корпус
нет
Отделка
2.70 м
Потолки
«Zoom на Неве» (Зум на Неве)
4 466 027 6 380 039
Россельхозбанк, Банк Санкт-Петербург, Промсвязьбанк, Металлинвестбанк, Уралсиб, ДОМ.РФ, Московский Кредитный Банк, Совкомбанк, Сургутнефтегазбанк (СНГБ), ВТБ
6.00%
Ставка
20.01%
Первый взнос
от 26 776 /мес.
Все варианты
6 этаж
из 18 2 квартал 2026
Санкт-Петербург, Санкт-Петербург
Улица Дыбенко
11 мин.
3.1
Корпус
нет
Отделка
2.70 м
Потолки
«Zoom на Неве» (Зум на Неве)
4 466 027 6 380 039
Россельхозбанк, Банк Санкт-Петербург, Промсвязьбанк, Металлинвестбанк, Уралсиб, ДОМ.РФ, Московский Кредитный Банк, Совкомбанк, Сургутнефтегазбанк (СНГБ), ВТБ
6.00%
Ставка
20.01%
Первый взнос
от 26 776 /мес.
Все варианты
9 этаж
из 18 2 квартал 2026
Санкт-Петербург, Санкт-Петербург
Улица Дыбенко
11 мин.
3.1
Корпус
нет
Отделка
2.70 м
Потолки
«Zoom на Неве» (Зум на Неве)
4 507 565 6 439 379
Россельхозбанк, Банк Санкт-Петербург, Промсвязьбанк, Металлинвестбанк, Уралсиб, ДОМ.РФ, Московский Кредитный Банк, Совкомбанк, Сургутнефтегазбанк (СНГБ), ВТБ
6.00%
Ставка
20.01%
Первый взнос
от 27 025 /мес.
Все варианты
10 этаж
из 18 2 квартал 2026
Санкт-Петербург, Санкт-Петербург
Улица Дыбенко
11 мин.
3.1
Корпус
нет
Отделка
2.70 м
Потолки
«Zoom на Неве» (Зум на Неве)
4 507 565 6 439 379
Россельхозбанк, Банк Санкт-Петербург, Промсвязьбанк, Металлинвестбанк, Уралсиб, ДОМ.РФ, Московский Кредитный Банк, Совкомбанк, Сургутнефтегазбанк (СНГБ), ВТБ
6.00%
Ставка
20.01%
Первый взнос
от 27 025 /мес.
Все варианты
Посмотреть все спецпредложения
помещение-студия 18,52 м2 4 212 004
Этаж 9/18
СПБ, «Zoom на Неве» (Зум на Неве)
Улица Дыбенко
11 мин.
Строится
помещение-студия 18,65 м2 4 241 570
Этаж 10/18
СПБ, «Zoom на Неве» (Зум на Неве)
Улица Дыбенко
11 мин.
Строится
помещение-студия 19,78 м2 4 438 335
Этаж 4/18
СПБ, «Zoom на Неве» (Зум на Неве)
Улица Дыбенко
11 мин.
Строится
помещение-студия 20,62 м2 5 130 565
Этаж 12/18
СПБ, «Zoom на Неве» (Зум на Неве)
Улица Дыбенко
11 мин.
Строится
Посмотреть 358 помещений в «Zoom на Неве»
1-комн. помещение 32,28 м2 6 888 391
Этаж 3/18
СПБ, «Zoom на Неве» (Зум на Неве)
Улица Дыбенко
11 мин.
Строится
1-комн. помещение 32,81 м2 6 840 721
Этаж 2/18
СПБ, «Zoom на Неве» (Зум на Неве)
Улица Дыбенко
11 мин.
Строится
1-комн. помещение 33,81 м2 6 575 876
Этаж 12/18
СПБ, «Zoom на Неве» (Зум на Неве)
Улица Дыбенко
11 мин.
Строится
1-комн. помещение 34,78 м2 5 727 397
Этаж 5/18
СПБ, «Zoom на Неве» (Зум на Неве)
Улица Дыбенко
11 мин.
Строится
Посмотреть 164 помещения в «Zoom на Неве»
2-комн. помещение 47,74 м2 7 557 481
Этаж 9/18
СПБ, «Zoom на Неве» (Зум на Неве)
Улица Дыбенко
11 мин.
Строится
2-комн. помещение 50,03 м2 10 023 010
Этаж 3/18
СПБ, «Zoom на Неве» (Зум на Неве)
Улица Дыбенко
11 мин.
Строится
2-комн. помещение 51,75 м2 7 824 600
Этаж 3/18
СПБ, «Zoom на Неве» (Зум на Неве)
Улица Дыбенко
11 мин.
Строится
2-комн. помещение 54,43 м2 9 591 927
Этаж 3/18
СПБ, «Zoom на Неве» (Зум на Неве)
Улица Дыбенко
11 мин.
Строится
Посмотреть 81 помещение в «Zoom на Неве»
3-комн. помещение 71,60 м2 11 302 060
Этаж 3/18
СПБ, «Zoom на Неве» (Зум на Неве)
Улица Дыбенко
11 мин.
Строится
3-комн. помещение 72,74 м2 12 513 099
Этаж 3/14
СПБ, «Zoom на Неве» (Зум на Неве)
Улица Дыбенко
11 мин.
Строится
3-комн. помещение 73,10 м2 12 216 838
Этаж 2/14
СПБ, «Zoom на Неве» (Зум на Неве)
Улица Дыбенко
11 мин.
Строится
3-комн. помещение 74,08 м2 10 360 829
Этаж 3/18
СПБ, «Zoom на Неве» (Зум на Неве)
Улица Дыбенко
11 мин.
Строится
Посмотреть 58 помещений в «Zoom на Неве»
Этаж 3/18
СПБ, «Zoom на Неве» (Зум на Неве)
Улица Дыбенко
11 мин.
Строится
Этаж 2/18
СПБ, «Zoom на Неве» (Зум на Неве)
Улица Дыбенко
11 мин.
Строится
4-комн. помещение 108,40 м2 15 179 794
Этаж 3/18
СПБ, «Zoom на Неве» (Зум на Неве)
Улица Дыбенко
11 мин.
Строится
4-комн. помещение 108,76 м2 14 697 283
Этаж 2/18
СПБ, «Zoom на Неве» (Зум на Неве)
Улица Дыбенко
11 мин.
Строится
Посмотреть 27 помещений в «Zoom на Неве»

Скидки и спецпредложения от застройщиков

«Zoom на Неве» (Зум на Неве) на карте

Выгодные предложения на новостройки

Отзывы о «Zoom на Неве»

Самый полезный отзыв
АС
25 марта
Оценка:
Транспортная доступность
Планировки
Способы покупки
Внешний вид фасада
Говорят, что метро недалеко, и это, конечно, удобно. Новый район выглядит современно, есть свои нюансы. В квартире открываются хорошие виды, приятно. Однако стоит учитывать, что рядом проходит дорога, шум и пыль могут мешать спокойствию.
Ответить
Полезный отзыв?
Самый новый отзыв
ДА
27 октября
Оценка:
Здесь очень развитая инфраструктура и близость к центру, что делает жизнь удобнее. Цена тоже адекватная, эти факты говорят в пользу покупки. Из минусов — шумная магистраль рядом и статус жилья как апартаменты, но, в целом, плюсов больше
Ответить
Полезный отзыв?
Добавьте отзыв, заполнив личные данные, или сначала войдите на сайт, тогда информация будет автоматически взята из личного профиля.
Оценка*