Переверните экран
Новостройки Квартиры Ипотека Медиа О проекте Контакты Реклама на сайте Vk Youtube Telegram Дзен Продавцы и застройщики Коммерческие помещения Квартиры на карте Эксперты и авторы Машиноместа Акции от застройщиков Банки и программы Апартаменты Новостройки на карте 4-комнатные и более Готовые новостройки 3-комнатные Военная ипотека Покупателю Новостройки Санкт-Петербурга Видеообзор новостроек Семейная ипотека Аналитика рынка Панорамы новостроек 1-комнатные Субсидированная застройщиком Мнение эксперта Студии Ипотечный калькулятор Новости недвижимости Новостройки Ленинградской области IT-ипотека Квартиры со скидками до 25% Новостройки премиум-класса Новостройки бизнес-класса Дома и коттеджи Бизнес-центры Бизнес-центры в Санкт-Петербурге Бизнес-центры рядом с метро Строящиеся бизнес-центры Бизнес-центры класса A
Данное предложение на 16.12.2025 неактуально. Пожалуйста, ознакомьтесь с другими похожими предложениями в YE’S LEADER (Yes Лидер) .
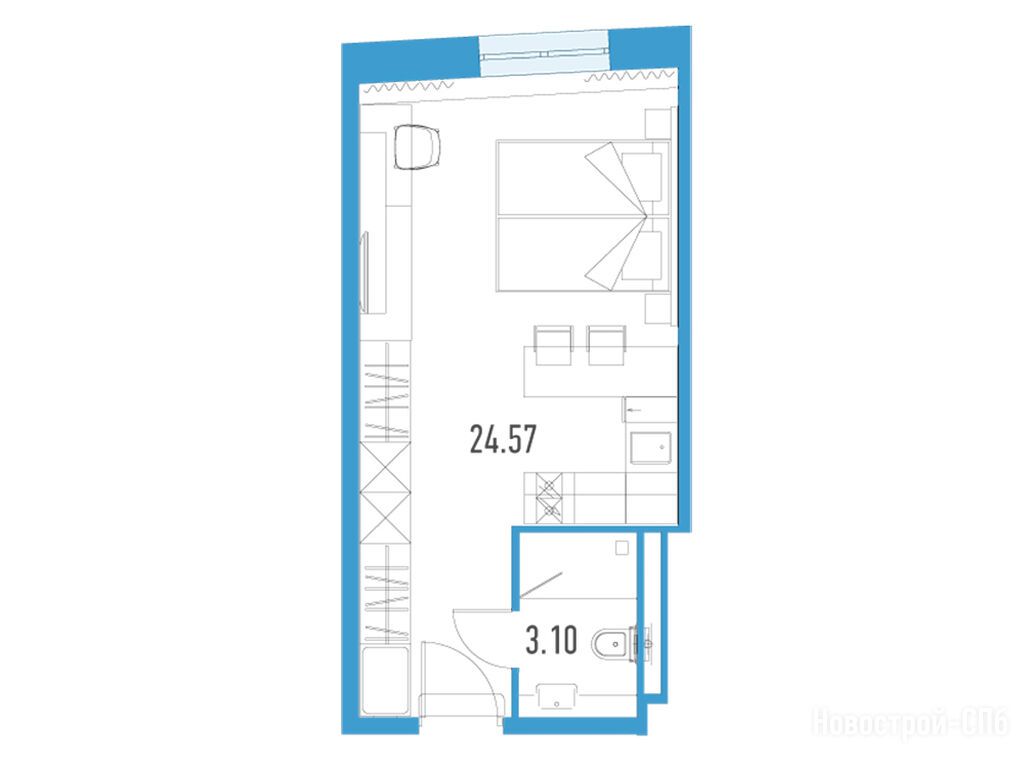
помещение-студия, 27.67 м2, 8 этаж
Срок сдачи 2 квартал 2026 года
7 055 850 
255 000 2
обновлено 24 сентября

Описание помещения-студии

Новостройка
Застройщик
Лидер Групп ООО «БТК»
Срок ГК
2 квартал 2026 года
Стадия строительства
Общая площадь
27.67 м2
Этаж
8 / 24
Отделка
чистовая
Грузовой лифт
есть

Расположение помещения-студии

Локация
Дом
1
Адрес
пр. Ленинский, д. 153, участок 1

Способы покупки

Особенности

Продается помещение-студия в новостройке YE’S LEADER (Yes Лидер) по адресу Санкт-Петербург, Московский, пр. Ленинский, д. 153, участок 1. Общая площадь помещения - 27.67 кв. м. Тип проекта, по которому построен дом — Монолитно-кирпичный, компания-застройщик — Лидер Групп, ООО «БТК». Стоимость помещения — 7 055 850 руб. Способы оплаты можно уточнить у продавца. Срок сдачи — 2 квартал 2026. Более подробная информация по телефону.
Инфоцентр новостроек
Инфоцентр новостроек
+7 (812) 424-49-09
Время работы 9:00 — 21:00
Посмотреть все спецпредложения
Этаж 9/24
СПБ, YE’S LEADER (Yes Лидер)
Московская
19 мин.
Строится
Этаж 19/24
СПБ, YE’S LEADER (Yes Лидер)
Московская
19 мин.
Строится
Этаж 14/24
СПБ, YE’S LEADER (Yes Лидер)
Московская
19 мин.
Строится
Этаж 18/24
СПБ, YE’S LEADER (Yes Лидер)
Московская
19 мин.
Строится
Посмотреть 108 помещений в YE’S LEADER
Этаж 8/24
СПБ, YE’S LEADER (Yes Лидер)
Московская
19 мин.
Строится
Этаж 10/24
СПБ, YE’S LEADER (Yes Лидер)
Московская
19 мин.
Строится
Этаж 15/24
СПБ, YE’S LEADER (Yes Лидер)
Московская
19 мин.
Строится
Посмотреть 8 помещений в YE’S LEADER

Скидки и спецпредложения от застройщиков

YE’S LEADER (Yes Лидер) на карте

Выгодные предложения на новостройки

Самый полезный отзыв
П
30 июня 2022
Оценка:
До 30 июня действует скидка 10 000 руб с каждого кв. метра. Хорошее предложение, жаль только что если покупать в ипотеку, то скидки нет.
Ответить
Полезный отзыв?
Самый новый отзыв
П
29 сентября
Оценка:
Станция метро находится совсем близко, до центра города тоже недалеко, а до аэропорта и Экспофорума легко добраться. Это будет очень удобно для тех, кто планирует арендовать здесь квартиры.
Ответить
Полезный отзыв?
Добавьте отзыв, заполнив личные данные, или сначала войдите на сайт, тогда информация будет автоматически взята из личного профиля.
Оценка*