Переверните экран
Новостройки Квартиры Ипотека Медиа О проекте Контакты Реклама на сайте Vk Youtube Telegram Дзен Продавцы и застройщики Коммерческие помещения Квартиры на карте Эксперты и авторы Машиноместа Акции от застройщиков Банки и программы Апартаменты Новостройки на карте 4-комнатные и более Готовые новостройки 3-комнатные Военная ипотека Покупателю Новостройки Санкт-Петербурга Видеообзор новостроек Семейная ипотека Аналитика рынка Панорамы новостроек 1-комнатные Субсидированная застройщиком Мнение эксперта Студии Ипотечный калькулятор Новости недвижимости Новостройки Ленинградской области IT-ипотека Квартиры со скидками до 25% Новостройки премиум-класса Новостройки бизнес-класса Дома и коттеджи Бизнес-центры Бизнес-центры в Санкт-Петербурге Бизнес-центры рядом с метро Строящиеся бизнес-центры Бизнес-центры класса A
Данное предложение на 16.12.2025 неактуально. Пожалуйста, ознакомьтесь с другими похожими предложениями в «Морская Ривьера» .
помещение-студия, 23.20 м2, 8 этаж
Сдан
13 206 600 
569 250 2
обновлено 17 сентября

Описание помещения-студии

Новостройка
Срок ГК
Дом сдан
Стадия строительства
выдача ключей + заселение
Тип проекта
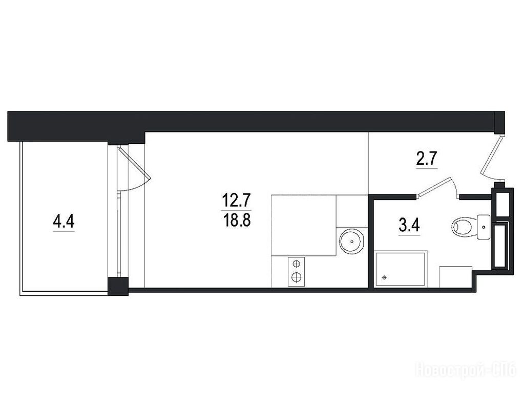
Общая площадь
23.20 м2
Этаж
8 / 13
Отделка
нет
Мебель
есть

Расположение помещения-студии

Локация
Ж/Д-станция
Дом
1
Адрес
г. Зеленогорск, Приморское шоссе, 570Л

Особенности

Продается помещение-студия в новостройке «Морская Ривьера» по адресу Санкт-Петербург, Курортный, г. Зеленогорск, Приморское шоссе, 570Л. Общая площадь помещения - 23.2 кв. м. Тип проекта, по которому построен дом — Монолит, компания-застройщик — Строительный холдинг «Сенатор». Стоимость помещения — 13 206 600 руб. Способы оплаты можно уточнить у продавца. Более подробная информация по телефону.
Инфоцентр новостроек
Инфоцентр новостроек
+7 (812) 424-49-09
Время работы 9:00 — 21:00
Посмотреть все спецпредложения

Скидки и спецпредложения от застройщиков

«Морская Ривьера» на карте

Выгодные предложения на новостройки

Отзывы о «Морская Ривьера»

Самый полезный отзыв
АК
25 марта
Оценка:
Планировки
Способы покупки
Двор, окружение
Расположение
Апартаменты просто замечательные, с хорошим свежим ремонтом. Заходишь и сразу чувствуется уют и комфорт. Во дворе есть бассейн с небесно-голубой водой. Он выглядит так привлекательно, невозможно не захотеть поплавать. Здорово будет расслабляться в жаркий день, фактически не выходя из дома.
Ответить
Полезный отзыв?
Самый новый отзыв
АВ
31 августа
Оценка:
Застройщик продумал всё до мелочей, начиная от красивых и функциональных планировок, заканчивая отличной инфраструктурой. Уже с нетерпением жду переезда
Ответить
Полезный отзыв?
Добавьте отзыв, заполнив личные данные, или сначала войдите на сайт, тогда информация будет автоматически взята из личного профиля.
Оценка*