Переверните экран
Поиск бизнес центров

Найдите современный офис в деловых районах Санкт-Петербурга

Найдите современный офис в деловых районах Санкт-Петербурга

Перейти к поиску
Новостройки Квартиры Ипотека Медиа О проекте Контакты Реклама на сайте Vk Youtube Telegram Дзен Продавцы и застройщики Коммерческие помещения Квартиры на карте Эксперты и авторы Машиноместа Акции от застройщиков Банки и программы Апартаменты Новостройки на карте 4-комнатные и более Готовые новостройки 3-комнатные Военная ипотека Покупателю Новостройки Санкт-Петербурга Видеообзор новостроек Семейная ипотека Аналитика рынка Панорамы новостроек 1-комнатные Субсидированная застройщиком Мнение эксперта Студии Ипотечный калькулятор Новости недвижимости Новостройки Ленинградской области ИТ-ипотека Квартиры со скидками до 25% Новостройки премиум-класса Новостройки бизнес-класса Дома и коттеджи Бизнес-центры Бизнес-центры в Санкт-Петербурге Бизнес-центры рядом с метро Строящиеся бизнес-центры Бизнес-центры класса A Ипотека со ставкой 0,1% Траншевая ипотека
Данное предложение на 04.04.2026 неактуально. Пожалуйста, ознакомьтесь с другими похожими предложениями в ЖК «Поинт Токсово» (Серебряный ручей) .
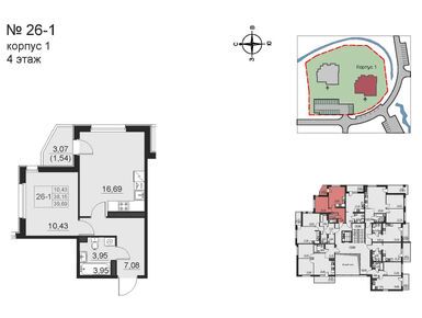
1-комн. квартира, 26.36 м2, 1 этаж
Срок сдачи 4 квартал 2027 года
7 908 000 
300 000 2
обновлено 17 февраля

Описание 1-комн. квартиры

Срок ГК
4 квартал 2027 года
Стадия строительства
Общая площадь
26.36 м2
Этаж
1 / 4
Отделка
чистовая

Расположение 1-комн. квартиры

Метро
Ж/Д-станция
Дом
1-2
Адрес
ЖК «Серебряный ручей»

Особенности

Продается однокомнатная квартира в новостройке ЖК «Серебряный ручей» (Point Токсово) по адресу Ленинградская область, Всеволожский район, ЖК «Серебряный ручей». Общая площадь квартиры - 26.36 кв. м. Тип проекта, по которому построен дом — Монолитно-кирпичный, компания-застройщик — ООО «СЗ Серебряный ручей 2», ГК Point. Стоимость квартиры — 7 908 000 руб. Способы оплаты можно уточнить у продавца. Срок сдачи — 3 квартал 2026. Более подробная информация по телефону.
Время работы 9:00 — 21:00
Выбирайте квартиру в ЖК «Поинт Токсово» (Серебряный ручей) по ценам от застройщика
студия 26,36 м2 7 938 000
Этаж 1/4
ЛО, ЖК «Поинт Токсово» (Серебряный ручей)
Девяткино
30 мин.
Строится
студия 28,39 м2 8 547 000
Этаж 4/4
ЛО, ЖК «Поинт Токсово» (Серебряный ручей)
Девяткино
30 мин.
Строится
студия 28,46 м2 8 568 000
Этаж 3/4
ЛО, ЖК «Поинт Токсово» (Серебряный ручей)
Девяткино
30 мин.
Строится
студия 28,63 м2 8 619 000
Этаж 2/4
ЛО, ЖК «Поинт Токсово» (Серебряный ручей)
Девяткино
30 мин.
Строится
Посмотреть 11 квартир в ЖК «Поинт Токсово»
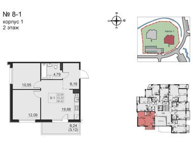
1-комн. квартира 38,62 м2 11 616 000
Этаж 1/4
ЛО, ЖК «Поинт Токсово» (Серебряный ручей)
Девяткино
30 мин.
Строится
Этаж 4/4
ЛО, ЖК «Поинт Токсово» (Серебряный ручей)
Девяткино
30 мин.
Строится
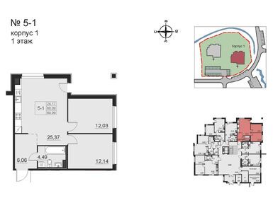
1-комн. квартира 40,00 м2 12 030 000
Этаж 2/4
ЛО, ЖК «Поинт Токсово» (Серебряный ручей)
Девяткино
30 мин.
Строится
1-комн. квартира 40,68 м2 12 234 000
Этаж 2/4
ЛО, ЖК «Поинт Токсово» (Серебряный ручей)
Девяткино
30 мин.
Строится
Посмотреть 7 квартир в ЖК «Поинт Токсово»
Этаж 3/4
ЛО, ЖК «Поинт Токсово» (Серебряный ручей)
Девяткино
30 мин.
Строится
Этаж 2/4
ЛО, ЖК «Поинт Токсово» (Серебряный ручей)
Девяткино
30 мин.
Строится
Этаж 1/4
ЛО, ЖК «Поинт Токсово» (Серебряный ручей)
Девяткино
30 мин.
Строится

Скидки и спецпредложения от застройщиков

ЖК «Поинт Токсово» (Серебряный ручей) на карте

Выгодные предложения на новостройки

Отзывы о ЖК «Поинт Токсово»

Оставить отзыв

Добавьте отзыв, заполнив личные данные, или сначала войдите на сайт, тогда информация будет автоматически взята из личного профиля.
Оценка*