Переверните экран
Новостройки Квартиры Ипотека Медиа О проекте Контакты Реклама на сайте Vk Youtube Telegram Дзен Продавцы и застройщики Коммерческие помещения Квартиры на карте Эксперты и авторы Машиноместа Акции от застройщиков Банки и программы Апартаменты Новостройки на карте 4-комнатные и более Готовые новостройки 3-комнатные Военная ипотека Покупателю Новостройки Санкт-Петербурга Видеообзор новостроек Семейная ипотека Аналитика рынка Панорамы новостроек 1-комнатные Субсидированная застройщиком Мнение эксперта Студии Ипотечный калькулятор Новости недвижимости Новостройки Ленинградской области IT-ипотека Квартиры со скидками до 25% Новостройки премиум-класса Новостройки бизнес-класса Дома и коттеджи Бизнес-центры Бизнес-центры в Санкт-Петербурге Бизнес-центры рядом с метро Строящиеся бизнес-центры Бизнес-центры класса A
Данное предложение на 16.12.2025 неактуально. Пожалуйста, ознакомьтесь с другими похожими предложениями в ЖК «Новая история» .
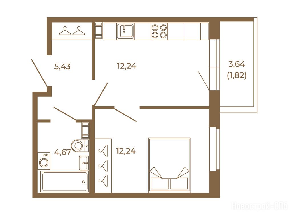
1-комн. квартира, 36.40 м2, 1 этаж
Срок сдачи 4 квартал 2025 года
6 188 000 
170 000 2
обновлено 3 декабря

Описание 1-комн. квартиры

Новостройка
Застройщик
Срок ГК
4 квартал 2025 года
Стадия строительства
отделка фасада и внутренние работы
Общая площадь
36.40 м2
Этаж
1 / 4
Отделка
под чистовую
Грузовой лифт
есть

Расположение 1-комн. квартиры

Метро
Дом
8.1
Адрес
г. Сертолово, ул. Златоглавая, корпус 8.1

Особенности

Продается однокомнатная квартира в новостройке ЖК «Новая история» по адресу Ленинградская область, Всеволожский район, г. Сертолово, ул. Златоглавая, корпус 8.1. Общая площадь квартиры - 36.4 кв. м. Тип проекта, по которому построен дом — Монолитно-кирпичный, компания-застройщик — Таймс. Стоимость квартиры — 6 188 000 руб. Способы оплаты можно уточнить у продавца. Срок сдачи — 4 квартал 2025. Более подробная информация по телефону.
Инфоцентр новостроек
Инфоцентр новостроек
+7 (812) 424-49-09
Время работы 9:00 — 21:00
Посмотреть все спецпредложения

Скидки и спецпредложения от застройщиков

ЖК «Новая история» на карте

Выгодные предложения на новостройки

Отзывы о ЖК «Новая история»

Самый полезный отзыв
ИМ
28 февраля
Оценка:
Социальная инфраструктура
Планировки
Способы покупки
Двор, окружение
Расположение
Вокруг много зелени, и свежий воздух - настоящая находка, особенно с учетом близости леса. Для удобства проживания предусмотрено много необходимых услуг. Здесь есть МФЦ, два пункта выдачи Озон и один пункт выдачи Вайлдбериз.
Ответить
Полезный отзыв?
Самый новый отзыв
О
27 октября
Оценка:
Квартиры планируют сдать уже в этом году. Нравится, что здесь много света и зелени - важно для моей жизни.
Ответить
Полезный отзыв?
Добавьте отзыв, заполнив личные данные, или сначала войдите на сайт, тогда информация будет автоматически взята из личного профиля.
Оценка*