Переверните экран
Поиск бизнес центров

Найдите современный офис в деловых районах Санкт-Петербурга

Найдите современный офис в деловых районах Санкт-Петербурга

Перейти к поиску
Новостройки Квартиры Ипотека Медиа О проекте Контакты Реклама на сайте Vk Youtube Telegram Дзен Продавцы и застройщики Коммерческие помещения Квартиры на карте Эксперты и авторы Машиноместа Акции от застройщиков Банки и программы Апартаменты Новостройки на карте 4-комнатные и более Готовые новостройки 3-комнатные Военная ипотека Покупателю Новостройки Санкт-Петербурга Видеообзор новостроек Семейная ипотека Аналитика рынка Панорамы новостроек 1-комнатные Субсидированная застройщиком Мнение эксперта Студии Ипотечный калькулятор Новости недвижимости Новостройки Ленинградской области ИТ-ипотека Квартиры со скидками до 25% Новостройки премиум-класса Новостройки бизнес-класса Дома и коттеджи Коттеджные поселки в Санкт-Петербурге Коттеджные поселки в Ленинградской обл Готовые коттеджные поселки Строящиеся коттеджные поселки Коттеджные поселки у леса Коттеджные поселки у водоема Коттеджные поселки в ипотеку Бизнес-центры Коттеджи Ипотека со ставкой 0,1% Траншевая ипотека
1-комн. квартира, 31.34 м2, 8 этаж
Срок сдачи 1 квартал 2028 года
13 283 349 
423 846 2
обновлено 3 мая

Описание 1-комн. квартиры

Новостройка
Срок ГК
1 квартал 2028 года
Стадия строительства
монтаж верхних этажей
Тип проекта
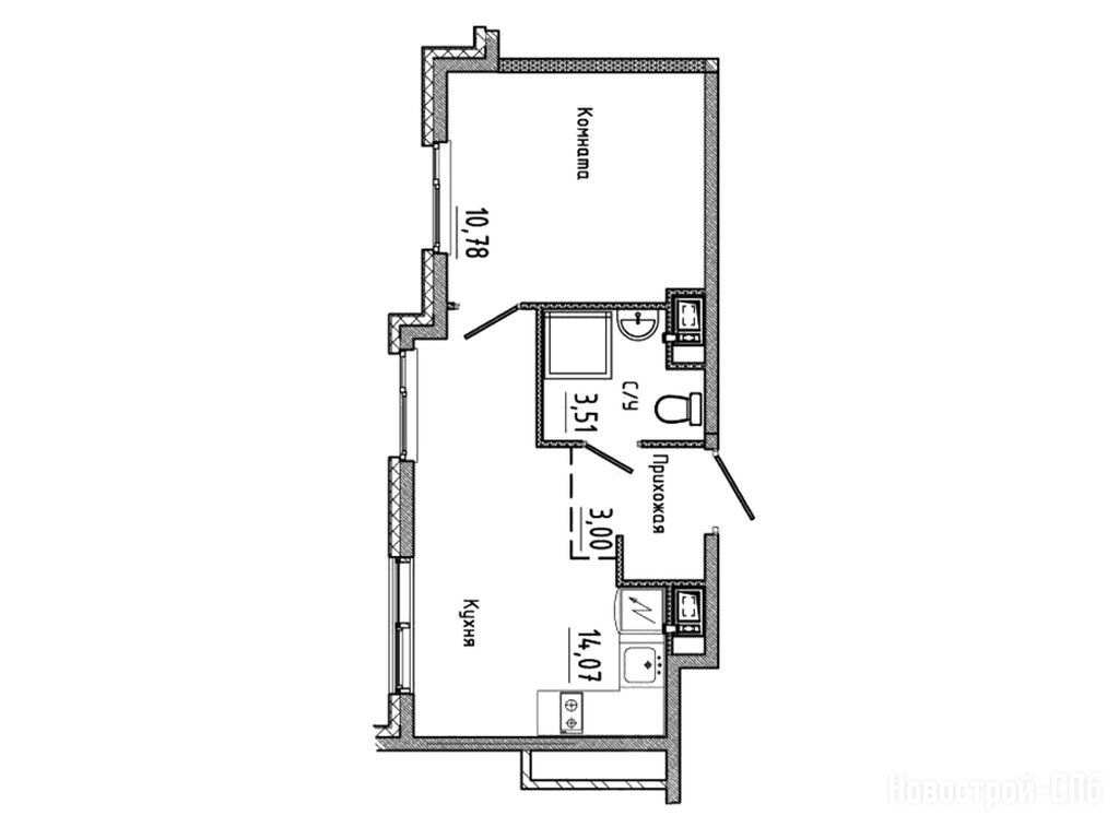
Общая площадь
31.34 м2
Жилая площадь
10.77 м2
Этаж
8 / 13
Грузовой лифт
есть

Расположение 1-комн. квартиры

Локация
Метро
Дом
Жизнь
Адрес
ул. Фучика, д. 17В

Способы покупки

Особенности

Продается однокомнатная квартира в новостройке ЖК «Нигилист» по адресу Санкт-Петербург, Фрунзенский, ул. Фучика, д. 17В. Общая площадь квартиры - 31.34 кв. м. Тип проекта, по которому построен дом — Монолит, компания-застройщик — Bau City Development (Бау Сити Девелопмент). Стоимость квартиры — 13 283 349 руб. Способы оплаты можно уточнить у продавца. Срок сдачи — 1 квартал 2028. Более подробная информация по телефону.
Инфоцентр новостроек
Инфоцентр новостроек
Время работы 9:00 — 21:00
Выбирайте квартиры и помещения в ЖК «Нигилист» по ценам от застройщика

Похожие квартиры в ЖК «Нигилист»

7 этаж
из 13 1 квартал 2028
Санкт-Петербург, Санкт-Петербург
Бухарестская
10 мин.
Жизнь
Корпус
нет данных
Отделка
2.74 м
Потолки
ЖК «Нигилист»
13 208 425
ДОМ.РФ
6.00%
Ставка
20.01%
Первый взнос
от 79 191 /мес.
Все варианты
1-комн. квартира 27,22 м2 10 436 396
Этаж 3/13
СПБ, ЖК «Нигилист»
Бухарестская
10 мин.
Строится
1-комн. квартира 27,24 м2 10 507 289
Этаж 4/13
СПБ, ЖК «Нигилист»
Бухарестская
10 мин.
Строится
1-комн. квартира 27,28 м2 10 881 847
Этаж 8/13
СПБ, ЖК «Нигилист»
Бухарестская
10 мин.
Строится
1-комн. квартира 27,30 м2 10 569 867
Этаж 3/13
СПБ, ЖК «Нигилист»
Бухарестская
10 мин.
Строится
Посмотреть 43 квартиры в ЖК «Нигилист»
2-комн. квартира 47,19 м2 18 691 789
Этаж 11/13
СПБ, ЖК «Нигилист»
Бухарестская
10 мин.
Строится
2-комн. квартира 47,38 м2 19 989 973
Этаж 10/13
СПБ, ЖК «Нигилист»
Бухарестская
10 мин.
Строится
2-комн. квартира 48,15 м2 20 103 853
Этаж 6/13
СПБ, ЖК «Нигилист»
Бухарестская
10 мин.
Строится
2-комн. квартира 48,64 м2 18 198 973
Этаж 2/13
СПБ, ЖК «Нигилист»
Бухарестская
10 мин.
Строится
Посмотреть 43 квартиры в ЖК «Нигилист»
1-комн. помещение 17,59 м2 6 150 933
Этаж 11/13
СПБ, ЖК «Нигилист»
Бухарестская
10 мин.
Строится
1-комн. помещение 17,63 м2 6 185 505
Этаж 11/13
СПБ, ЖК «Нигилист»
Бухарестская
10 мин.
Строится
1-комн. помещение 17,70 м2 6 751 215
Этаж 8/13
СПБ, ЖК «Нигилист»
Бухарестская
10 мин.
Строится
1-комн. помещение 17,74 м2 5 676 818
Этаж 10/13
СПБ, ЖК «Нигилист»
Бухарестская
10 мин.
Строится
Посмотреть 178 помещений в ЖК «Нигилист»
2-комн. помещение 44,03 м2 13 980 098
Этаж 4/13
СПБ, ЖК «Нигилист»
Бухарестская
10 мин.
Строится
2-комн. помещение 44,30 м2 13 395 581
Этаж 2/13
СПБ, ЖК «Нигилист»
Бухарестская
10 мин.
Строится
2-комн. помещение 45,57 м2 16 046 615
Этаж 7/13
СПБ, ЖК «Нигилист»
Бухарестская
10 мин.
Строится
2-комн. помещение 46,85 м2 15 534 365
Этаж 7/13
СПБ, ЖК «Нигилист»
Бухарестская
10 мин.
Строится
Посмотреть 36 помещений в ЖК «Нигилист»

Скидки и спецпредложения от застройщиков

ЖК «Нигилист» на карте

Выгодные предложения на новостройки

Отзывы о ЖК «Нигилист»

Самый полезный отзыв
О
30 сентября 2025
Оценка:
Комплекс гармонично вписывается в архитектурный облик района и не добавляет высотных зданий, как это часто практикуется в последнее время. Сохранение исторической эстетики и характерного стиля района имеет большое значение!
Ответить
Самый новый отзыв
С
15 января
Оценка:
Достоинства
Планировки
Способы покупки
Внешний вид фасада
Когда смотрел квартиры, мне понравился сам формат, современный, открытый, с акцентом на минимализм. Практически никто из будущих жильцов не жалуется на унылые подъезды и типовые решения, что уже приятно. Но многие говорят, что инфраструктуре ещё расти и расти
Ответить

Оставить отзыв

Добавьте отзыв, заполнив личные данные, или сначала войдите на сайт, тогда информация будет автоматически взята из личного профиля.
Оценка*