Переверните экран
Поиск домов и коттеджей

Найдите идеальный дом или коттедж в Санкт-Петербурге и области

Найдите идеальный дом или коттедж в Санкт-Петербурге и области

Перейти к поиску
Новостройки Квартиры Ипотека Медиа О проекте Контакты Реклама на сайте Vk Youtube Telegram Дзен Продавцы и застройщики Коммерческие помещения Квартиры на карте Эксперты и авторы Машиноместа Акции от застройщиков Банки и программы Апартаменты Новостройки на карте 4-комнатные и более Готовые новостройки 3-комнатные Военная ипотека Покупателю Новостройки Санкт-Петербурга Видеообзор новостроек Семейная ипотека Аналитика рынка Панорамы новостроек 1-комнатные Субсидированная застройщиком Мнение эксперта Студии Ипотечный калькулятор Новости недвижимости Новостройки Ленинградской области ИТ-ипотека Квартиры со скидками до 25% Новостройки премиум-класса Новостройки бизнес-класса Дома и коттеджи Бизнес-центры Бизнес-центры в Санкт-Петербурге Бизнес-центры рядом с метро Строящиеся бизнес-центры Бизнес-центры класса A Ипотека со ставкой 0,1% Траншевая ипотека
1-комн. квартира, 37.06 м2, 3 этаж
Срок сдачи 2 квартал 2030 года
25 849 350 
697 500 2
обновлено 4 апреля

Описание 1-комн. квартиры

Новостройка
Срок ГК
2 квартал 2030 года
Стадия строительства
реконструкция
Общая площадь
37.06 м2
Жилая площадь
15.40 м2
Площадь кухни
12.94 м2
Этаж
3 / 9
Балкон
лоджия
Отделка
чистовая
Грузовой лифт
есть

Расположение 1-комн. квартиры

Дом
1оч. к.2
Адрес
Рижский проспект, 26Б, корпус 1

Особенности

Продается однокомнатная квартира в новостройке ЖК «Кристалл Холл» по адресу Санкт-Петербург, Адмиралтейский, Рижский проспект, 26Б, корпус 1. Общая площадь квартиры - 37.06 кв. м. Тип проекта, по которому построен дом — Монолитно-кирпичный, компания-застройщик — Setl Group (Сэтл Групп), СЗ «Рижский 26». Стоимость квартиры — 25 849 350 руб. Способы оплаты можно уточнить у продавца. Срок сдачи — 2 квартал 2030. Более подробная информация по телефону.
Инфоцентр новостроек
Инфоцентр новостроек
Время работы 9:00 — 21:00
Выбирайте квартиру в ЖК «Кристалл Холл» по ценам от застройщика
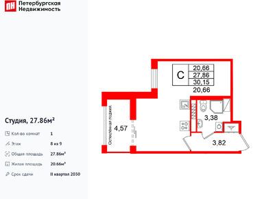
студия 24,63 м2 19 396 125
Этаж 9/9 лоджия
СПБ, ЖК «Кристалл Холл»
Балтийская
13 мин.
Строится
Этаж 2/9 лоджия
СПБ, ЖК «Кристалл Холл»
Балтийская
13 мин.
Строится
Этаж 9/9 лоджия
СПБ, ЖК «Кристалл Холл»
Балтийская
13 мин.
Строится
Этаж 7/9 лоджия
СПБ, ЖК «Кристалл Холл»
Балтийская
13 мин.
Строится
Посмотреть 6 квартир в ЖК «Кристалл Холл»
Этаж 4/9 лоджия
СПБ, ЖК «Кристалл Холл»
Балтийская
13 мин.
Строится
Этаж 9/9 лоджия
СПБ, ЖК «Кристалл Холл»
Балтийская
13 мин.
Строится
1-комн. квартира 35,73 м2 24 600 105
Этаж 2/9 лоджия
СПБ, ЖК «Кристалл Холл»
Балтийская
13 мин.
Строится
Этаж 7/9 лоджия
СПБ, ЖК «Кристалл Холл»
Балтийская
13 мин.
Строится
Посмотреть 27 квартир в ЖК «Кристалл Холл»
Этаж 6/9 лоджия
СПБ, ЖК «Кристалл Холл»
Балтийская
13 мин.
Строится
2-комн. квартира 56,39 м2 33 495 660
Этаж 5/9 лоджия
СПБ, ЖК «Кристалл Холл»
Балтийская
13 мин.
Строится
Этаж 2/9 лоджия
СПБ, ЖК «Кристалл Холл»
Балтийская
13 мин.
Строится
Этаж 2/9 лоджия
СПБ, ЖК «Кристалл Холл»
Балтийская
13 мин.
Строится
Посмотреть 11 квартир в ЖК «Кристалл Холл»
Этаж 6/9 лоджия
СПБ, ЖК «Кристалл Холл»
Балтийская
13 мин.
Строится
Этаж 6/9 лоджия
СПБ, ЖК «Кристалл Холл»
Балтийская
13 мин.
Строится
Этаж 9/9 лоджия
СПБ, ЖК «Кристалл Холл»
Балтийская
13 мин.
Строится

Скидки и спецпредложения от застройщиков

ЖК «Кристалл Холл» на карте

Выгодные предложения на новостройки

Отзывы о ЖК «Кристалл Холл»

Оставить отзыв

Добавьте отзыв, заполнив личные данные, или сначала войдите на сайт, тогда информация будет автоматически взята из личного профиля.
Оценка*