Переверните экран
Поиск домов и коттеджей

Найдите идеальный дом или коттедж в Санкт-Петербурге и области

Найдите идеальный дом или коттедж в Санкт-Петербурге и области

Перейти к поиску
Новостройки Квартиры Ипотека Медиа О проекте Контакты Реклама на сайте Vk Youtube Telegram Дзен Продавцы и застройщики Коммерческие помещения Квартиры на карте Эксперты и авторы Машиноместа Акции от застройщиков Банки и программы Апартаменты Новостройки на карте 4-комнатные и более Готовые новостройки 3-комнатные Военная ипотека Покупателю Новостройки Санкт-Петербурга Видеообзор новостроек Семейная ипотека Аналитика рынка Панорамы новостроек 1-комнатные Субсидированная застройщиком Мнение эксперта Студии Ипотечный калькулятор Новости недвижимости Новостройки Ленинградской области ИТ-ипотека Квартиры со скидками до 25% Новостройки премиум-класса Новостройки бизнес-класса Дома и коттеджи Бизнес-центры Бизнес-центры в Санкт-Петербурге Бизнес-центры рядом с метро Строящиеся бизнес-центры Бизнес-центры класса A Ипотека со ставкой 0,1% Траншевая ипотека
1-комн. квартира, 32.00 м2, 3 этаж
Срок сдачи 4 квартал 2026 года
6 400 000 
200 000 2
обновлено 20 марта

Описание 1-комн. квартиры

Срок ГК
4 квартал 2026 года
Стадия строительства
котлован/фундамент
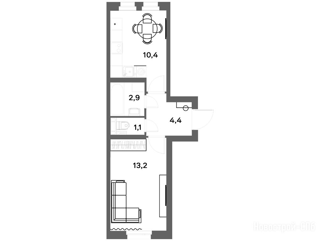
Общая площадь
32.00 м2
Этаж
3 / 5
Отделка
нет

Расположение 1-комн. квартиры

Метро
Дом
1
Адрес
ул. Энергетиков, ЭкоКвартал NEGA, корпус 1, секция 2

Способы покупки

Особенности

Продается однокомнатная квартира в новостройке ЖК «ЭкоКвартал Нега» по адресу Ленинградская область, Всеволожский район, Новое Девяткино, ул. Энергетиков, ЭкоКвартал NEGA, корпус 1. Общая площадь квартиры - 32 кв. м. Тип проекта, по которому построен дом — Монолитно-кирпичный, компания-застройщик — ГК Базис (Сургут), СЗ Зенит (Челябинск). Стоимость квартиры — 6 400 000 руб. Способы оплаты можно уточнить у продавца. Срок сдачи — 4 квартал 2026. Более подробная информация по телефону.
Инфоцентр новостроек
Инфоцентр новостроек
Время работы 9:00 — 21:00
Выбирайте квартиру в ЖК «ЭкоКвартал Нега» по ценам от застройщика
1-комн. квартира 20,20 м2 4 040 000
Этаж 3/5
ЛО, ЖК «ЭкоКвартал Нега»
Девяткино
22 мин.
Строится
Этаж 3/5
ЛО, ЖК «ЭкоКвартал Нега»
Девяткино
22 мин.
Строится
1-комн. квартира 20,54 м2 4 100 000
Этаж 4/5
ЛО, ЖК «ЭкоКвартал Нега»
Девяткино
22 мин.
Строится
1-комн. квартира 20,70 м2 4 140 000
Этаж 3/5
ЛО, ЖК «ЭкоКвартал Нега»
Девяткино
22 мин.
Строится
Посмотреть 96 квартир в ЖК «ЭкоКвартал Нега»
2-комн. квартира 49,42 м2 9 880 000
Этаж 1/5
ЛО, ЖК «ЭкоКвартал Нега»
Девяткино
22 мин.
Строится
2-комн. квартира 50,19 м2 10 038 000
Этаж 5/5
ЛО, ЖК «ЭкоКвартал Нега»
Девяткино
22 мин.
Строится
2-комн. квартира 52,80 м2 10 560 000
Этаж 5/5
ЛО, ЖК «ЭкоКвартал Нега»
Девяткино
22 мин.
Строится
2-комн. квартира 53,04 м2 10 600 000
Этаж 2/5
ЛО, ЖК «ЭкоКвартал Нега»
Девяткино
22 мин.
Строится
Посмотреть 6 квартир в ЖК «ЭкоКвартал Нега»

Скидки и спецпредложения от застройщиков

ЖК «ЭкоКвартал Нега» на карте

Выгодные предложения на новостройки

Отзывы о ЖК «ЭкоКвартал Нега»

Самый полезный отзыв
МВ
30 сентября 2025
Оценка:
В «зеленом» районе с отличной экологией будет комфортно жить всем. Главная идея квартала - сочетание с природой и сохранение экологии леса поблизости.
Ответить
Самый новый отзыв
Г
16 декабря 2025
Оценка:
Достоинства
Транспортная доступность
Социальная инфраструктура
Планировки
Готовность
Способы покупки
Скорость строительства
Внешний вид фасада
Двор, окружение
Недостатки
Расположение
Квартиры сразу с отделкой, не надо возиться с черновым ремонтом и искать бригаду. Это экономит деньги на старте и время. Для занятых людей это главное, чтоб не жить на стройке.
Ответить

Оставить отзыв

Добавьте отзыв, заполнив личные данные, или сначала войдите на сайт, тогда информация будет автоматически взята из личного профиля.
Оценка*