Переверните экран
Поиск домов и коттеджей

Найдите идеальный дом или коттедж в Санкт-Петербурге и области

Найдите идеальный дом или коттедж в Санкт-Петербурге и области

Перейти к поиску
Новостройки Квартиры Ипотека Медиа О проекте Контакты Реклама на сайте Vk Youtube Telegram Дзен Продавцы и застройщики Коммерческие помещения Квартиры на карте Эксперты и авторы Машиноместа Акции от застройщиков Банки и программы Апартаменты Новостройки на карте 4-комнатные и более Готовые новостройки 3-комнатные Военная ипотека Покупателю Новостройки Санкт-Петербурга Видеообзор новостроек Семейная ипотека Аналитика рынка Панорамы новостроек 1-комнатные Субсидированная застройщиком Мнение эксперта Студии Ипотечный калькулятор Новости недвижимости Новостройки Ленинградской области IT-ипотека Квартиры со скидками до 25% Новостройки премиум-класса Новостройки бизнес-класса Дома и коттеджи Бизнес-центры Бизнес-центры в Санкт-Петербурге Бизнес-центры рядом с метро Строящиеся бизнес-центры Бизнес-центры класса A
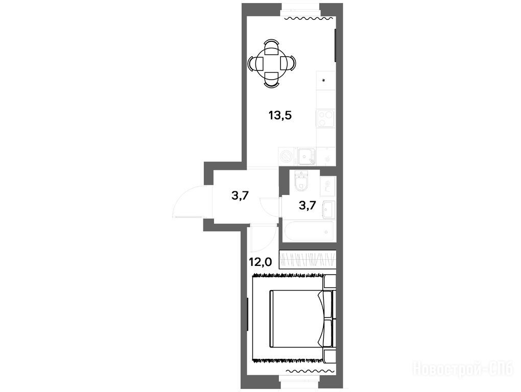
1-комн. квартира, 32.90 м2, 2 этаж
Срок сдачи 4 квартал 2026 года
6 580 000 
7 373 423
200 000 2
обновлено 6 декабря

Описание 1-комн. квартиры

Новостройка
Срок ГК
4 квартал 2026 года
Стадия строительства
котлован/фундамент
Общая площадь
32.90 м2
Этаж
2 / 5
Отделка
нет

Расположение 1-комн. квартиры

Метро
Дом
1
Адрес
ул. Энергетиков, ЭкоКвартал NEGA, корпус 1, секция 2

Способы покупки

Особенности

Продается однокомнатная квартира в новостройке ЭкоКвартал NEGA (Нега) по адресу Ленинградская область, Всеволожский район, Новое Девяткино, ул. Энергетиков, ЭкоКвартал NEGA, корпус 1. Общая площадь квартиры - 32.9 кв. м. Тип проекта, по которому построен дом — Монолитно-кирпичный, компания-застройщик — ГК Базис (Сургут), СЗ Зенит (Челябинск). Стоимость квартиры — 6 580 000 руб. Способы оплаты можно уточнить у продавца. Срок сдачи — 4 квартал 2026. Более подробная информация по телефону.
Инфоцентр новостроек
Инфоцентр новостроек
Время работы 9:00 — 21:00
Выбирайте квартиру в ЭкоКвартал NEGA (Нега) по ценам от застройщика

Похожие квартиры в ЭкоКвартале NEGA

5 этаж
из 5 4 квартал 2026
Ленинградская область, Всеволожский район
Девяткино
22 мин.
1
Корпус
нет
Отделка
2.74 м
Потолки
ЭкоКвартал NEGA (Нега)
6 580 000
Альфа-Банк, СберБанк, ВТБ, ДОМ.РФ, Уралсиб
6.00%
Ставка
30.10%
Первый взнос
от 39 450 /мес.
Все варианты
3 этаж
из 5 4 квартал 2026
Ленинградская область, Всеволожский район
Девяткино
22 мин.
1
Корпус
нет
Отделка
2.74 м
Потолки
ЭкоКвартал NEGA (Нега)
6 580 000 8 192 692
Альфа-Банк, СберБанк, ВТБ, ДОМ.РФ, Уралсиб
6.00%
Ставка
30.10%
Первый взнос
от 39 450 /мес.
Все варианты
Посмотреть все спецпредложения
1-комн. квартира 20,20 м2 4 040 000
Этаж 3/5
ЛО, ЭкоКвартал NEGA (Нега)
Девяткино
22 мин.
Строится
1-комн. квартира 20,30 м2 4 060 000
Этаж 3/5
ЛО, ЭкоКвартал NEGA (Нега)
Девяткино
22 мин.
Строится
1-комн. квартира 20,44 м2 4 080 000
Этаж 4/5
ЛО, ЭкоКвартал NEGA (Нега)
Девяткино
22 мин.
Строится
1-комн. квартира 20,54 м2 4 100 000
Этаж 4/5
ЛО, ЭкоКвартал NEGA (Нега)
Девяткино
22 мин.
Строится
Посмотреть 110 квартир в ЭкоКвартале NEGA
2-комн. квартира 47,74 м2 9 540 000
Этаж 3/5
ЛО, ЭкоКвартал NEGA (Нега)
Девяткино
22 мин.
Строится
2-комн. квартира 49,42 м2 9 880 000
Этаж 1/5
ЛО, ЭкоКвартал NEGA (Нега)
Девяткино
22 мин.
Строится
2-комн. квартира 50,19 м2 10 038 000
Этаж 5/5
ЛО, ЭкоКвартал NEGA (Нега)
Девяткино
22 мин.
Строится
2-комн. квартира 52,80 м2 10 560 000
Этаж 5/5
ЛО, ЭкоКвартал NEGA (Нега)
Девяткино
22 мин.
Строится
Посмотреть 7 квартир в ЭкоКвартале NEGA

Скидки и спецпредложения от застройщиков

ЭкоКвартал NEGA (Нега) на карте

Выгодные предложения на новостройки

Отзывы о ЭкоКвартале NEGA

Самый полезный отзыв
МВ
30 сентября
Оценка:
В «зеленом» районе с отличной экологией будет комфортно жить всем. Главная идея квартала - сочетание с природой и сохранение экологии леса поблизости.
Ответить
Полезный отзыв?
Самый новый отзыв
С
26 ноября
Оценка:
Транспортная доступность
Экология
Внешний вид фасада
Двор, окружение
Расположение
Подземный паркинг
Нормально что квартиры идут не голые, а уже готовы под жизнь. Не надо заезжать в бетон и годами делать ремонт. Для тех кто хочет быстрее переехать это прям рабочий вариант.
Ответить
Полезный отзыв?
Добавьте отзыв, заполнив личные данные, или сначала войдите на сайт, тогда информация будет автоматически взята из личного профиля.
Оценка*