Переверните экран
Новостройки Квартиры Ипотека Медиа О проекте Контакты Реклама на сайте Vk Youtube Telegram Дзен Продавцы и застройщики Коммерческие помещения Квартиры на карте Эксперты и авторы Машиноместа Акции от застройщиков Банки и программы Апартаменты Новостройки на карте 4-комнатные и более Готовые новостройки 3-комнатные Военная ипотека Покупателю Новостройки Санкт-Петербурга Видеообзор новостроек Семейная ипотека Аналитика рынка Панорамы новостроек 1-комнатные Субсидированная застройщиком Мнение эксперта Студии Ипотечный калькулятор Новости недвижимости Новостройки Ленинградской области IT-ипотека Квартиры со скидками до 25% Новостройки премиум-класса Новостройки бизнес-класса Дома и коттеджи Бизнес-центры Бизнес-центры в Санкт-Петербурге Бизнес-центры рядом с метро Строящиеся бизнес-центры Бизнес-центры класса A
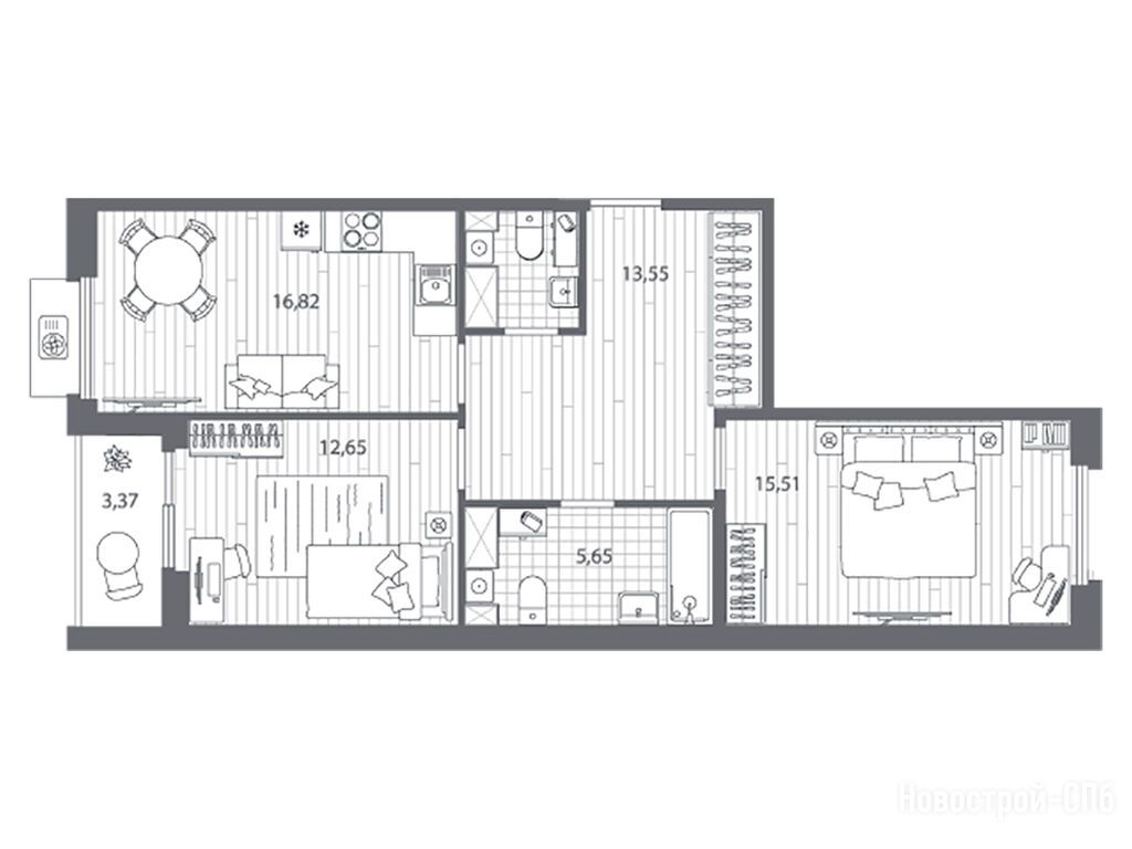
2-комн. квартира, 67.95 м2, 3 этаж
Срок сдачи 1 квартал 2026 года
23 438 784 
344 942 2
обновлено 15 декабря

Описание 2-комн. квартиры

Новостройка
Застройщик
Срок ГК
1 квартал 2026 года
Стадия строительства
отделка фасада и внутренние работы
Общая площадь
67.95 м2
Жилая площадь
28.16 м2
Площадь кухни
16.82 м2
Этаж
3 / 13
Отделка
чистовая

Расположение 2-комн. квартиры

Локация
Метро
Лесная
10 мин.
Дом
2
Адрес
Полюстровский пр., 87, секция 2.2

Способы покупки

Особенности

Продается двухкомнатная квартира в новостройке ЖК Respect (Респект) по адресу Санкт-Петербург, Калининский, Полюстровский пр., 87. Общая площадь квартиры - 67.95 кв. м. Тип проекта, по которому построен дом — Монолитно-кирпичный, компания-застройщик — ПСК. Стоимость квартиры — 23 438 784 руб. Способы оплаты можно уточнить у продавца. Срок сдачи — 1 квартал 2026. Более подробная информация по телефону.
Инфоцентр новостроек
Инфоцентр новостроек
+7 (812) 424-49-09
Время работы 9:00 — 21:00

Похожие квартиры в ЖК Respect

4 этаж
из 13 1 квартал 2026
Санкт-Петербург, Санкт-Петербург
Лесная
10 мин.
2
Корпус
чистовая
Отделка
2.70 м
Потолки
ЖК Respect (Респект)
23 490 164
Альфа-Банк, Сургутнефтегазбанк (СНГБ), ВТБ, Банк Санкт-Петербург, Совкомбанк, Промсвязьбанк, Металлинвестбанк, ДОМ.РФ, Банк Россия, СберБанк
6.00%
Ставка
30.10%
Первый взнос
от 140 835 /мес.
Все варианты
12 этаж
из 13 1 квартал 2026
Санкт-Петербург, Санкт-Петербург
Лесная
10 мин.
2
Корпус
чистовая
Отделка
2.70 м
Потолки
ЖК Respect (Респект)
23 901 185
Альфа-Банк, Сургутнефтегазбанк (СНГБ), ВТБ, Банк Санкт-Петербург, Совкомбанк, Промсвязьбанк, Металлинвестбанк, ДОМ.РФ, Банк Россия, СберБанк
6.00%
Ставка
30.10%
Первый взнос
от 143 300 /мес.
Все варианты
13 этаж
из 13 1 квартал 2026
Санкт-Петербург, Санкт-Петербург
Лесная
10 мин.
2
Корпус
чистовая
Отделка
2.70 м
Потолки
ЖК Respect (Респект)
24 602 754
Альфа-Банк, Сургутнефтегазбанк (СНГБ), ВТБ, Банк Санкт-Петербург, Совкомбанк, Промсвязьбанк, Металлинвестбанк, ДОМ.РФ, Банк Россия, СберБанк
6.00%
Ставка
30.10%
Первый взнос
от 147 506 /мес.
Все варианты
Посмотреть все спецпредложения
студия 23,21 м2 9 240 875
Этаж 7/13
СПБ, ЖК Respect (Респект)
Лесная
10 мин.
Строится
студия 23,23 м2 9 342 687
Этаж 11/13
СПБ, ЖК Respect (Респект)
Лесная
10 мин.
Строится
студия 23,35 м2 12 016 527
Этаж 13/13
СПБ, ЖК Respect (Респект)
Лесная
10 мин.
Строится
студия 23,49 м2 9 423 530
Этаж 12/13
СПБ, ЖК Respect (Респект)
Лесная
10 мин.
Строится
Посмотреть 111 квартир в ЖК Respect
1-комн. квартира 35,80 м2 14 916 982
Этаж 4/13
СПБ, ЖК Respect (Респект)
Лесная
10 мин.
Строится
1-комн. квартира 35,98 м2 16 732 097
Этаж 3/13
СПБ, ЖК Respect (Респект)
Лесная
10 мин.
Строится
1-комн. квартира 35,99 м2 14 923 451
Этаж 3/13
СПБ, ЖК Respect (Респект)
Лесная
10 мин.
Строится
1-комн. квартира 36,06 м2 16 804 518
Этаж 4/13
СПБ, ЖК Respect (Респект)
Лесная
10 мин.
Строится
Посмотреть 127 квартир в ЖК Respect
2-комн. квартира 55,11 м2 20 497 692
Этаж 3/13
СПБ, ЖК Respect (Респект)
Лесная
10 мин.
Строится
2-комн. квартира 55,16 м2 20 728 206
Этаж 2/7
СПБ, ЖК Respect (Респект)
Лесная
10 мин.
Строится
2-комн. квартира 55,28 м2 20 732 915
Этаж 4/13
СПБ, ЖК Respect (Респект)
Лесная
10 мин.
Строится
2-комн. квартира 55,31 м2 20 390 031
Этаж 2/12
СПБ, ЖК Respect (Респект)
Лесная
10 мин.
Строится
Посмотреть 223 квартиры в ЖК Respect
3-комн. квартира 76,55 м2 25 101 743
Этаж 3/13
СПБ, ЖК Respect (Респект)
Лесная
10 мин.
Строится
3-комн. квартира 78,60 м2 26 311 885
Этаж 6/13
СПБ, ЖК Respect (Респект)
Лесная
10 мин.
Строится
3-комн. квартира 79,72 м2 25 523 777
Этаж 3/13
СПБ, ЖК Respect (Респект)
Лесная
10 мин.
Строится
3-комн. квартира 79,84 м2 28 315 612
Этаж 3/13
СПБ, ЖК Respect (Респект)
Лесная
10 мин.
Строится
Посмотреть 35 квартир в ЖК Respect

Скидки и спецпредложения от застройщиков

ЖК Respect (Респект) на карте

Выгодные предложения на новостройки

Самый полезный отзыв
Н
13 июня 2024
Оценка:
Забронировали трехкомнатную квартиру со светлой отделкой. Два сан узла, балкон, кухня-гостиная почти 19,м2. Понравилась идея с общественными террасами. Там посадят кустарники, обустроят лаунж-зоны, поставят столики, стулья. Можно будет и погулять и поработать
Ответить
Полезный отзыв?
Самый новый отзыв
А
05 декабря
Оценка:
Приятно каждый день проезжать мимо и видеть, как стройка твоего дома движется к завершению. Красивые дома получаются. И для этого района этажность, что надо, надеюсь не пожалею, что тут квартиру купила.
Ответить
Полезный отзыв?
Добавьте отзыв, заполнив личные данные, или сначала войдите на сайт, тогда информация будет автоматически взята из личного профиля.
Оценка*