Переверните экран
Новостройки Квартиры Ипотека Медиа О проекте Контакты Реклама на сайте Vk Youtube Telegram Дзен Продавцы и застройщики Коммерческие помещения Квартиры на карте Эксперты и авторы Машиноместа Акции от застройщиков Банки и программы Апартаменты Новостройки на карте 4-комнатные и более Готовые новостройки 3-комнатные Военная ипотека Покупателю Новостройки Санкт-Петербурга Видеообзор новостроек Семейная ипотека Аналитика рынка Панорамы новостроек 1-комнатные Субсидированная застройщиком Мнение эксперта Студии Ипотечный калькулятор Новости недвижимости Новостройки Ленинградской области IT-ипотека Квартиры со скидками до 25% Новостройки премиум-класса Новостройки бизнес-класса Дома и коттеджи Бизнес-центры Бизнес-центры в Санкт-Петербурге Бизнес-центры рядом с метро Строящиеся бизнес-центры Бизнес-центры класса A
Данное предложение на 18.12.2025 неактуально. Пожалуйста, ознакомьтесь с другими похожими предложениями в ЖК «Полёт» .
2-комн. квартира, 65.80 м2, 8 этаж
Сдан
8 590 446 
130 554 2
обновлено 23 сентября

Описание 2-комн. квартиры

Новостройка
Застройщик
Срок ГК
Дом сдан
Стадия строительства
выдача ключей + заселение
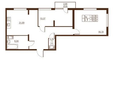
Общая площадь
65.80 м2
Жилая площадь
37.97 м2
Этаж
8 / 12
Отделка
под чистовую

Расположение 2-комн. квартиры

Локация
Метро
Купчино
22 мин.
Дом
4
Адрес
Московское шоссе, 262к4

Способы покупки

Особенности

Продается двухкомнатная квартира в новостройке ЖК «Полёт» по адресу Санкт-Петербург, Пушкинский, Шушары пос., Московское шоссе, 262к4. Общая площадь квартиры - 65.8 кв. м. Тип проекта, по которому построен дом — Монолитно-кирпичный, компания-застройщик — ГК «Стоун», СТ Плюс. Стоимость квартиры — 8 590 446 руб. Способы оплаты можно уточнить у продавца. Более подробная информация по телефону.
Инфоцентр новостроек
Инфоцентр новостроек
Время работы 9:00 — 21:00
Выбирайте квартиру в ЖК «Полёт» по ценам от застройщика
Посмотреть все спецпредложения
Этаж 1/12
СПБ, ЖК «Полёт»
Купчино
22 мин.
Сдан
Этаж 1/12
СПБ, ЖК «Полёт»
Купчино
22 мин.
Сдан
студия 22,90 м2 3 594 500
Этаж 1/12
СПБ, ЖК «Полёт»
Купчино
22 мин.
Сдан
Этаж 1/12
СПБ, ЖК «Полёт»
Купчино
22 мин.
Сдан
Посмотреть 45 квартир в ЖК «Полёт»
Этаж 1/12
СПБ, ЖК «Полёт»
Купчино
22 мин.
Сдан
Этаж 1/12
СПБ, ЖК «Полёт»
Купчино
22 мин.
Сдан
Этаж 1/12
СПБ, ЖК «Полёт»
Купчино
22 мин.
Сдан
Этаж 11/12
СПБ, ЖК «Полёт»
Купчино
22 мин.
Сдан
Посмотреть 10 квартир в ЖК «Полёт»
Этаж 9/12
СПБ, ЖК «Полёт»
Купчино
22 мин.
Сдан
Этаж 1/12
СПБ, ЖК «Полёт»
Купчино
22 мин.
Сдан
Этаж 11/12
СПБ, ЖК «Полёт»
Купчино
22 мин.
Сдан
Этаж 9/12
СПБ, ЖК «Полёт»
Купчино
22 мин.
Сдан
Посмотреть 26 квартир в ЖК «Полёт»
Этаж 9/12
СПБ, ЖК «Полёт»
Купчино
22 мин.
Сдан
Этаж 10/12
СПБ, ЖК «Полёт»
Купчино
22 мин.
Сдан
Этаж 8/12
СПБ, ЖК «Полёт»
Купчино
22 мин.
Сдан
Этаж 3/12
СПБ, ЖК «Полёт»
Купчино
22 мин.
Сдан
Посмотреть 6 квартир в ЖК «Полёт»

Скидки и спецпредложения от застройщиков

ЖК «Полёт» на карте

Выгодные предложения на новостройки

Отзывы о ЖК «Полёт»

Самый полезный отзыв
Д
17 июня 2020
Оценка:
Планировки
Способы покупки
Внешний вид фасада
Пока впечатление хорошее,хочу купить здесь квартиру.
Показать все комментарии
Ответить
Полезный отзыв?
Самый новый отзыв
АК
17 декабря
Оценка:
Транспортная доступность
Социальная инфраструктура
Двор, окружение
Расположение
Купила тут однушку как вложение ещё на этапе строительства, сейчас комплекс уже сдан и квартиру сдаю в аренду. Локация на Ленсоветовском спокойная, рядом новая школа и постепенно подтягивается инфраструктура, зелени вокруг много. Понимаю, что до метро только на транспорте и это не городская «тусовка», но за свои деньги проект вполне оправдал ожидания.
Ответить
Полезный отзыв?
Добавьте отзыв, заполнив личные данные, или сначала войдите на сайт, тогда информация будет автоматически взята из личного профиля.
Оценка*