Переверните экран
Новостройки Квартиры Ипотека Медиа О проекте Контакты Реклама на сайте Vk Youtube Telegram Дзен Продавцы и застройщики Коммерческие помещения Квартиры на карте Эксперты и авторы Машиноместа Акции от застройщиков Банки и программы Апартаменты Новостройки на карте 4-комнатные и более Готовые новостройки 3-комнатные Военная ипотека Покупателю Новостройки Санкт-Петербурга Видеообзор новостроек Семейная ипотека Аналитика рынка Панорамы новостроек 1-комнатные Субсидированная застройщиком Мнение эксперта Студии Ипотечный калькулятор Новости недвижимости Новостройки Ленинградской области IT-ипотека Квартиры со скидками до 25% Новостройки премиум-класса Новостройки бизнес-класса Дома и коттеджи Бизнес-центры Бизнес-центры в Санкт-Петербурге Бизнес-центры рядом с метро Строящиеся бизнес-центры Бизнес-центры класса A
Данное предложение на 16.12.2025 неактуально. Пожалуйста, ознакомьтесь с другими похожими предложениями в ЖК «Ладожская Симфония» .
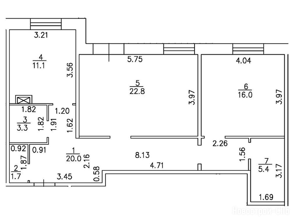
2-комн. квартира, 80.30 м2, 1 этаж
Сдан
5 861 900 
73 000 2
обновлено 26 сентября

Описание 2-комн. квартиры

Срок ГК
Дом сдан
Стадия строительства
выдача ключей + заселение
Общая площадь
80.30 м2
Этаж
1 / 6
Отделка
нет

Расположение 2-комн. квартиры

Метро
Ж/Д-станция
Дом
дом 6
Адрес
улица Чекалова, 47

Особенности

Продается двухкомнатная квартира в новостройке ЖК «Ладожская Симфония» по адресу Ленинградская область, Кировский район, Шлиссельбург, улица Чекалова, 47. Общая площадь квартиры - 80.3 кв. м. Тип проекта, по которому построен дом — Монолитно-кирпичныйСтоимость квартиры — 5 861 900 руб. Способы оплаты можно уточнить у продавца. Более подробная информация по телефону.
Инфоцентр новостроек
Инфоцентр новостроек
+7 (812) 424-49-09
Время работы 9:00 — 21:00
ЖК «Ладожская Симфония» ЖК «Ладожская Симфония»|Новострой-СПб
Посмотреть все спецпредложения

Скидки и спецпредложения от застройщиков

ЖК «Ладожская Симфония» на карте

Выгодные предложения на новостройки

Отзывы о ЖК «Ладожская Симфония»

Будьте первым, кто оставит отзыв
о ЖК «Ладожская Симфония»
Добавьте отзыв, заполнив личные данные, или сначала войдите на сайт, тогда информация будет автоматически взята из личного профиля.
Оценка*