Переверните экран
Поиск домов и коттеджей

Найдите идеальный дом или коттедж в Санкт-Петербурге и области

Найдите идеальный дом или коттедж в Санкт-Петербурге и области

Перейти к поиску
Новостройки Квартиры Ипотека Медиа О проекте Контакты Реклама на сайте Vk Youtube Telegram Дзен Продавцы и застройщики Коммерческие помещения Квартиры на карте Эксперты и авторы Машиноместа Акции от застройщиков Банки и программы Апартаменты Новостройки на карте 4-комнатные и более Готовые новостройки 3-комнатные Военная ипотека Покупателю Новостройки Санкт-Петербурга Видеообзор новостроек Семейная ипотека Аналитика рынка Панорамы новостроек 1-комнатные Субсидированная застройщиком Мнение эксперта Студии Ипотечный калькулятор Новости недвижимости Новостройки Ленинградской области ИТ-ипотека Квартиры со скидками до 25% Новостройки премиум-класса Новостройки бизнес-класса Дома и коттеджи Коттеджные поселки в Санкт-Петербурге Коттеджные поселки в Ленинградской обл Готовые коттеджные поселки Строящиеся коттеджные поселки Коттеджные поселки у леса Коттеджные поселки у водоема Коттеджные поселки в ипотеку Бизнес-центры Коттеджи Ипотека со ставкой 0,1% Траншевая ипотека
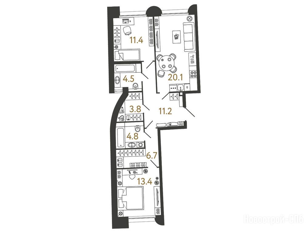
2-комн. квартира, 75.90 м2, 1 этаж
Срок сдачи 3 квартал 2028 года
28 327 969 
373 228 2
обновлено 4 мая

Описание 2-комн. квартиры

Застройщик
RBI
Срок ГК
3 квартал 2028 года
Стадия строительства
котлован/фундамент
Общая площадь
75.90 м2
Этаж
1 / 4

Расположение 2-комн. квартиры

Локация
Ж/Д-станция
Дом
1
Адрес
г. Зеленогорск, Ленина ул., д. 38

Способы покупки

Особенности

Продается двухкомнатная квартира в новостройке ЖК «Цвет Зеленогорска» по адресу Санкт-Петербург, Курортный, Зеленогорск, г. Зеленогорск, Ленина ул., д. 38. Общая площадь квартиры - 75.9 кв. м. Тип проекта, по которому построен дом — Монолитно-кирпичный, компания-застройщик — RBI. Стоимость квартиры — 28 327 969 руб. Способы оплаты можно уточнить у продавца. Срок сдачи — 3 квартал 2028. Более подробная информация по телефону.
Инфоцентр новостроек
Инфоцентр новостроек
Время работы 9:00 — 21:00
Выбирайте квартиру в ЖК «Цвет Зеленогорска» по ценам от застройщика
Этаж 2/4
СПБ, ЖК «Цвет Зеленогорска»
Зеленогорск (ж/д)
11 мин.
Строится
Этаж 2/4
СПБ, ЖК «Цвет Зеленогорска»
Зеленогорск (ж/д)
11 мин.
Строится
Этаж 2/4
СПБ, ЖК «Цвет Зеленогорска»
Зеленогорск (ж/д)
11 мин.
Строится
студия 30,90 м2 15 920 723
Этаж 2/4
СПБ, ЖК «Цвет Зеленогорска»
Зеленогорск (ж/д)
11 мин.
Строится
Этаж 4/4
СПБ, ЖК «Цвет Зеленогорска»
Зеленогорск (ж/д)
11 мин.
Строится
Этаж 3/4
СПБ, ЖК «Цвет Зеленогорска»
Зеленогорск (ж/д)
11 мин.
Строится
Этаж 2/4
СПБ, ЖК «Цвет Зеленогорска»
Зеленогорск (ж/д)
11 мин.
Строится
Этаж 3/4
СПБ, ЖК «Цвет Зеленогорска»
Зеленогорск (ж/д)
11 мин.
Строится
Посмотреть 22 квартиры в ЖК «Цвет Зеленогорска»
2-комн. квартира 59,40 м2 24 623 294
Этаж 2/4
СПБ, ЖК «Цвет Зеленогорска»
Зеленогорск (ж/д)
11 мин.
Строится
Этаж 4/4
СПБ, ЖК «Цвет Зеленогорска»
Зеленогорск (ж/д)
11 мин.
Строится
2-комн. квартира 62,70 м2 26 111 474
Этаж 2/4
СПБ, ЖК «Цвет Зеленогорска»
Зеленогорск (ж/д)
11 мин.
Строится
2-комн. квартира 63,30 м2 23 085 156
Этаж 1/4
СПБ, ЖК «Цвет Зеленогорска»
Зеленогорск (ж/д)
11 мин.
Строится
Посмотреть 31 квартира в ЖК «Цвет Зеленогорска»
Этаж 4/4
СПБ, ЖК «Цвет Зеленогорска»
Зеленогорск (ж/д)
11 мин.
Строится
Этаж 3/4
СПБ, ЖК «Цвет Зеленогорска»
Зеленогорск (ж/д)
11 мин.
Строится
Этаж 4/4
СПБ, ЖК «Цвет Зеленогорска»
Зеленогорск (ж/д)
11 мин.
Строится
Этаж 4/4
СПБ, ЖК «Цвет Зеленогорска»
Зеленогорск (ж/д)
11 мин.
Строится
Посмотреть 12 квартир в ЖК «Цвет Зеленогорска»

Скидки и спецпредложения от застройщиков

ЖК «Цвет Зеленогорска» на карте

Выгодные предложения на новостройки

Отзывы о ЖК «Цвет Зеленогорска»

Самый новый отзыв
М
18 февраля
Оценка:
Рад, что RBI теперь строит и за городом, особенно в Курортном районе. Взяли здесь квартиру, потому что формат для Зеленогорска идеальный: небольшой монолитный дом, всего 4 этажа, архитектура не типовая. По «начинке» всё серьезно, уровень бизнес-класса чувствуется: алюминиевые окна, усиленная гидро- и шумоизоляция, вода с многоступенчатой очисткой. Отдельный плюс за внутреннюю инфраструктуру: прямо в доме будет свой фитнес-зал и переговорная, а для жены — массажный кабинет и зона для йоги (в проекте заявлен полноценный wellness с хаммамом). Также предусмотрели кладовые (лыжи/борды точно будет где хранить) и велопарковку. Двор у RBI — это всегда знак качества, так что за благоустройство и детские площадки я спокоен, будет зелено и толково. Ждем переезда через пару лет, рассчитываем на тишину и адекватных соседей.
Ответить

Оставить отзыв

Добавьте отзыв, заполнив личные данные, или сначала войдите на сайт, тогда информация будет автоматически взята из личного профиля.
Оценка*