Переверните экран
Поиск домов и коттеджей

Найдите идеальный дом или коттедж в Санкт-Петербурге и области

Найдите идеальный дом или коттедж в Санкт-Петербурге и области

Перейти к поиску
Новостройки Квартиры Ипотека Медиа О проекте Контакты Реклама на сайте Vk Youtube Telegram Дзен Продавцы и застройщики Коммерческие помещения Квартиры на карте Эксперты и авторы Машиноместа Акции от застройщиков Банки и программы Апартаменты Новостройки на карте 4-комнатные и более Готовые новостройки 3-комнатные Военная ипотека Покупателю Новостройки Санкт-Петербурга Видеообзор новостроек Семейная ипотека Аналитика рынка Панорамы новостроек 1-комнатные Субсидированная застройщиком Мнение эксперта Студии Ипотечный калькулятор Новости недвижимости Новостройки Ленинградской области IT-ипотека Квартиры со скидками до 25% Новостройки премиум-класса Новостройки бизнес-класса Дома и коттеджи Бизнес-центры Бизнес-центры в Санкт-Петербурге Бизнес-центры рядом с метро Строящиеся бизнес-центры Бизнес-центры класса A
3-комн. апартамент, 77.70 м2, 2 этаж
Сдан
31 787 070 
409 100 2
обновлено 3 февраля

Описание 3-комн. апартамента

Новостройка
Застройщик
ПИК ООО «СЗ Кантемировская»
Срок ГК
Дом сдан
Стадия строительства
сдан ГК
Тип проекта
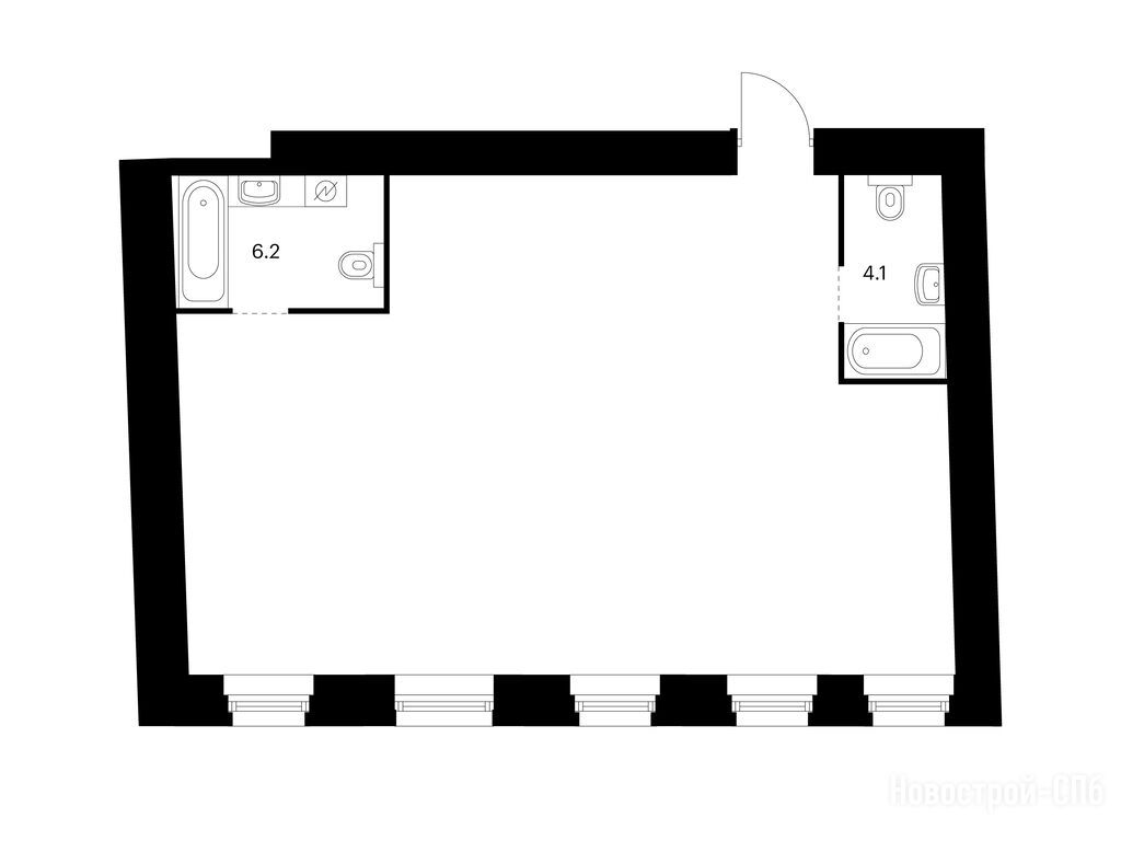
Общая площадь
77.70 м2
Этаж
2 / 2
Отделка
нет

Расположение 3-комн. апартамента

Локация
Ж/Д-станция
Дом
Литер Р
Адрес
Большой Сампсониевский проспект, 69, секция 1

Способы покупки

Особенности

Продается трехкомнатный апартамент в новостройке Кантемировская 11 по адресу Санкт-Петербург, Выборгский, Большой Сампсониевский проспект, 69. Общая площадь апартамента - 77.7 кв. м. Тип проекта, по которому построен дом — Монолитно-кирпичный,Монолитно-панельный, компания-застройщик — ПИК, ООО «СЗ Кантемировская». Стоимость апартамента — 31 787 070 руб. Способы оплаты можно уточнить у продавца. Более подробная информация по телефону.
Инфоцентр новостроек
Инфоцентр новостроек
+7 (812) 424-49-09
Время работы 9:00 — 21:00
Посмотреть все спецпредложения
2-комн. квартира 60,30 м2 20 110 050
Этаж 1/13
СПБ, Кантемировская 11
Лесная
5 мин.
Сдан
2-комн. квартира 60,40 м2 21 212 480
Этаж 1/13
СПБ, Кантемировская 11
Лесная
5 мин.
Сдан
2-комн. квартира 60,50 м2 20 509 500
Этаж 1/13
СПБ, Кантемировская 11
Лесная
5 мин.
Сдан
2-комн. квартира 63,30 м2 22 477 830
Этаж 4/13 балкон
СПБ, Кантемировская 11
Лесная
5 мин.
Сдан
1-комн. апартамент 37,64 м2 16 953 690
Этаж 1/13
СПБ, Кантемировская 11
Лесная
5 мин.
Сдан
Этаж 1/2
СПБ, Кантемировская 11
Лесная
5 мин.
Сдан
Этаж 2/2
СПБ, Кантемировская 11
Лесная
5 мин.
Сдан
Этаж 1/2
СПБ, Кантемировская 11
Лесная
5 мин.
Сдан
Посмотреть 11 апартаментов в Кантемировская 11
Этаж 2/2
СПБ, Кантемировская 11
Лесная
5 мин.
Сдан
Этаж 1/2
СПБ, Кантемировская 11
Лесная
5 мин.
Сдан
2-комн. апартамент 61,35 м2 26 137 500
Этаж 2/13
СПБ, Кантемировская 11
Лесная
5 мин.
Сдан
Этаж 2/2
СПБ, Кантемировская 11
Лесная
5 мин.
Сдан
Посмотреть 6 апартаментов в Кантемировская 11
Этаж 2/2
СПБ, Кантемировская 11
Лесная
5 мин.
Сдан
Этаж 1/2
СПБ, Кантемировская 11
Лесная
5 мин.
Сдан

Скидки и спецпредложения от застройщиков

Кантемировская 11 на карте

Выгодные предложения на новостройки

Отзывы о Кантемировская 11

Самый полезный отзыв
Н
27 марта 2021
Оценка:
Метро Лесная очень близко, потом куча всяких парком, тот же Ботанический сад. Я точно хочу вложится. Сами дома выглядят стильно, из основных плюсов небольшая этажность. Для меня ну правда важно, чтобы дома выглядели хорошо и компактно, а не как муравейники какие-то. Школа ближайшая в 10 минутах, но если она не понравится, там есть еще неподалеку несколько вариантов. За это вообще не волнуюсь
Ответить
Полезный отзыв?
Самый новый отзыв
М
29 ноября 2021
Оценка:
Работаю в этом районе, так что знаю его хорошо, живу я пока в убитой студии и давно хочу купить свое жилье. Вот только менять шило на мыло переезжая из одной вторичку в другую я не хочу, поэтому и искал квартиру в новостройках, в идеале с отделкой и балконом. В целом здесь нашлось все то, что я искал, при этом цена нормальная, собираюсь купить однушку на 12 этаже.
Ответить
Полезный отзыв?
Добавьте отзыв, заполнив личные данные, или сначала войдите на сайт, тогда информация будет автоматически взята из личного профиля.
Оценка*