Переверните экран
Поиск домов и коттеджей

Найдите идеальный дом или коттедж в Санкт-Петербурге и области

Найдите идеальный дом или коттедж в Санкт-Петербурге и области

Перейти к поиску
Новостройки Квартиры Ипотека Медиа О проекте Контакты Реклама на сайте Vk Youtube Telegram Дзен Продавцы и застройщики Коммерческие помещения Квартиры на карте Эксперты и авторы Машиноместа Акции от застройщиков Банки и программы Апартаменты Новостройки на карте 4-комнатные и более Готовые новостройки 3-комнатные Военная ипотека Покупателю Новостройки Санкт-Петербурга Видеообзор новостроек Семейная ипотека Аналитика рынка Панорамы новостроек 1-комнатные Субсидированная застройщиком Мнение эксперта Студии Ипотечный калькулятор Новости недвижимости Новостройки Ленинградской области IT-ипотека Квартиры со скидками до 25% Новостройки премиум-класса Новостройки бизнес-класса Дома и коттеджи Бизнес-центры Бизнес-центры в Санкт-Петербурге Бизнес-центры рядом с метро Строящиеся бизнес-центры Бизнес-центры класса A
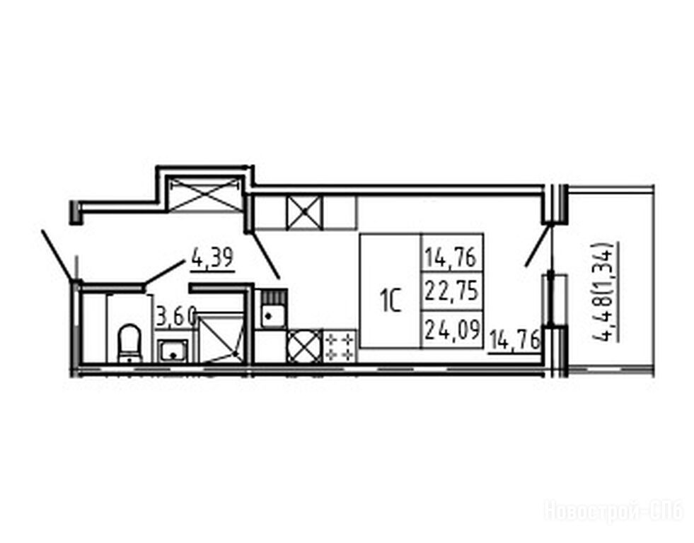
студия-апартамент, 24.09 м2, 2 этаж
Сдан
11 835 417 
491 300 2
обновлено 2 февраля

Описание студии-апартамента

Срок ГК
Дом сдан
Стадия строительства
выдача ключей + заселение
Тип проекта
Общая площадь
24.09 м2
Этаж
2 / 5
Отделка
white box

Расположение студии-апартамента

Локация
Метро
Дом
1
Адрес
ул. Инструментальщиков, 9а

Особенности

Продается студия-апартамент в новостройке Апарт-комплекс «Bereg. Курортный» по адресу Санкт-Петербург, Курортный, Сестрорецк, ул. Инструментальщиков, 9а. Общая площадь апартамента - 24.09 кв. м. Тип проекта, по которому построен дом — Монолит, компания-застройщик — ООО СЗ «Зеленый берег» , Element Development. Стоимость апартамента — 11 835 417 руб. Способы оплаты можно уточнить у продавца. Более подробная информация по телефону.
Element Development
Element Development
Сданных 3
|
Строящихся 3
Выбирайте апартаменты в Апарт-комплекс «Bereg. Курортный» по ценам от застройщика
Посмотреть все спецпредложения
студия-апартамент 23,32 м2 11 377 828
Этаж 5/5
СПБ, Апарт-комплекс «Bereg. Курортный»
Старая деревня
28 мин.
Сдан
студия-апартамент 23,62 м2 11 684 814
Этаж 4/5
СПБ, Апарт-комплекс «Bereg. Курортный»
Старая деревня
28 мин.
Сдан
студия-апартамент 23,74 м2 11 905 610
Этаж 4/5
СПБ, Апарт-комплекс «Bereg. Курортный»
Старая деревня
28 мин.
Сдан
студия-апартамент 23,84 м2 11 692 328
Этаж 3/5
СПБ, Апарт-комплекс «Bereg. Курортный»
Старая деревня
28 мин.
Сдан
Посмотреть 14 апартаментов в Апарт-комплексе «Bereg. Курортный»
1-комн. апартамент 35,67 м2 19 768 314
Этаж 5/5
СПБ, Апарт-комплекс «Bereg. Курортный»
Старая деревня
28 мин.
Сдан
1-комн. апартамент 39,87 м2 22 197 623
Этаж 1/5
СПБ, Апарт-комплекс «Bereg. Курортный»
Старая деревня
28 мин.
Сдан
1-комн. апартамент 40,19 м2 18 583 856
Этаж 5/5
СПБ, Апарт-комплекс «Bereg. Курортный»
Старая деревня
28 мин.
Сдан
1-комн. апартамент 41,74 м2 18 768 391
Этаж 5/5
СПБ, Апарт-комплекс «Bereg. Курортный»
Старая деревня
28 мин.
Сдан
Посмотреть 16 апартаментов в Апарт-комплексе «Bereg. Курортный»
2-комн. апартамент 51,27 м2 28 588 152
Этаж 1/5
СПБ, Апарт-комплекс «Bereg. Курортный»
Старая деревня
28 мин.
Сдан
2-комн. апартамент 54,81 м2 25 577 087
Этаж 5/5
СПБ, Апарт-комплекс «Bereg. Курортный»
Старая деревня
28 мин.
Сдан
2-комн. апартамент 57,32 м2 29 281 922
Этаж 1/5
СПБ, Апарт-комплекс «Bereg. Курортный»
Старая деревня
28 мин.
Сдан
2-комн. апартамент 57,33 м2 29 189 570
Этаж 1/5
СПБ, Апарт-комплекс «Bereg. Курортный»
Старая деревня
28 мин.
Сдан
Посмотреть 29 апартаментов в Апарт-комплексе «Bereg. Курортный»
3-комн. апартамент 95,75 м2 48 425 563
Этаж 1/5
СПБ, Апарт-комплекс «Bereg. Курортный»
Старая деревня
28 мин.
Сдан

Скидки и спецпредложения от застройщиков

Апарт-комплекс «Bereg. Курортный» на карте

Выгодные предложения на новостройки

Отзывы о Апарт-комплексе «Bereg. Курортный»

Самый полезный отзыв
П
31 марта 2022
Оценка:
Экология
Внешний вид фасада
Двор, окружение
Расположение
У Берега крутой сайт, все красиво и подробно. Если на такой территории — пляжи, лес, тишина — и правда построят то, что на фото, за эту цену будет один из топовых вариантов.
Ответить
Полезный отзыв?
Самый новый отзыв
Д
19 января
Оценка:
Экология
Внешний вид фасада
Подземный паркинг
Двор, окружение
Расположение
Мне нравится расположение. Деревья, залив. Рабочие поездки и квартира у меня на севере города в Приморском районе. Здесь бываю около 3-4 дней в неделю. Каких-то гигантских пробок не встречала ни летом, ни зимой. Уютный комплекс. Дети есть, но особого шума от них нет. Этим летом не получилось по работе, а следующим планирую перебраться сюда на постоянку.
Ответить
Полезный отзыв?
Добавьте отзыв, заполнив личные данные, или сначала войдите на сайт, тогда информация будет автоматически взята из личного профиля.
Оценка*