Переверните экран
Новостройки Квартиры Ипотека Медиа О проекте Контакты Реклама на сайте Vk Youtube Telegram Дзен Продавцы и застройщики Коммерческие помещения Квартиры на карте Эксперты и авторы Машиноместа Акции от застройщиков Банки и программы Апартаменты Новостройки на карте 4-комнатные и более Готовые новостройки 3-комнатные Военная ипотека Покупателю Новостройки Санкт-Петербурга Видеообзор новостроек Семейная ипотека Аналитика рынка Панорамы новостроек 1-комнатные Субсидированная застройщиком Мнение эксперта Студии Ипотечный калькулятор Новости недвижимости Новостройки Ленинградской области IT-ипотека Квартиры со скидками до 25% Новостройки премиум-класса Новостройки бизнес-класса Дома и коттеджи Бизнес-центры Бизнес-центры в Санкт-Петербурге Бизнес-центры рядом с метро Строящиеся бизнес-центры Бизнес-центры класса A
Данное предложение на 16.11.2025 неактуально. Пожалуйста, ознакомьтесь с другими похожими предложениями в ЖК «Остров первых» .
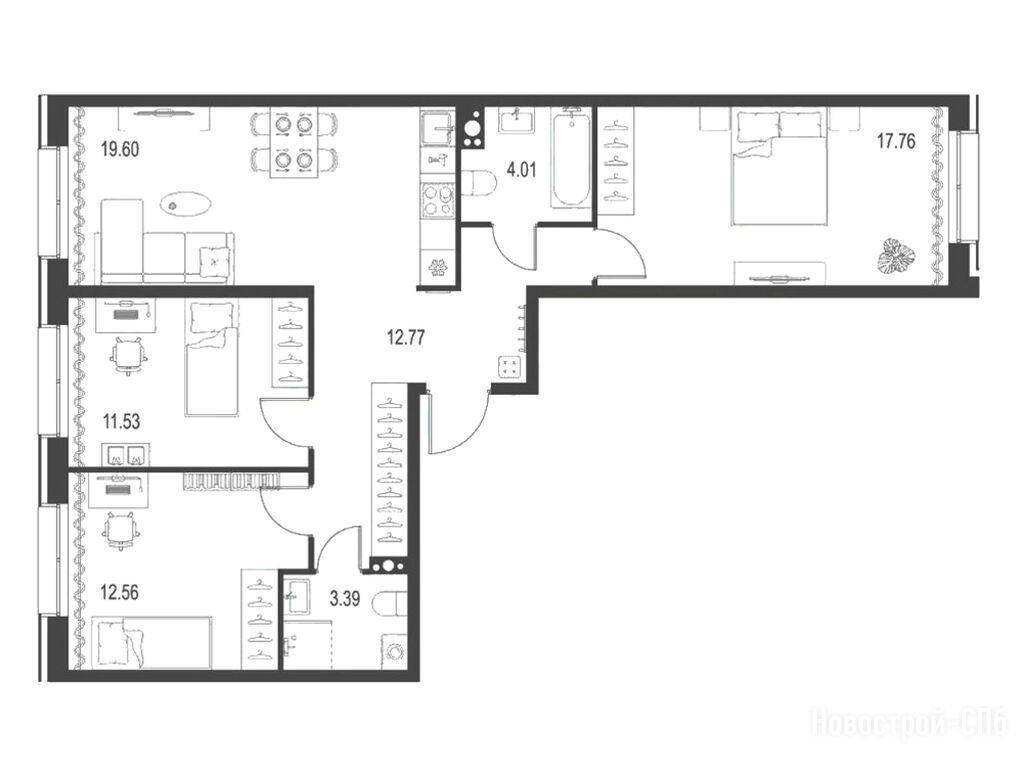
3-комн. квартира, 81.62 м2, 3 этаж
Срок сдачи 1 квартал 2029 года
36 916 726 
452 300 2
обновлено 5 ноября

Описание 3-комн. квартиры

Новостройка
Срок ГК
1 квартал 2029 года
Стадия строительства
Общая площадь
81.62 м2
Этаж
3 / 11
Отделка
под чистовую
Грузовой лифт
есть

Расположение 3-комн. квартиры

Дом
2
Адрес
Перевозная улица, дом 1

Особенности

Продается трехкомнатная квартира в новостройке ЖК «Остров первых» по адресу Санкт-Петербург, Адмиралтейский, Перевозная улица, дом 1. Общая площадь квартиры - 81.62 кв. м. Тип проекта, по которому построен дом — Монолитно-кирпичный, компания-застройщик — FIZIKA DEVELOPMENT, СЗ Новый остров. Стоимость квартиры — 36 916 726 руб. Способы оплаты можно уточнить у продавца. Срок сдачи — 1 квартал 2029. Более подробная информация по телефону.
Инфоцентр новостроек
Инфоцентр новостроек
+7 (812) 424-49-09
Время работы 9:00 — 21:00

Похожие квартиры в ЖК «Остров первых»

5 этаж
из 11 1 квартал 2029
Санкт-Петербург, Санкт-Петербург
Нарвская
20 мин.
2
Корпус
под чистовую
Отделка
2.85 м
Потолки
ЖК «Остров первых»
33 901 684
6 этаж
из 11 1 квартал 2029
Санкт-Петербург, Санкт-Петербург
Нарвская
20 мин.
2
Корпус
под чистовую
Отделка
2.85 м
Потолки
ЖК «Остров первых»
34 162 868
8 этаж
из 11 1 квартал 2029
Санкт-Петербург, Санкт-Петербург
Нарвская
20 мин.
2
Корпус
под чистовую
Отделка
2.85 м
Потолки
ЖК «Остров первых»
35 003 554
Посмотреть все спецпредложения
Этаж 4/9
СПБ, ЖК «Остров первых»
Нарвская
20 мин.
Строится
1-комн. квартира 39,55 м2 19 561 430
Этаж 8/9
СПБ, ЖК «Остров первых»
Нарвская
20 мин.
Строится
1-комн. квартира 39,70 м2 18 952 185
Этаж 4/9
СПБ, ЖК «Остров первых»
Нарвская
20 мин.
Строится
1-комн. квартира 40,12 м2 18 938 646
Этаж 4/9
СПБ, ЖК «Остров первых»
Нарвская
20 мин.
Строится
Посмотреть 42 квартиры в ЖК «Остров первых»
2-комн. квартира 62,15 м2 26 519 405
Этаж 4/9
СПБ, ЖК «Остров первых»
Нарвская
20 мин.
Строится
2-комн. квартира 62,26 м2 27 294 784
Этаж 4/9
СПБ, ЖК «Остров первых»
Нарвская
20 мин.
Строится
2-комн. квартира 62,71 м2 27 576 724
Этаж 6/9
СПБ, ЖК «Остров первых»
Нарвская
20 мин.
Строится
2-комн. квартира 63,91 м2 27 393 105
Этаж 5/9
СПБ, ЖК «Остров первых»
Нарвская
20 мин.
Строится
Посмотреть 53 квартиры в ЖК «Остров первых»
Этаж 6/9
СПБ, ЖК «Остров первых»
Нарвская
20 мин.
Строится
3-комн. квартира 76,05 м2 31 808 673
Этаж 6/9
СПБ, ЖК «Остров первых»
Нарвская
20 мин.
Строится
Этаж 5/9
СПБ, ЖК «Остров первых»
Нарвская
20 мин.
Строится
Этаж 5/9
СПБ, ЖК «Остров первых»
Нарвская
20 мин.
Строится
Посмотреть 54 квартиры в ЖК «Остров первых»
студия 29,54 м2 14 353 486
Этаж 6/9
СПБ, ЖК «Остров первых»
Нарвская
20 мин.
Строится
студия 29,58 м2 14 372 922
Этаж 6/9
СПБ, ЖК «Остров первых»
Нарвская
20 мин.
Строится
студия 29,86 м2 14 431 338
Этаж 9
СПБ, ЖК «Остров первых»
Нарвская
20 мин.
Строится
Посмотреть 7 квартир в ЖК «Остров первых»

Скидки и спецпредложения от застройщиков

ЖК «Остров первых» на карте

Выгодные предложения на новостройки

Отзывы о ЖК «Остров первых»

Самый полезный отзыв
РС
26 марта
Оценка:
Круто, что тут не просто дома воткнут, а сделают обновление целого района. Площадь озеленения почти 10 тыщ. кв. метров - уже радует!
Ответить
Полезный отзыв?
Самый новый отзыв
АР
03 ноября
Оценка:
люблю Питер. тут он настоящий. Этот остров реально может стать следующим модным районом
Ответить
Полезный отзыв?
Добавьте отзыв, заполнив личные данные, или сначала войдите на сайт, тогда информация будет автоматически взята из личного профиля.
Оценка*